← Back to North Norfolk District Council

Status

Pending Consideration New housing
Received
19 Nov 2025
New dwellings
5

Summary

Erection of five detached dwellings and creation of a small orchard.

Full Proposal

Erection of 5 no. detached dwellings and creation of small orchard

Documents

Access strategy
Report / Statement
Not archived · Council Link
Accessible and adaptable homes statement
Report / Statement
Not archived · Council Link
Air source heat pump guide
Report / Statement
Not archived · Council Link
Anglian water
Consultee Comment
Not archived · Council Link
Application form
Application Form
Not archived · Council Link
Arboricultural impact assessment
Report / Statement
Not archived · Council Link
Ashp info
Supporting Document
Not archived · Council Link
Ashp locations
Plan
Not archived · Council Link
Biodiversity gain statement
Supporting Document
Not archived · Council Link
Bng condition statement
Report / Statement
Not archived · Council Link
Bng metric calc tool
Supporting Document
Not archived · Council Link
Climate emergency - net zero statement
Report / Statement
Not archived · Council Link
Comment - highways
Consultee Comment
Not archived · Council Link
Contaminated land screening assessment form & appendix
Supporting Document
Not archived · Council Link
Drainage strategy statement
Report / Statement
Not archived · Council Link
Environmental health response
Consultee Comment
Not archived · Council Link
Extension of time
Correspondence
Not archived · Council Link
Fire & rescue comment
Consultee Comment
Not archived · Council Link
Flood risk assessment
Report / Statement
Not archived · Council Link
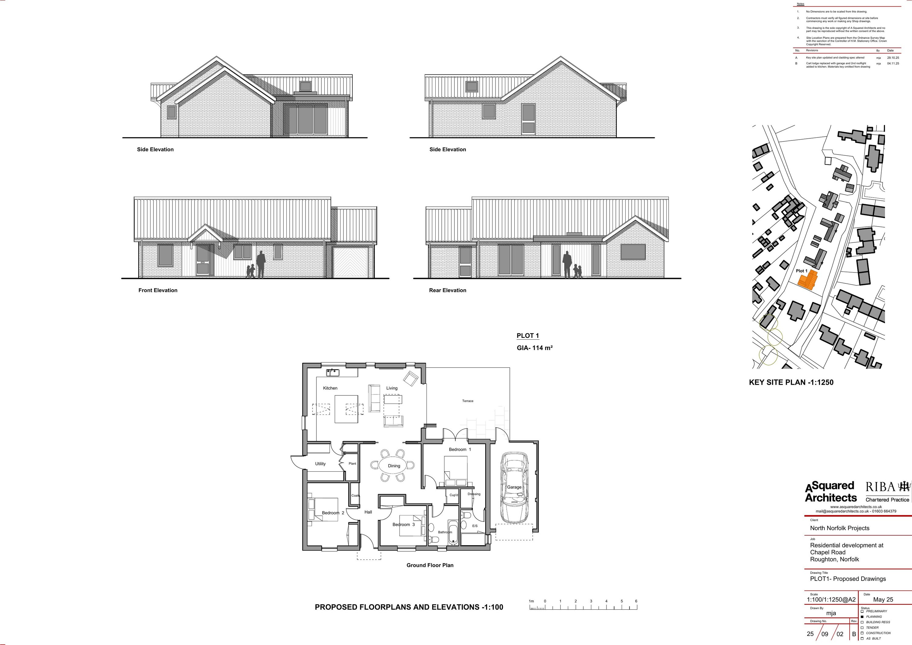
Garages - plans & elevations
Plan
Not archived · Council Link
Report / Statement
Archived · Council Link
Minerals & waste response
Consultee Comment
Not archived · Council Link
Net neutrality assessment report
Report / Statement
Not archived · Council Link
Objection - old mill cottage chapel road
Public Comment
Not archived · Council Link
Openreach fibre quote
Supporting Document
Not archived · Council Link
Parish council response
Consultee Comment
Not archived · Council Link
Parish council response
Consultee Comment
Not archived · Council Link
Planning statement
Report / Statement
Not archived · Council Link
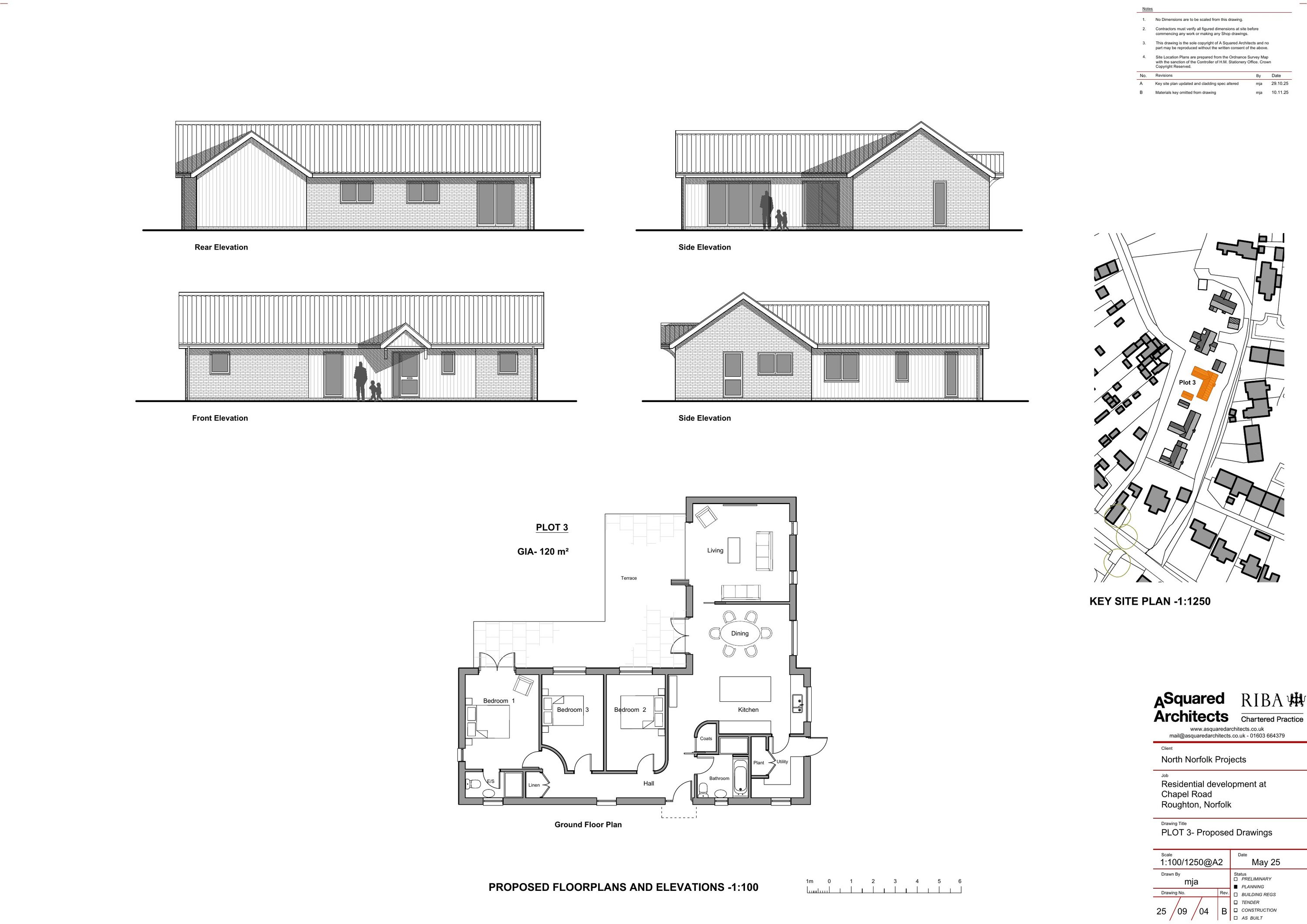
Plot 5 - plans & elevations
Plan
Not archived · Council Link
Policy statement
Correspondence
Not archived · Council Link
Predicted energy assessment - plot 1
Report / Statement
Not archived · Council Link
Predicted energy assessment - plot 2
Report / Statement
Not archived · Council Link
Predicted energy assessment - plot 3
Report / Statement
Not archived · Council Link
Predicted energy assessment - plot 4
Report / Statement
Not archived · Council Link
Predicted energy assessment - plot 5
Report / Statement
Not archived · Council Link
Predicted energy assessments
Supporting Document
Not archived · Council Link
Predicted energy assessments
Supporting Document
Not archived · Council Link
Predicted energy assessments
Supporting Document
Not archived · Council Link
Predicted energy assessments
Supporting Document
Not archived · Council Link
Predicted energy assessments
Supporting Document
Not archived · Council Link
Preliminary ecological appraisal addendum & bng report
Report / Statement
Not archived · Council Link
Plan
Archived · Council Link
Response to anglian water comments
Supporting Document
Not archived · Council Link
Section 111 form
Supporting Document
Not archived · Council Link
Site notice
Other
Not archived · Council Link
Supports - 3 st. marys close
Public Comment
Not archived · Council Link
Supports - woodview thorpe market road
Public Comment
Not archived · Council Link
Topographical plan
Report / Statement
Not archived · Council Link
Use of ai declaration
Supporting Document
Not archived · Council Link
Water efficiency calculations
Report / Statement
Not archived · Council Link

Take Action

Make your voice heard. Authorities need to hear from people who support new homes.

✉️ Write Email in Support View on Council Portal