← Back to North Norfolk District Council

Status

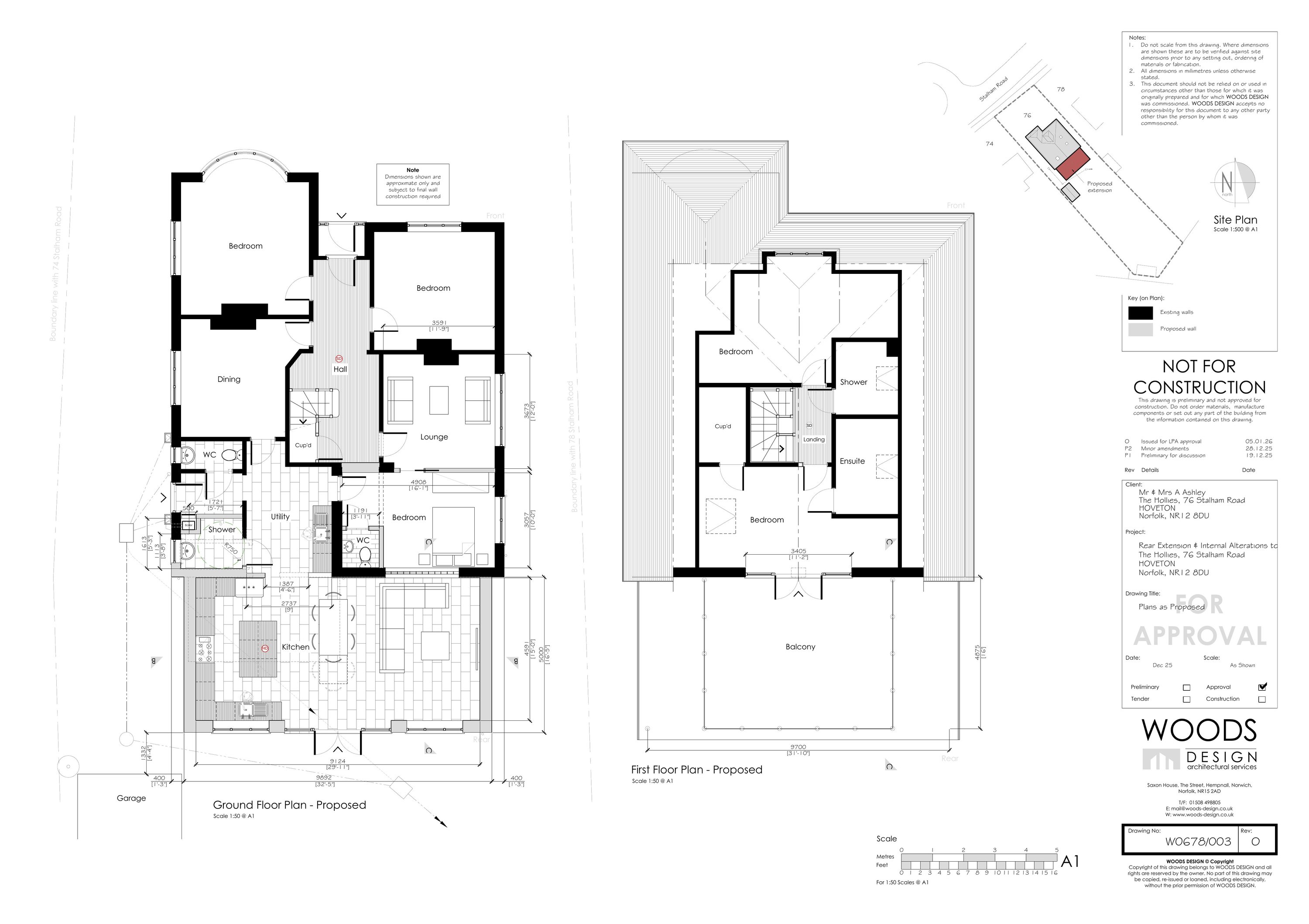
Pending Consideration House extension
Received
Last month
New dwellings
0

Full Proposal

Single storey extension to rear of dwelling including balcony & associated internal alterations

Documents

Application form
Application Form
Not archived · Council Link
Climate emergency / net zero statement
Supporting Document
Not archived · Council Link
Existing elevations & section
Revised Plan
Not archived · Council Link
Existing elevations & sections
Superseded Document or Plan
Not archived · Council Link
Existing plans
Superseded Document or Plan
Not archived · Council Link
Existing plans
Revised Plan
Not archived · Council Link
Location plan
Plan
Not archived · Council Link
Proposed elevations & sections
Revised Plan
Not archived · Council Link
Proposed elevations and sections
Superseded Document or Plan
Not archived · Council Link
Revised Plan
Archived · Council Link
Superseded Document or Plan
Archived · Council Link
Site notice and map
Other
Not archived · Council Link
Use of ai declaration
Supporting Document
Not archived · Council Link

Take Action

Make your voice heard. Authorities need to hear from people who support new homes.

✉️ Write Email in Support View on Council Portal