← Back to North Norfolk District Council

Status

Pending Consideration Listed building
Received
Last month
New dwellings
0

Full Proposal

For retrospective approval for the subdivision of the building known as Harrow Barn into two residential units and for alterations made to the listed building and boundary treatments within its curtilage

Documents

Application form
Application Form
Not archived · Council Link
As built elevations - plots 4 & 6 (the granary & harrow barn)
Superseded Document or Plan
Not archived · Council Link
As built plan - landscaping, curtilage structures & boundary treatment
Superseded Document or Plan
Not archived · Council Link
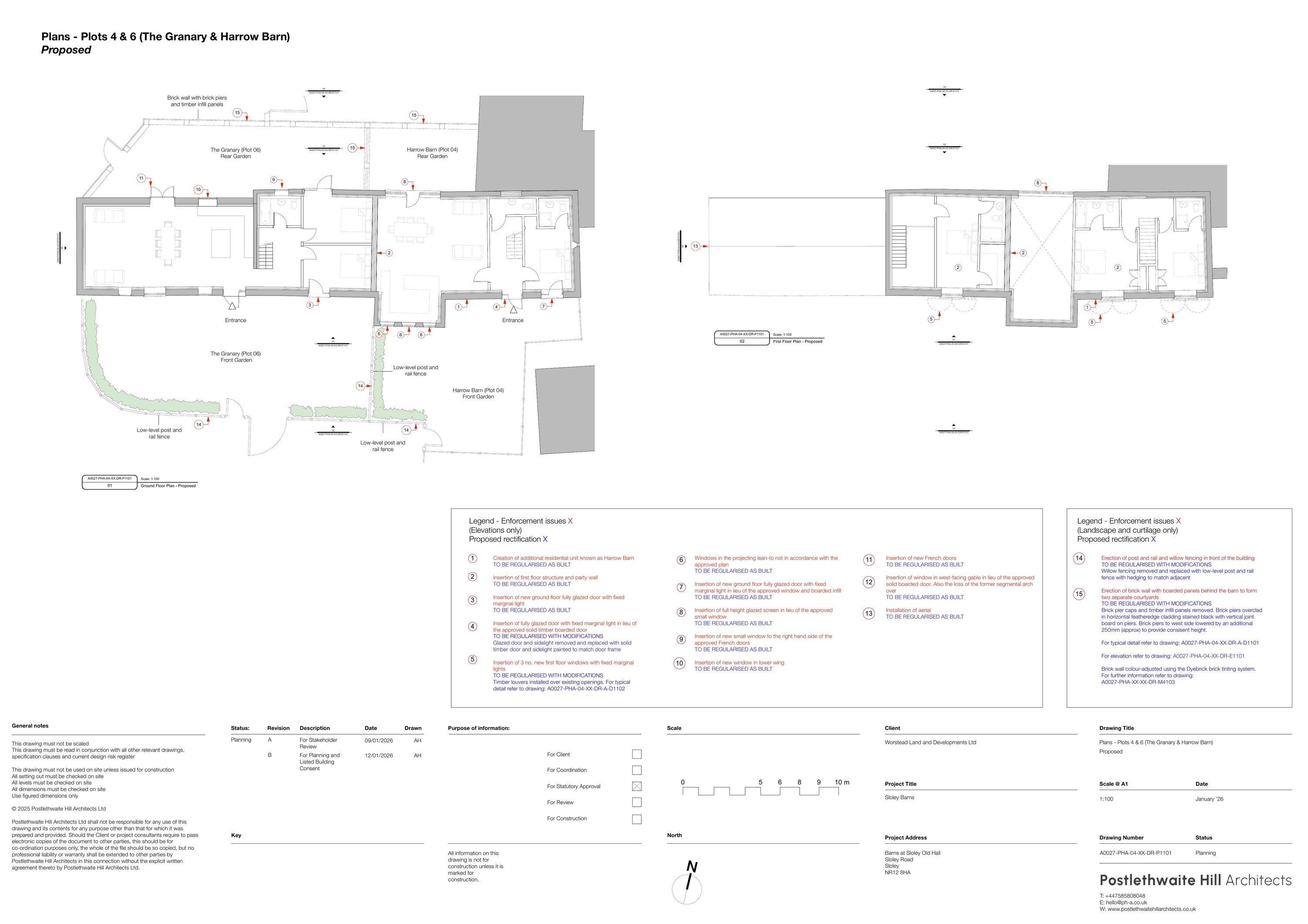
As built plans - plots 4 & 6 (the granary & harrow barn)
Superseded Document or Plan
Not archived · Council Link
Boundary treatements - proposed
Revised Plan
Not archived · Council Link
Cil form
Supporting Document
Not archived · Council Link
Contaminated land assessment form
Report / Statement
Not archived · Council Link
Details
Revised Plan
Not archived · Council Link
Details
Revised Plan
Not archived · Council Link
Elevations - the granary & harrow barn - as built
Revised Plan
Not archived · Council Link
Elevations - the granary & harrow barn - proposed
Revised Plan
Not archived · Council Link
Landscaping- curtilage structures & boundary treatment
Revised Plan
Not archived · Council Link
Landscaping- curtilage structures & boundary treatment
Revised Plan
Not archived · Council Link
Location plan
Superseded Document or Plan
Not archived · Council Link
Location plan
Revised Plan
Not archived · Council Link
Meeting minutes
Supporting Document
Not archived · Council Link
Planning statement
Superseded Document or Plan
Not archived · Council Link
Planning statement incorporating heritage impact assessment
Report / Statement
Not archived · Council Link
Planning statement incorporating heritage impact assessment
Superseded Document or Plan
Not archived · Council Link
Proposed boundary treatment
Superseded Document or Plan
Not archived · Council Link
Proposed details - brick wall to rear of harrow barn / the granary
Superseded Document or Plan
Not archived · Council Link
Proposed details - high level windows to harrow barn / the granary
Superseded Document or Plan
Not archived · Council Link
Proposed elevations - plots 4 & 6 (the granary & harrow barn)
Superseded Document or Plan
Not archived · Council Link
Proposed plan - landscaping, curtilage structures & boundary treatment
Superseded Document or Plan
Not archived · Council Link
Proposed wieneberger brick treatment
Superseded Document or Plan
Not archived · Council Link
Section 111 form girams
Supporting Document
Not archived · Council Link
Shadow habitats & regulations assessment
Report / Statement
Not archived · Council Link
Superseded Document or Plan
Archived · Council Link
Revised Plan
Archived · Council Link
The granary & harrow barn - as built
Revised Plan
Not archived · Council Link
The granary & harrow barn - proposed
Revised Plan
Not archived · Council Link
Wieneberger brick treatment - proposed
Revised Plan
Not archived · Council Link

Take Action

Make your voice heard. Authorities need to hear from people who support new homes.

✉️ Write Email in Support View on Council Portal