← Back to North Norfolk District Council

Status

Pending Consideration Change of use
Received
19 days ago
New dwellings
7

Full Proposal

Change of use of four agricultural buildings to seven dwellinghouses (Class C3) and building operations reasonably necessary for the conversion

Documents

Application form
Application Form
Not archived · Council Link
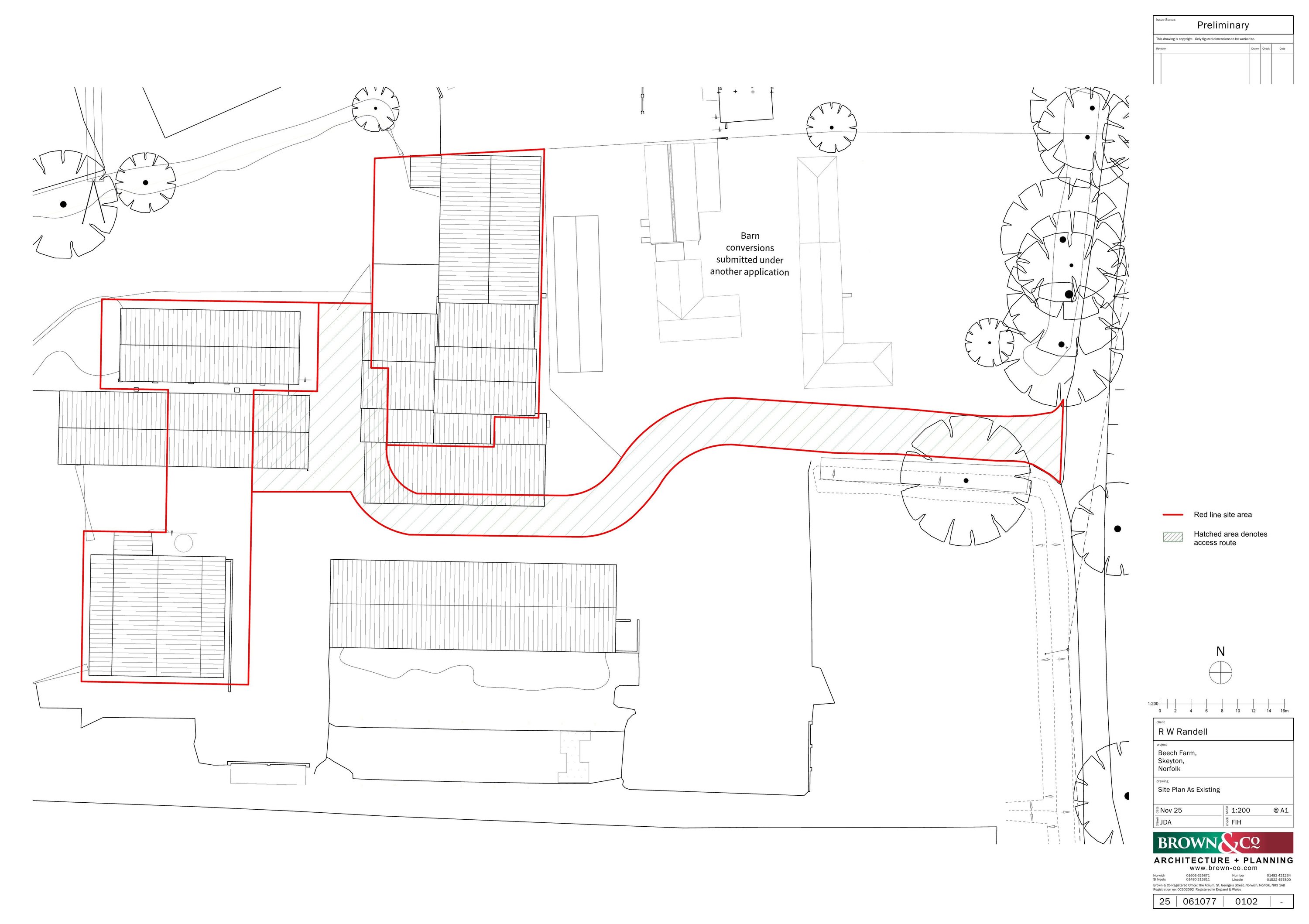
Barns 1, 2 & 3 existing elevations
Plan
Not archived · Council Link
Barns 1, 2 & 3 existing floorplans
Plan
Not archived · Council Link
Barns 1, 2 & 3 proposed elevations
Plan
Not archived · Council Link
Barns 1, 2 & 3 proposed first floor plans
Plan
Not archived · Council Link
Barns 1, 2 & 3 proposed ground floor plans
Plan
Not archived · Council Link
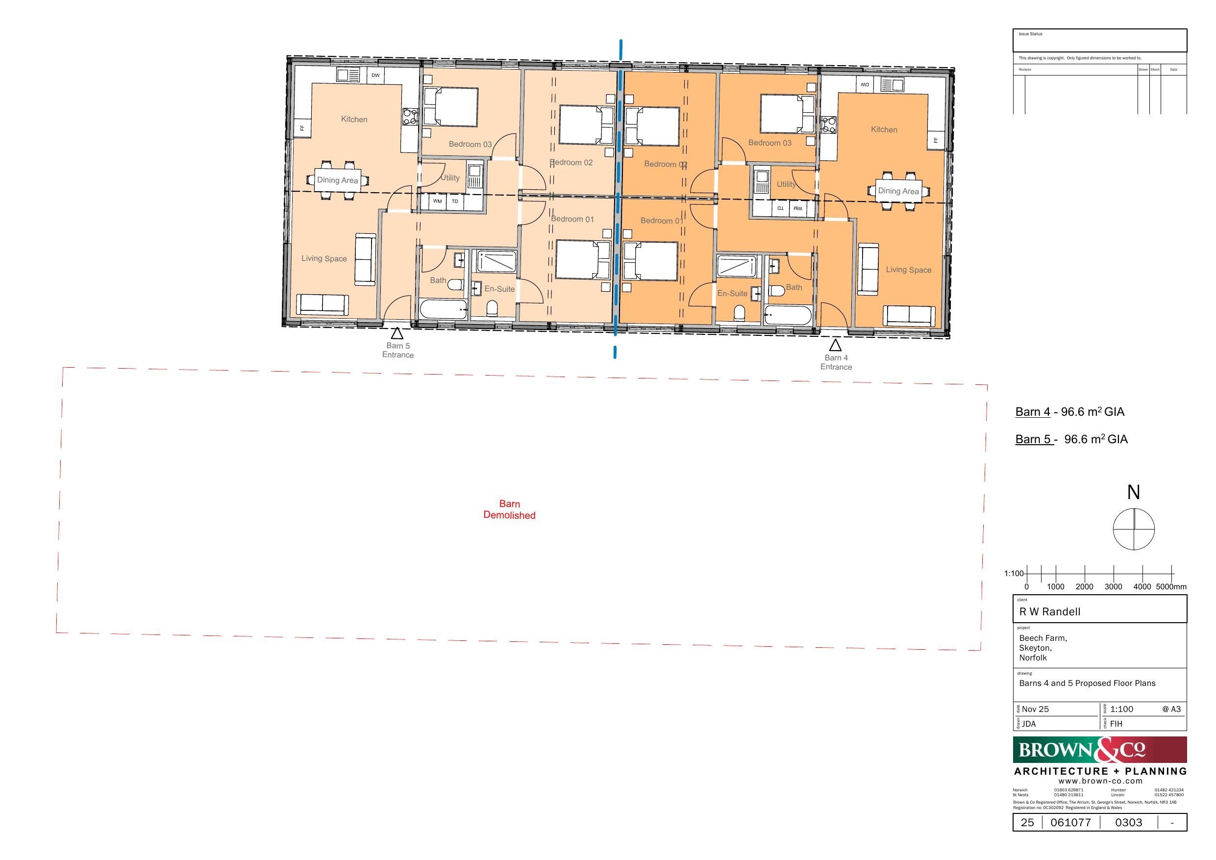
Barns 4 & 5 existing elevations
Plan
Not archived · Council Link
Barns 4 & 5 existing floorplans
Plan
Not archived · Council Link
Barns 4 & 5 proposed elevations
Plan
Not archived · Council Link
Barns 6 & 7 existing elevations
Plan
Not archived · Council Link
Barns 6 & 7 existing plans
Plan
Not archived · Council Link
Barns 6 & 7 proposed elevations
Plan
Not archived · Council Link
Bat emergence survey report
Report / Statement
Not archived · Council Link
Plan
Archived · Council Link
Norfolk budget calculator v2.2 class q
Report / Statement
Not archived · Council Link
Norfolk budget calculator v2.2 conversion
Report / Statement
Not archived · Council Link
Nutrient neutrality mitigation strategy
Report / Statement
Not archived · Council Link
Planning supporting statement
Report / Statement
Not archived · Council Link
Preliminary ecological appraisal
Report / Statement
Not archived · Council Link
Plan
Archived · Council Link
Shadow habitats regulations assessment
Report / Statement
Not archived · Council Link
Plan
Archived · Council Link

Take Action

Make your voice heard. Authorities need to hear from people who support new homes.

✉️ Write Email in Support View on Council Portal