← Back to North Northamptonshire Council

Status

In progress New housing
Received
16 Sep 2025
New dwellings
1

Full Proposal

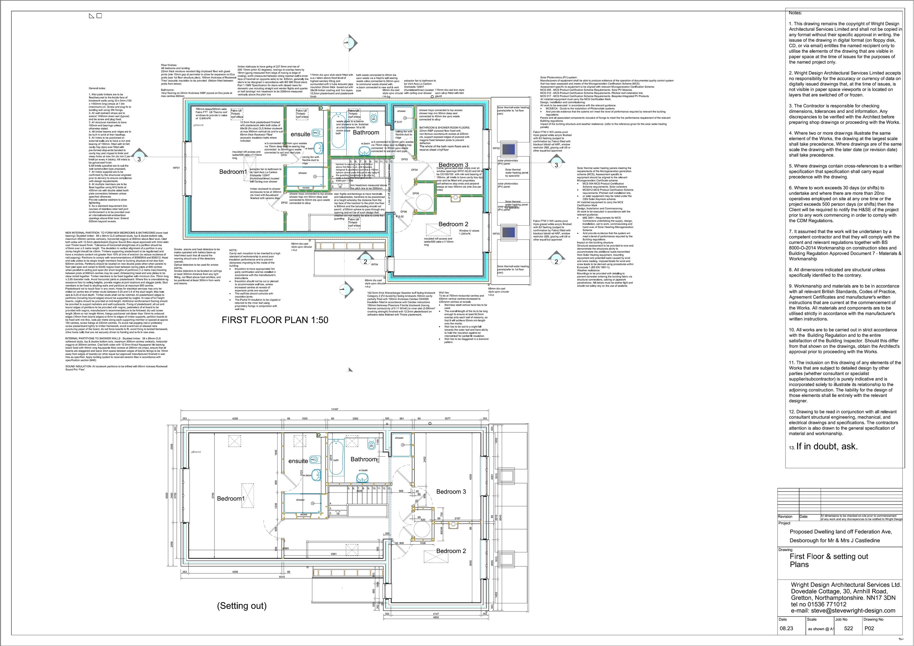
Construction of 1 no. self-build dwelling

Documents

Applicationformredacted
Application Form
Not archived · Council Link
Location plan and proposed block plan
Plans and Drawings
Not archived · Council Link
Proposed elevations
Plans and Drawings
Not archived · Council Link
Plans and Drawings
Archived · Council Link
Plans and Drawings
Archived · Council Link
Plans and Drawings
Archived · Council Link

Take Action

Make your voice heard. Authorities need to hear from people who support new homes.

✉️ Write Email in Support View on Council Portal