← Back to North Northamptonshire Council

Status

In progress House extension
Received
02 Dec 2025
New dwellings
0

Full Proposal

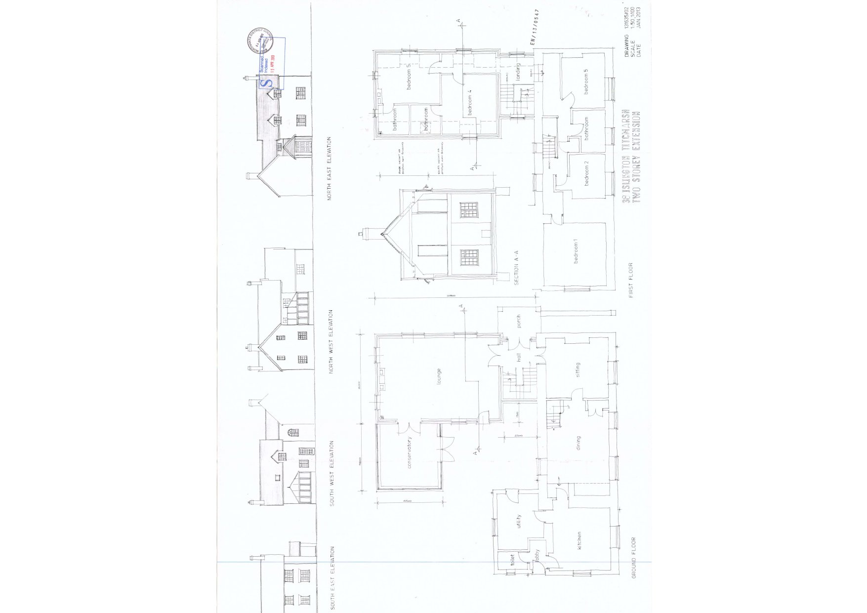
Extend SW elevation wall 2.3m to abut existing dwelling, lower ceiling height, remove dormer windows and roof lights, install wall-mounted windows, install one extra window to SW and NE elevations, extend roof line (renewal of 13/00547/FUL).

Documents

Application form
Application Form
Not archived · Council Link
Application form
Application Form
Not archived · Council Link
Application form
Application Form
Not archived · Council Link
Plans and Drawings
Archived · Council Link
Plans and Drawings
Archived · Council Link
Design and access statement
Other
Not archived · Council Link
Elevation plan - proposed
Plans and Drawings
Not archived · Council Link
Floor plans - proposed
Plans and Drawings
Not archived · Council Link
Heritage impact assessment
Other
Not archived · Council Link
Location plan
Plans and Drawings
Not archived · Council Link

Take Action

Make your voice heard. Authorities need to hear from people who support new homes.

✉️ Write Email in Support View on Council Portal