← Back to North Somerset Council

Status

Awaiting decision New housing
Received
16 Jul 2025
New dwellings
3

Summary

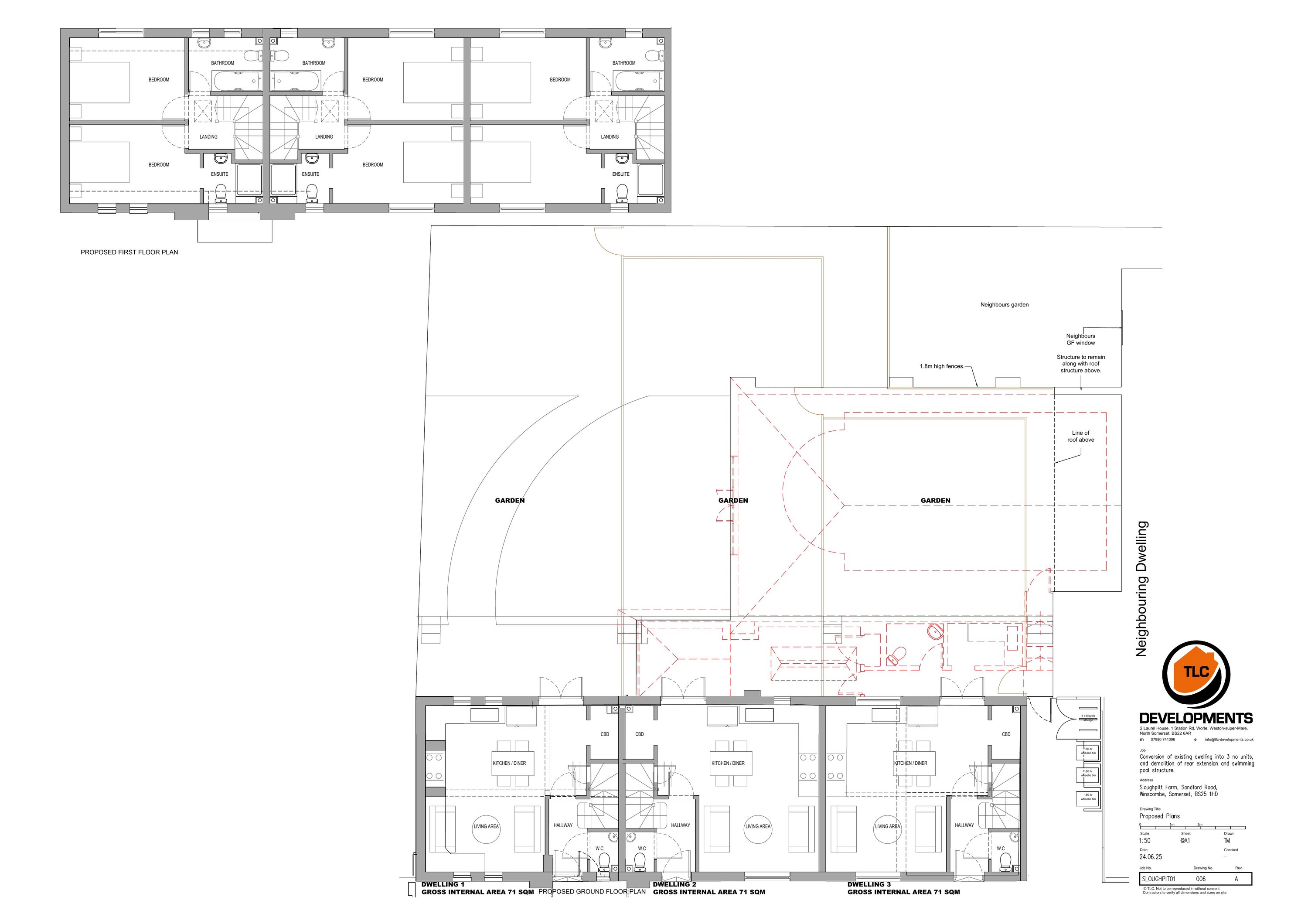
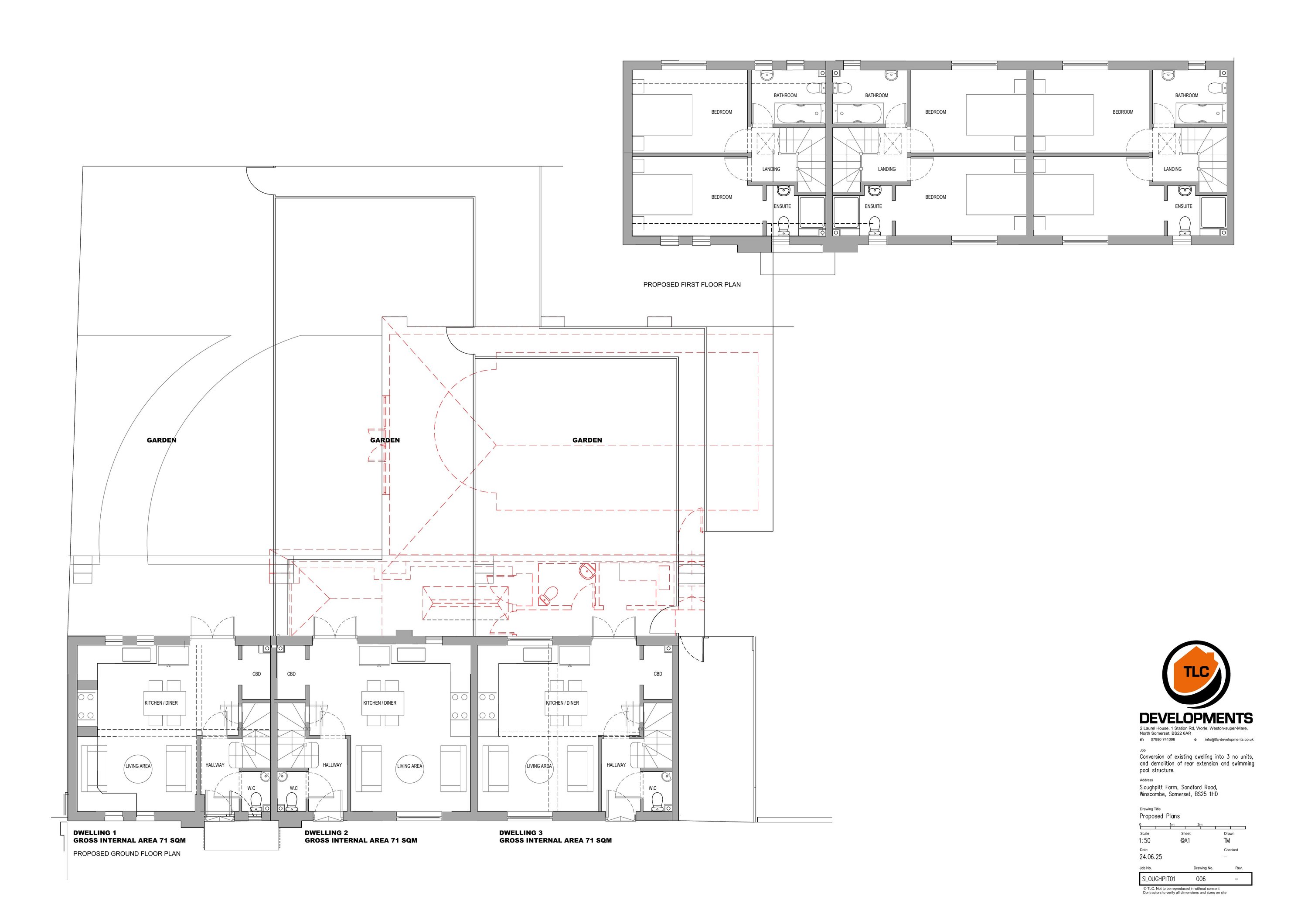
Demolish pool and rear extension; erect first-floor extensions and convert dwelling into three dwellings.

Full Proposal

Demolition of existing swimming pool building and existing rear extension to dwelling. Erection of first floor extensions to existing dwelling and conversion into 3 no. dwellings

Documents

APPLICATIONFORMREDACTED
Application Form
Not archived · Council Link
CIL FORM 1 - ADDITIONAL INFORMATION
CIL Notices
Not archived · Council Link
ECOLOGICAL IMPACT ASSESSMENT
Ecological report
Not archived · Council Link
ECOLOGY COMMENTS
Consultation Reply
Not archived · Council Link
ENERGY CALCULATION
Energy Statement
Not archived · Council Link
ENERGY STATEMENT
Energy Statement
Not archived · Council Link
EXISTING & PROPOSED BLOCK PLAN
Plan
Not archived · Council Link
EXISTING AND PROPOSED PLAN
Plan
Not archived · Council Link
EXISTING ELEVATIONS
Plan
Not archived · Council Link
EXISTING ELEVATIONS
Plan
Not archived · Council Link
EXISTING ELEVATIONS
Plan
Not archived · Council Link
EXISTING ELEVATIONS
Plan
Not archived · Council Link
EXISTING FLOOR PLANS
Plan
Not archived · Council Link
EXISTING FLOOR PLANS
Plan
Not archived · Council Link
HTDM COMMENTS
Consultation Reply
Not archived · Council Link
PROPOSED ELEVATIONS
Plan
Not archived · Council Link
PROPOSED ELEVATIONS
Plan
Not archived · Council Link
PROPOSED ELEVATIONS
Plan
Not archived · Council Link
PROPOSED ELEVATIONS
Plan
Not archived · Council Link
REVISED ELEVATIONS
Amended Plan
Not archived · Council Link
REVISED EXISTING ELEVATIONS
Amended Plan
Not archived · Council Link
REVISED FLOOR PLANS
Amended Plan
Not archived · Council Link
REVISED FLOOR PLANS
Amended Plan
Not archived · Council Link
REVISED FRONT AND REAR ELEVATIONS
Amended Plan
Not archived · Council Link
REVISED SIDE ELEVATIONS
Amended Plan
Not archived · Council Link
Amended Plan
Archived · Council Link
OS Extract
Archived · Council Link
SUMMARY INFORMATION REPORT FOLLOWING BUILDER UPGRADES
Energy Statement
Not archived · Council Link
SUMMARY INFORMATION REPORT MINIMUM FOR REG
Energy Statement
Not archived · Council Link
SUMMARY INFORMATION REPORT WITH PV
Energy Statement
Not archived · Council Link
WINSCOMBE & SANDFORD PARISH COUNCIL COMMENTS
Town/Parish Council Comment
Not archived · Council Link

Take Action

Make your voice heard. Authorities need to hear from people who support new homes.

✉️ Write Email in Support View on Council Portal