← Back to North Somerset Council

Status

Registered Change of use
Received
15 Sep 2025
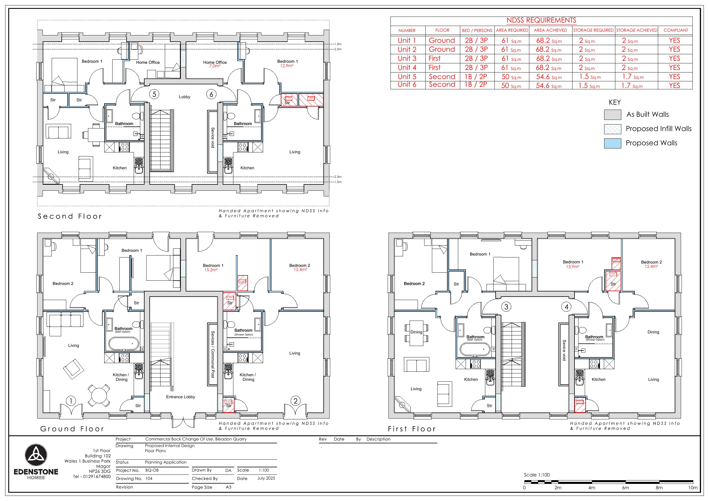
New dwellings
6

Summary

Conversion of existing office (Class E) to form 6 residential flats (Class C3).

Full Proposal

Proposed conversion of the existing office building (Class E) to form 6no. residential flats (Class C3) and associated works.

Documents

ACCESSIBLE HOUSING STATEMENT
Report
Not archived · Council Link
APPLICATIONFORMREDACTED
Application Form
Not archived · Council Link
BIN & BIKE STORES - DETAILS
Plan
Not archived · Council Link
BIN & CYCLE STORE LAYOUT
Plan
Not archived · Council Link
BIN AND CYCLE STORE
Plan
Not archived · Council Link
CIL FORM 1
CIL Notices
Not archived · Council Link
COVERING LETTER
Application Letter
Not archived · Council Link
ECONOMIC STATEMENT
Economic Statement
Not archived · Council Link
ECONOMY TEAM COMMENTS
Consultation Reply
Not archived · Council Link
ENERGY STATEMENT
Energy Statement
Not archived · Council Link
EXISTING ELEVATIONS
Plan
Not archived · Council Link
EXISTING FLOOR PLANS
Plan
Not archived · Council Link
FLOOD RISK STATEMENT
Flood risk assessment
Not archived · Council Link
HTDM COMMENTS
Consultation Reply
Not archived · Council Link
LLFA COMMENTS
Consultation Reply
Not archived · Council Link
PRO-FORMA FOR SECTION 106
Other
Not archived · Council Link
PROPOSED ELEVATIONS
Plan
Not archived · Council Link
RESPONSE TO ECONOMY TEAM COMMENTS
Consultation Reply
Not archived · Council Link
Plan
Archived · Council Link
OS Extract
Archived · Council Link
UNILATERAL UNDERTAKING VER. 3
Other
Not archived · Council Link

Take Action

Make your voice heard. Authorities need to hear from people who support new homes.

✉️ Write Email in Support View on Council Portal