← Back to North Somerset Council

Status

Registered Change of use
Received
12 Dec 2025
New dwellings
1

Full Proposal

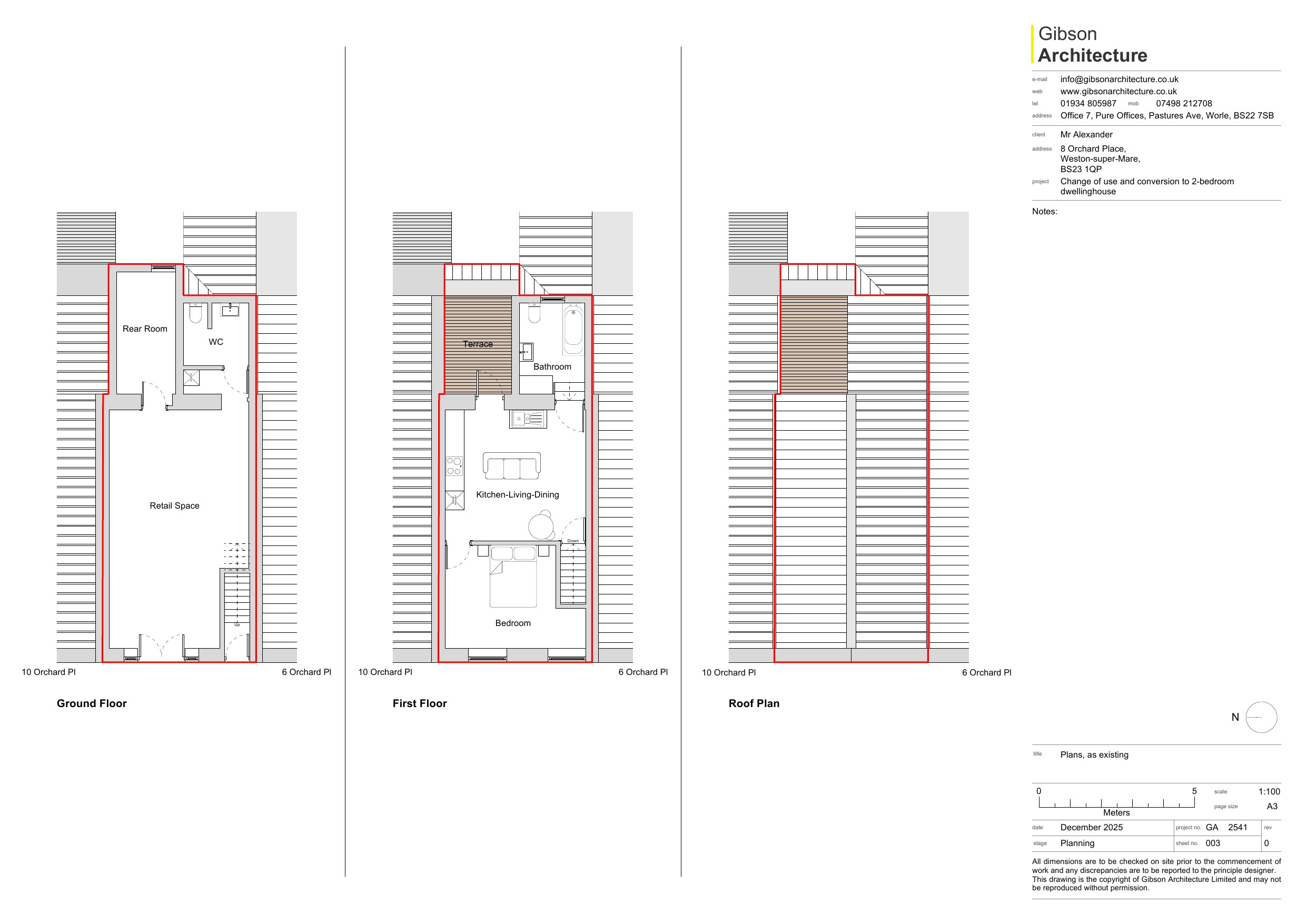
Change of use of ground floor commercial unit to be combined with first floor residential unit to create 1no. dwellinghouse. Alterations to front elevation.

Documents

APPLICATIONFORMREDACTED
Application Form
Not archived · Council Link
CIL FORM 1 - ADDITIONAL INFORMATION FORM
CIL Notices
Not archived · Council Link
CONSULTATION REPORT FROM ENVIRONMENTAL AGENCY
Consultation Reply
Not archived · Council Link
DESIGN, ACCESS, HERITAGE AND ECONOMIC STATEMENT
Design and access statement
Not archived · Council Link
Flood risk assessment
Flood risk assessment
Not archived · Council Link
GA_2541_002_BLOCK PLAN
Plan
Not archived · Council Link
PRESS ADVERT LIST FOR 22/01/26
Press Advert
Not archived · Council Link

Take Action

Make your voice heard. Authorities need to hear from people who support new homes.

✉️ Write Email in Support View on Council Portal