← Back to North Somerset Council

Status

Registered New housing
Received
22 Dec 2025
New dwellings
36

Full Proposal

Erection of up to 36no. 100% affordable residential dwellings, alongside an electric sub-station, parking spaces, public open space, associated infrastructure, and landscape works.

Documents

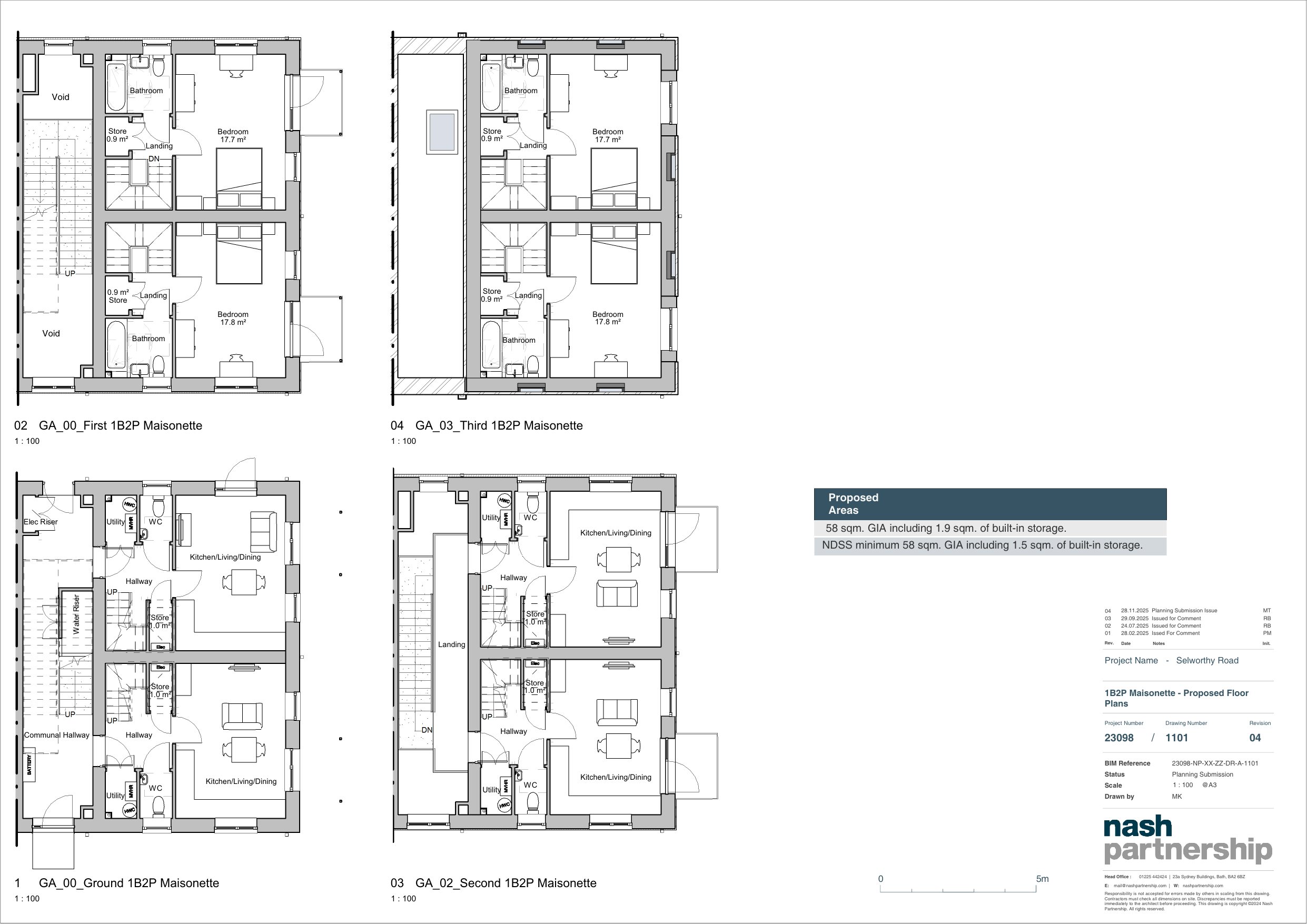
1B2P MAISONETTE - PROPOSED ELEVATIONS
Plan
Not archived · Council Link
APPLICATIONFORMREDACTED
Application Form
Not archived · Council Link
ARBORICULTURAL SURVEY
Arboricultural statement
Not archived · Council Link
ARCHAEOLOGY COMMENTS
Consultation Reply
Not archived · Council Link
AVON FIRE & RESCUE - FIRE HYDRANT REQUIREMENTS
Consultation Reply
Not archived · Council Link
AVON FIRE & RESCUE - LETTER OF INTEREST
Consultation Reply
Not archived · Council Link
AVON FIRE & RESCUE ILLUSTRATIVE DRAWING
Consultation Reply
Not archived · Council Link
AVON FIRE & RESCUE RESPONSE
Consultation Reply
Not archived · Council Link
BNG METRIC
Ecological report
Not archived · Council Link
BNG REPORT
Ecological report
Not archived · Council Link
CIL FORM 1
CIL Notices
Not archived · Council Link
COVERING LETTER
Application Letter
Not archived · Council Link
CRIME PREVENTION TEAM COMMENTS
Consultation Reply
Not archived · Council Link
DESIGN AND ACCESS STATEMENT_1
Design and access statement
Not archived · Council Link
DESIGN AND ACCESS STATEMENT_2
Design and access statement
Not archived · Council Link
DETAIL - TREE PIT MULTI-STEM IN SOFT LANDSCAPE
Plan
Not archived · Council Link
DETAIL - TREE PIT SEMI-MATURE IN SOFT LANDSCAPE
Plan
Not archived · Council Link
DETAIL - TREE PIT UNDER 20CM GIRTH IN SOFT LANDSCAPE
Plan
Not archived · Council Link
DETAIL - TREE PIT UNDER 20CM GIRTH PARTIAL HARD SURFACING
Plan
Not archived · Council Link
ECOLOGICAL CHECKLIST
Ecological report
Not archived · Council Link
ECOLOGICAL IMPACT ASSESSMENT
Ecological report
Not archived · Council Link
ECOLOGY OFFICER
Consultation Reply
Not archived · Council Link
ENERGY AND SUSTAINABILITY STATEMENT
Energy Statement
Not archived · Council Link
ENVIRONMENT RESPONSE
Consultation Reply
Not archived · Council Link
ENVIRONMENTAL PROTECTION
Consultation Reply
Not archived · Council Link
EXISTING HABITATS PLAN
Ecological report
Not archived · Council Link
Plan
Archived · Council Link
FLOOD RISK ASSESSMENT
Flood risk assessment
Not archived · Council Link
ILLUSTRATIVE MASTERPLAN
Plan
Not archived · Council Link
LANDSCAPE PLAN
Plan
Not archived · Council Link
LANDSCAPE STRATEGY
Report
Not archived · Council Link
PLANNING STATEMENT
Planning Statement
Not archived · Council Link
PLANT SCHEDULE
Report
Not archived · Council Link
PLANTING PLAN
Plan
Not archived · Council Link
PRESS ADVERT LIST FOR 22/01/26
Press Advert
Not archived · Council Link
PRINCIPAL PARKS AND OPEN SPACE OFFICER
Email
Not archived · Council Link
PROPOSED BOUNDARY TREATMENT PLAN
Plan
Not archived · Council Link
PROPOSED HABITATS PLAN
Ecological report
Not archived · Council Link
PROPOSED SITE LAYOUT
Plan
Not archived · Council Link
RESPONSE TO REQUEST FOR A HISTORIC ENVIRONMENT DESK-BASED ASSESSMENT
Heritage statement
Not archived · Council Link
SCHEDULE OF ACCOMMODATION
Report
Not archived · Council Link
SECTION AA
Plan
Not archived · Council Link
SECTION BB
Plan
Not archived · Council Link
SECTION CC
Plan
Not archived · Council Link
SECTION DD
Plan
Not archived · Council Link
OS Extract
Archived · Council Link
STREET ELEVATIONS AA/BB/CC
Plan
Not archived · Council Link
STREET ELEVATIONS DD/EE
Plan
Not archived · Council Link
SUBMITTED DOCUMENT SCHEDULE
Other
Not archived · Council Link
TRANSPORT STATEMENT
TRANSPORT ASSESSMENT
Not archived · Council Link
TREE OFFICER COMMENT 22/01/26
Email
Not archived · Council Link

Take Action

Make your voice heard. Authorities need to hear from people who support new homes.

✉️ Write Email in Support View on Council Portal