← Back to Northumberland County Council

Status

Withdrawn
Received
03 Oct 2025
New dwellings
n/a

Full Proposal

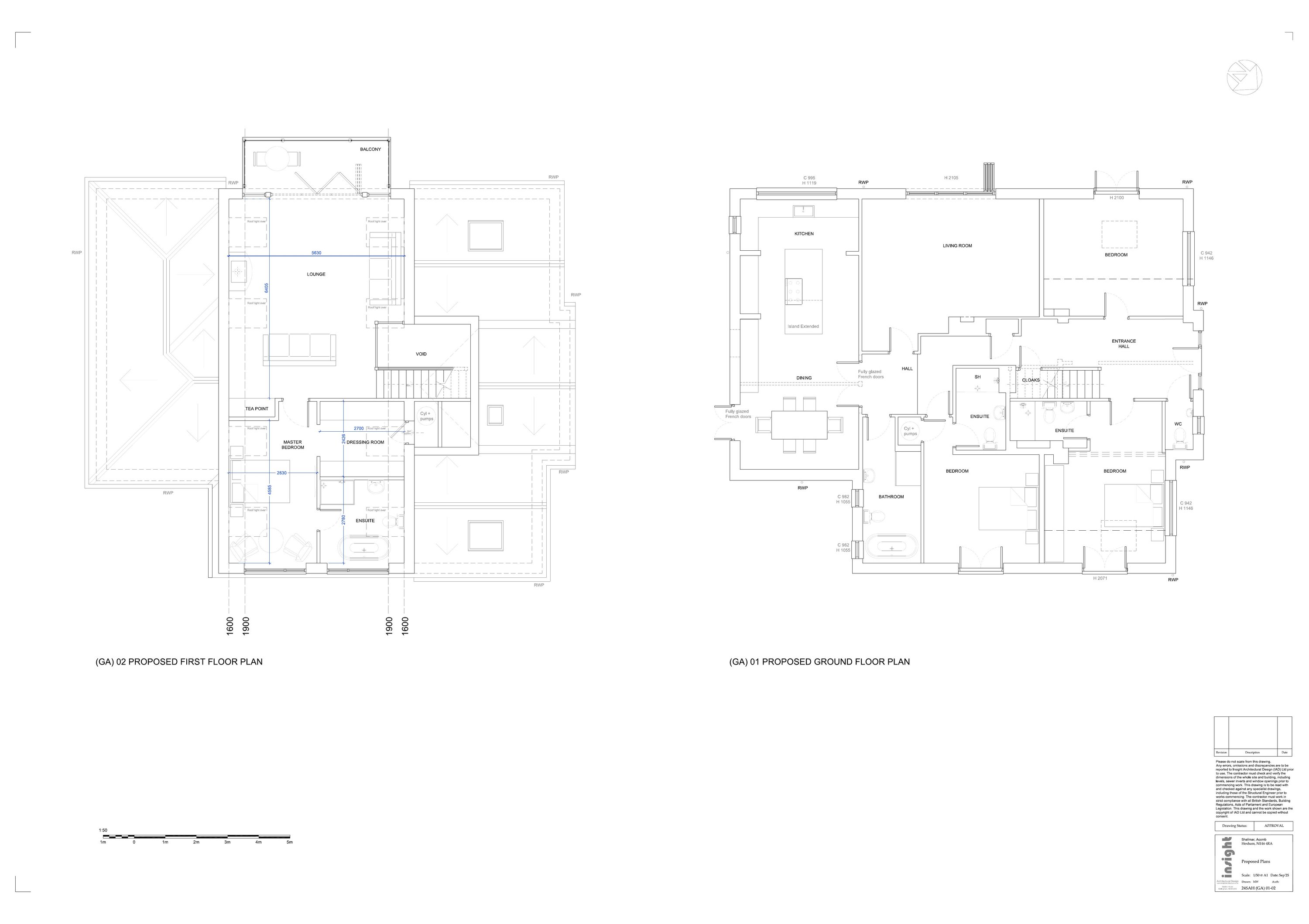
Lift ridgeline of existing dwelling to create first floor lounge and master bedroom in roof void.

Documents

24SAH (EX) 21-24 EXISTING ELEVATIONS
Plan
Not archived · Council Link
24SAH (GA) 21-24 PROPOSED ELEVATIONS
Plan
Not archived · Council Link
24SAH DESIGN AND ACCESS STATEMENT
Report/ Statement
Not archived · Council Link
24SAH NCC APPENDIX A ECOLOGY CHECKLIST
Ecology Checklist
Not archived · Council Link
3 ALNMOUTH TERRACE
Support
Not archived · Council Link
Application Form
Application Form
Not archived · Council Link
COMMENT (OBJECTION) SUBMITTED ONLINE
Objection Comment
Not archived · Council Link
COMMENT (OBJECTION) SUBMITTED ONLINE
Objection Comment
Not archived · Council Link
COMMENT (OBJECTION) SUBMITTED ONLINE
Objection Comment
Not archived · Council Link
COMMENT (OBJECTION) SUBMITTED ONLINE
Objection Comment
Not archived · Council Link
COMMENT (SUPPORT) SUBMITTED ONLINE
Support Comment
Not archived · Council Link
EXISTING AND PROPOSED ROOF PLAN
Plan
Not archived · Council Link
EXISTING GROUND FLOOR AND ROOF PLANS
Plan
Not archived · Council Link
MISTRAL
Objection
Not archived · Council Link
Withdrawn
Withdrawn
Not archived · Council Link

Take Action

Make your voice heard. Authorities need to hear from people who support new homes.

✉️ Write Email in Support View on Council Portal