← Back to Northumberland County Council

Status

Registered
Received
21 Oct 2025
New dwellings
n/a

Full Proposal

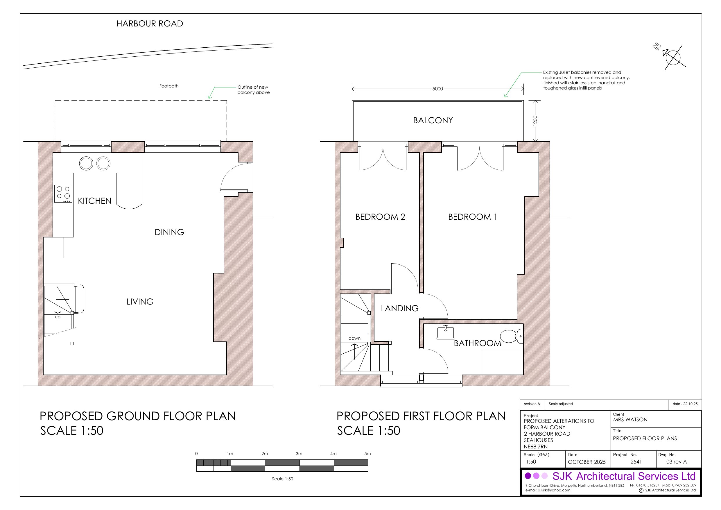
Construction of first floor balcony to dwelling

Documents

1 HARBOUR ROAD
Objection Comment
Not archived · Council Link
1 HARBOUR ROAD PHOTOS
Objection
Not archived · Council Link
45 NORTH STREET
Objection Comment
Not archived · Council Link
5 LISTER AVENUE
Objection Comment
Not archived · Council Link
APPLICATION FORM REDACTED
Application Form
Not archived · Council Link
APPLICATIONFORMREDACTED
Superseded
Not archived · Council Link
DESIGN & ACCESS AND HERITAGE STATEMENT
Report/ Statement
Not archived · Council Link
EXISTING ELEVATIONS AND SECTION
Plan
Not archived · Council Link
EXISTING FLOOR PLANS
Plan
Not archived · Council Link
HIGHWAYS
Consultee Comment
Not archived · Council Link
Location Plan
Location Plan
Not archived · Council Link
NORTH SUNDERLAND AND SEAHOUSES PC
Consultee Comment
Not archived · Council Link
NORTHUMBERLAND COAST NATIONAL LANDSCAPE
Consultee Comment
Not archived · Council Link
PROPOSED ELEVATIONS AND SECTION
Plan
Not archived · Council Link

Take Action

Make your voice heard. Authorities need to hear from people who support new homes.

✉️ Write Email in Support View on Council Portal