← Back to Northumberland County Council

Status

Registered
Received
01 Dec 2025
New dwellings
n/a

Full Proposal

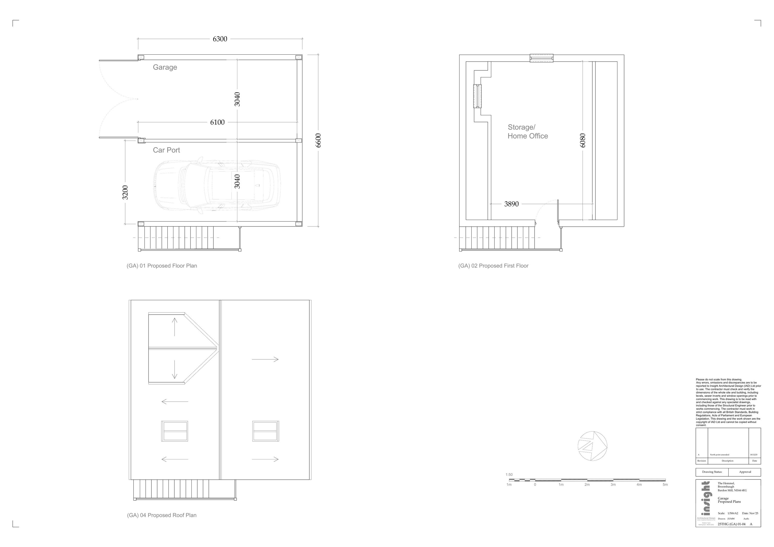
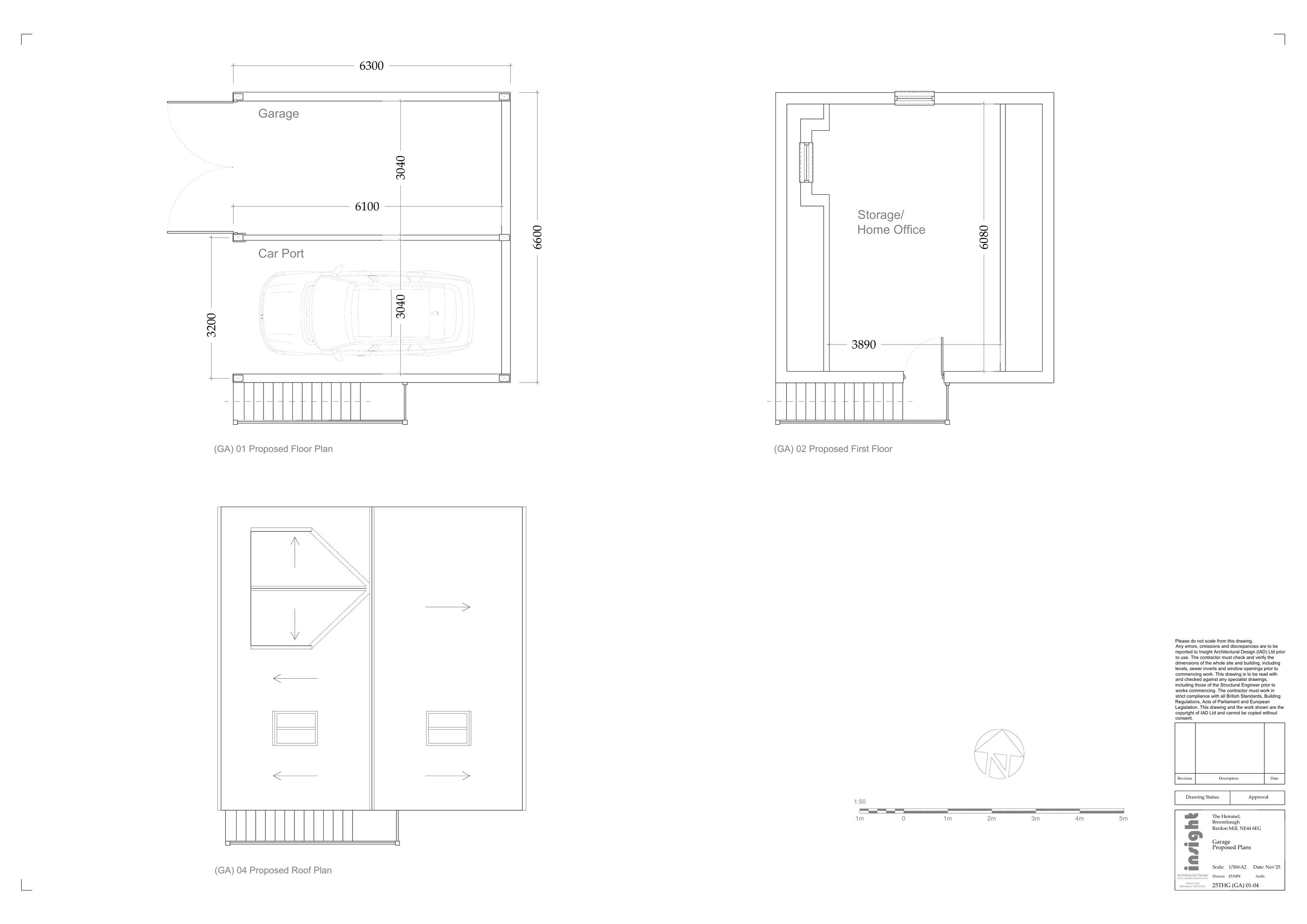
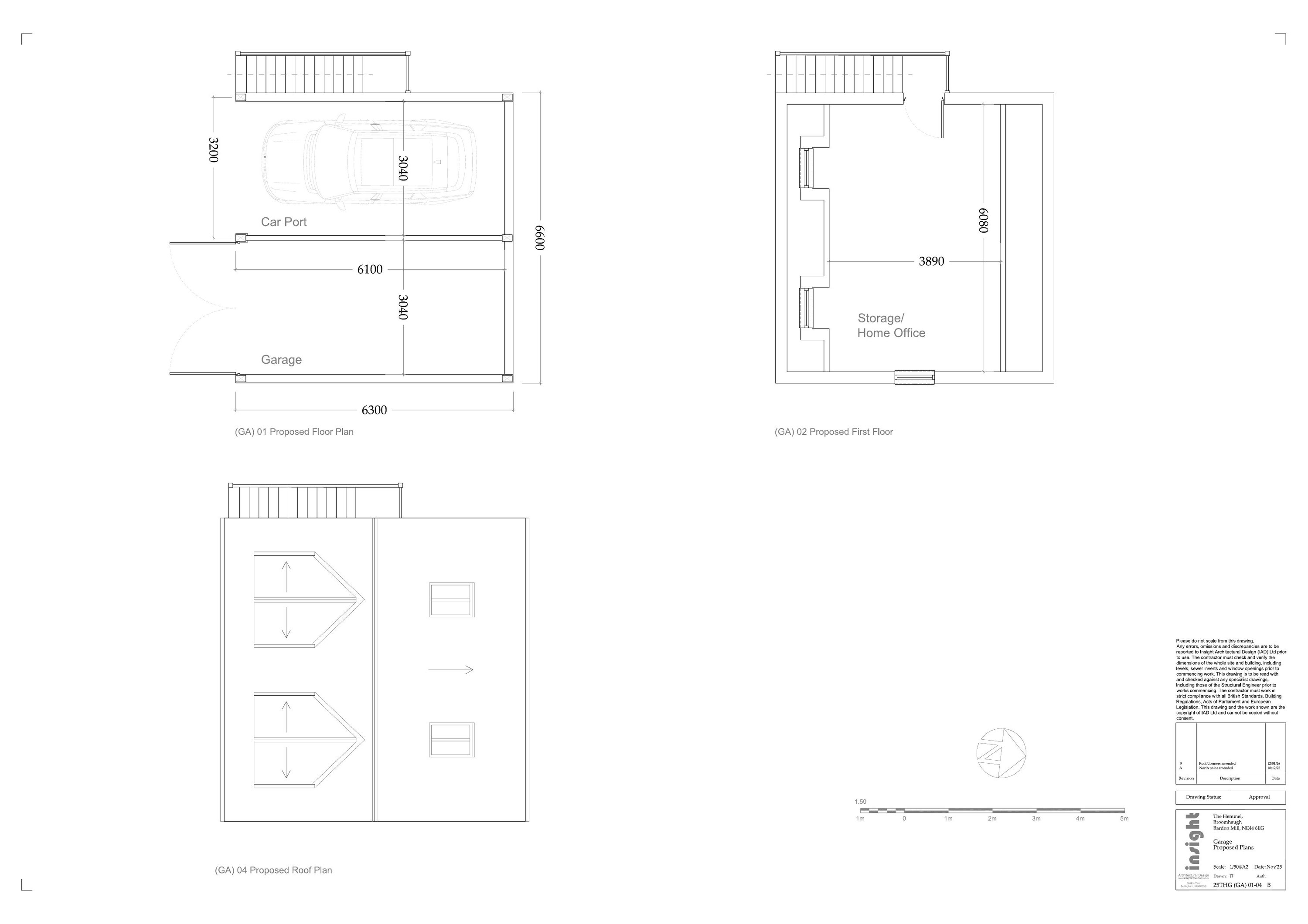
Proposed detached two car garage with storage and home office in the roof void.

Documents

25THG (GA) 21-24 PROPOSED ELEVATIONS
Superseded
Not archived · Council Link
Application Form
Application Form
Not archived · Council Link
ARBORICULTURAL METHOD STATEMENT
Report/ Statement
Not archived · Council Link
BAT RISK ASSESSMENT
Report/ Statement
Not archived · Council Link
COMMENT (NEUTRAL) SUBMITTED ONLINE
General Comment
Not archived · Council Link
CONSULTEE COMMENT SUBMITTED ONLINE
Consultee Comment
Not archived · Council Link
CONSULTEE COMMENT SUBMITTED ONLINE
Consultee Comment
Not archived · Council Link
CONSULTEE COMMENT SUBMITTED ONLINE
Consultee Comment
Not archived · Council Link
DESIGN AND ACCESS STATEMENT
Report/ Statement
Not archived · Council Link
HERITAGE, DESIGN AND ACCESS STATEMENT
Superseded
Not archived · Council Link
PROPOSED ELEVATIONS
Superseded
Not archived · Council Link
PROPOSED ELEVATIONS
Plan
Not archived · Council Link
PROPOSED ELEVATIONS
Superseded
Not archived · Council Link
Superseded
Archived · Council Link
Amended Plan
Archived · Council Link
Superseded
Archived · Council Link
Amended Plan
Archived · Council Link
TREE PROTECTION PLAN
Plan
Not archived · Council Link
WARB.ACP.THEHEMMEL.V1
Plan
Not archived · Council Link

Take Action

Make your voice heard. Authorities need to hear from people who support new homes.

✉️ Write Email in Support View on Council Portal