← Back to Northumberland County Council

Status

Registered
Received
15 Dec 2025
New dwellings
n/a

Full Proposal

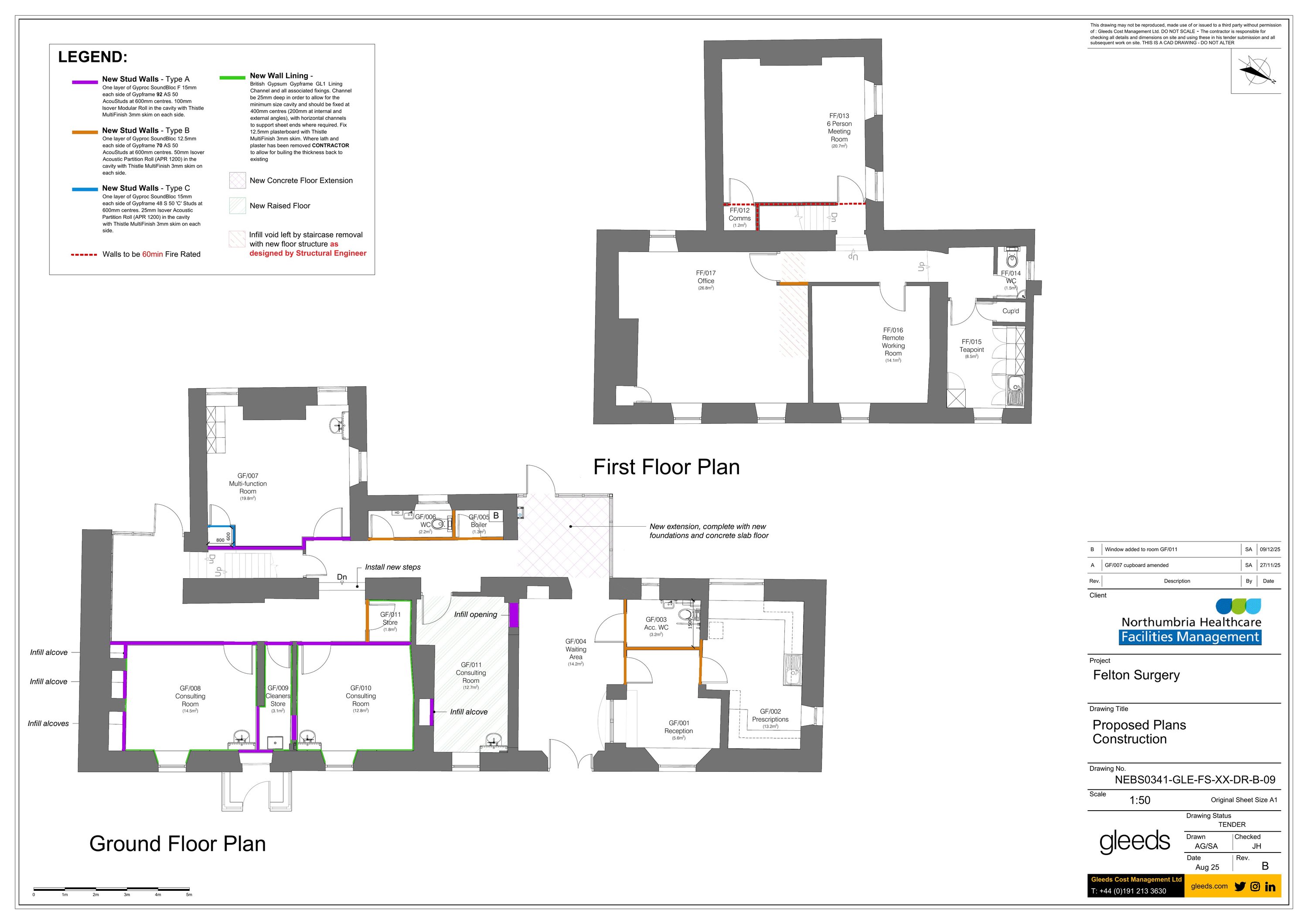
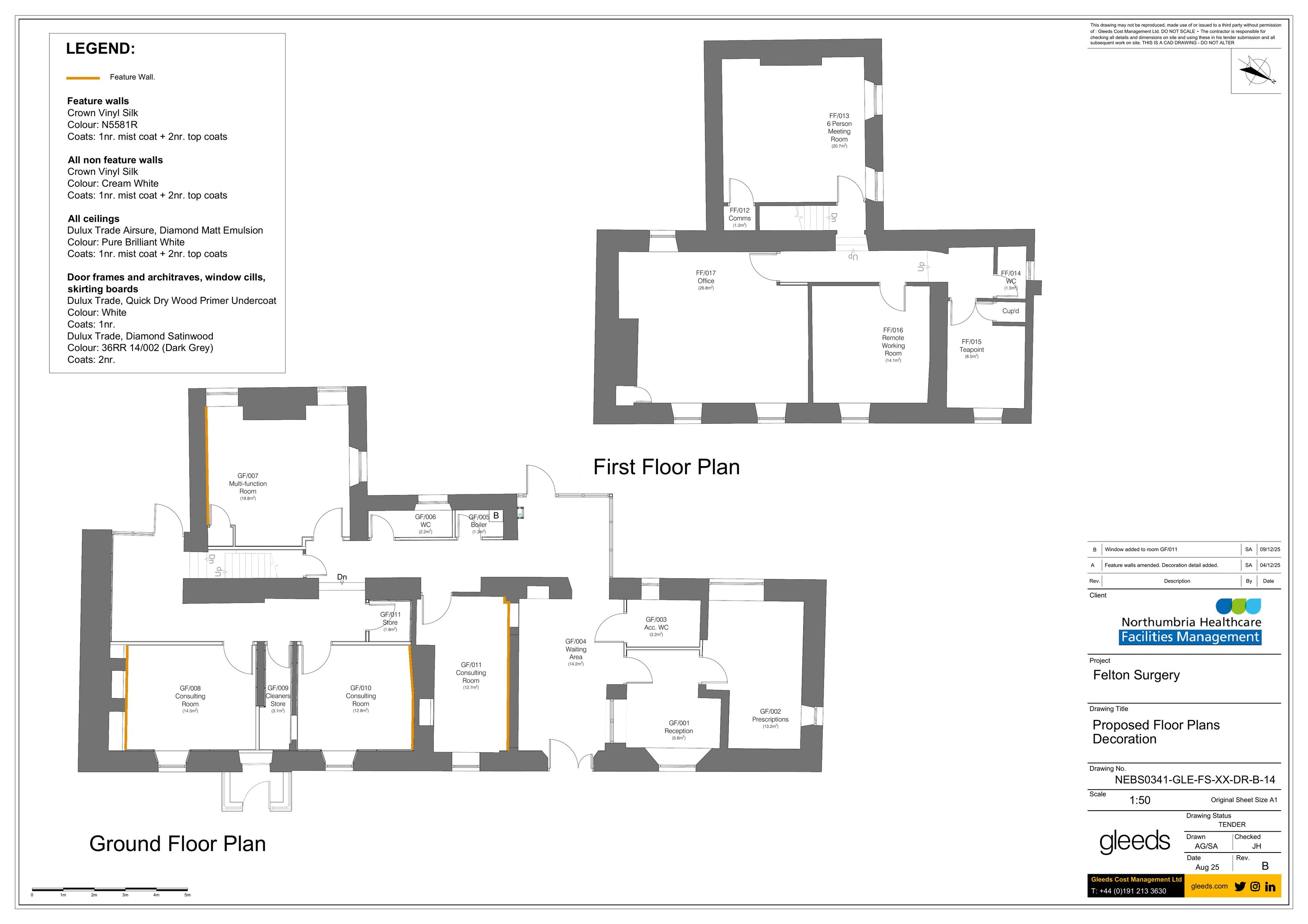
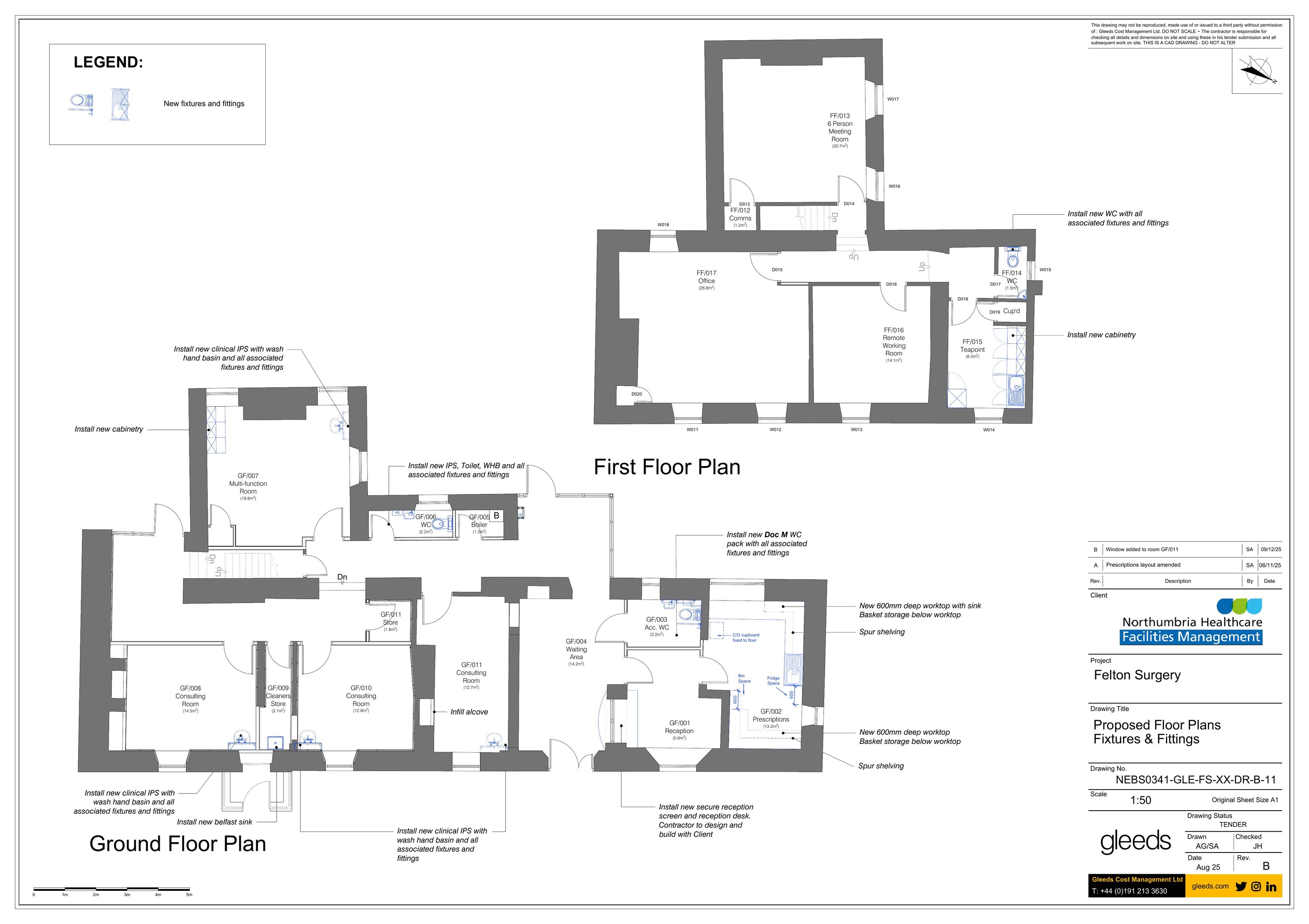
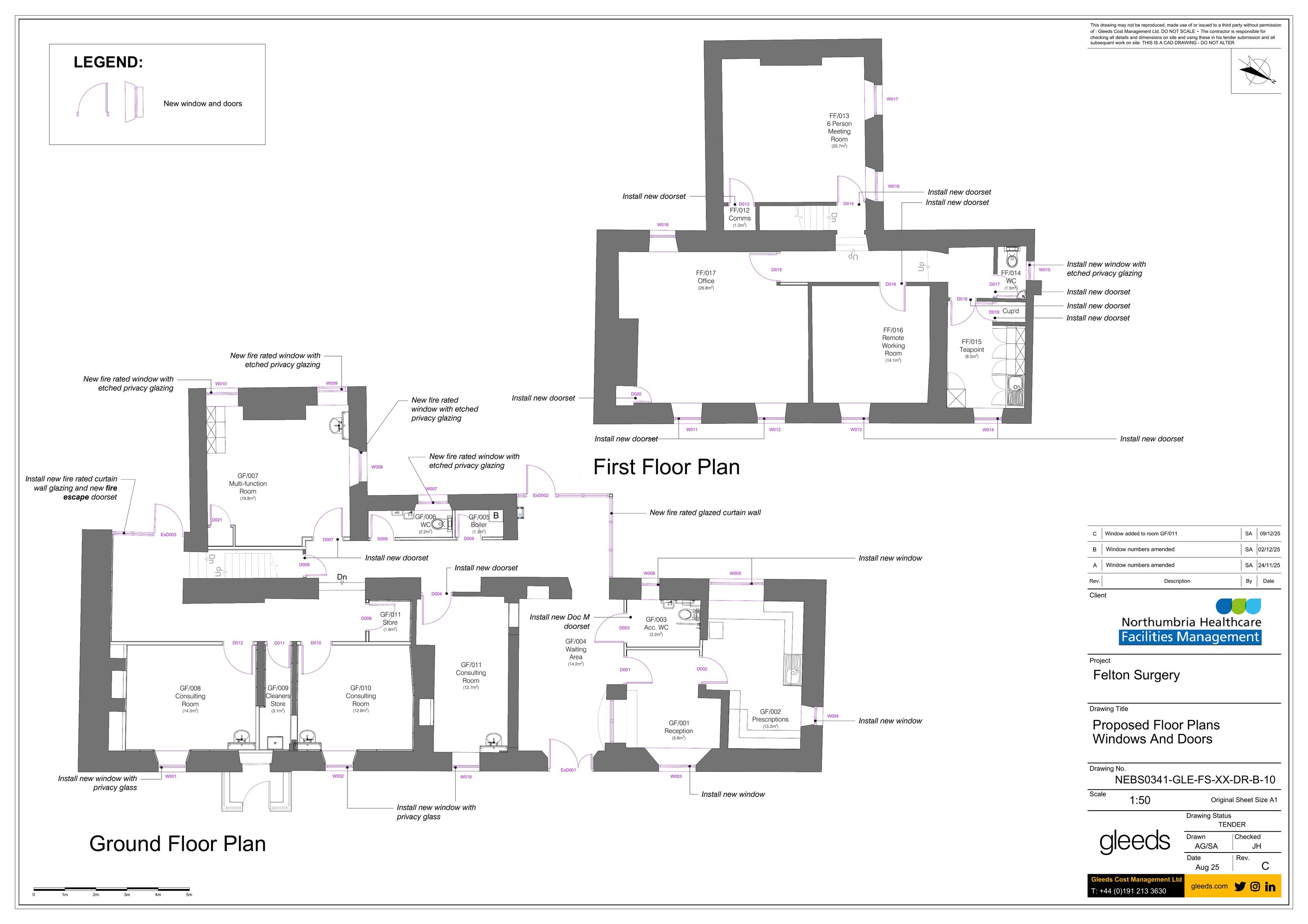
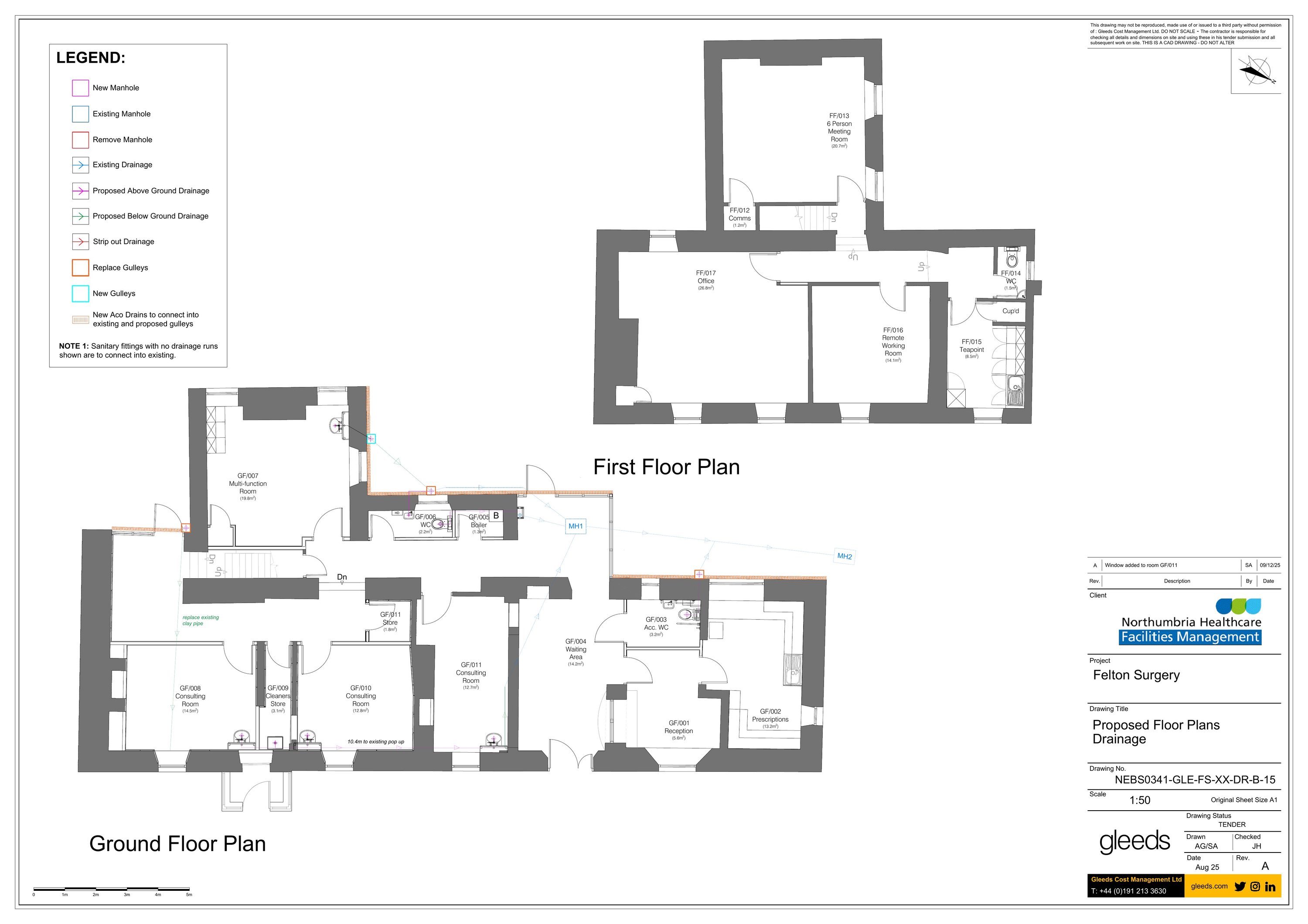
Refurbishment of the existing surgery and change of use of the attached former dwelling from Class C3 (Residential) to Class E(e) (Medical or Health Services), including internal refurbishment and external repair works. Demolition of the rear porch and erection of a single-storey glazed link extension to the rear to connect the two buildings. Formation of a two-bay car parking area with associated hard and soft landscaping.

Documents

APPLICATIONFORMREDACTED
Application Form
Not archived · Council Link
BIODIVERSITY NET GAIN ASSESSMENT
Report/ Statement
Not archived · Council Link
BNG Metric Calculation Tool
BNG Metric Calculation Tool
Not archived · Council Link
COMMENT (OBJECTION) SUBMITTED ONLINE
Objection Comment
Not archived · Council Link
CONSULTEE COMMENT SUBMITTED ONLINE
Consultee Comment
Not archived · Council Link
CONSULTEE COMMENT SUBMITTED ONLINE
Consultee Comment
Not archived · Council Link
CONSULTEE COMMENT SUBMITTED ONLINE
Consultee Comment
Not archived · Council Link
CONSULTEE COMMENT SUBMITTED ONLINE
Consultee Comment
Not archived · Council Link
CONSULTEE COMMENT SUBMITTED ONLINE
Consultee Comment
Not archived · Council Link
DESIGN AND ACCESS STATEMENT REV A
Report/ Statement
Not archived · Council Link
DRAWING REGISTER
Report/ Statement
Not archived · Council Link
EXISTING EAST AND NORTH ELEVATIONS
Plan
Not archived · Council Link
EXISTING FLOOR PLANS WALL TYPES
Plan
Not archived · Council Link
Plan
Archived · Council Link
EXISTING WEST AND SOUTH ELEVATIONS
Plan
Not archived · Council Link
FELTON PARISH COUNCIL
Consultee Comment
Not archived · Council Link
HERITAGE STATEMENT
Report/ Statement
Not archived · Council Link
LARGE ESTATE CAR SWEPT PATH ANALYSIS
Plan
Not archived · Council Link
Location Plan
Location Plan
Not archived · Council Link
PROPOSED EAST AND NORTH ELEVATIONS
Plan
Not archived · Council Link
PROPOSED EXTENSION
Plan
Not archived · Council Link
PROPOSED FIRST FLOOR PLAN DEMOLITION
Plan
Not archived · Council Link
PROPOSED GROUND FLOOR PLAN DEMOLITION
Plan
Not archived · Council Link
PROPOSED INTERNAL ELEVATIONS
Plan
Not archived · Council Link
Plan
Archived · Council Link
PROPOSED WEST AND SOUTH ELEVATIONS
Plan
Not archived · Council Link
SUPERSEDED APPLICATION FORM
Application Form
Not archived · Council Link
SUPERSEDED DESIGN AND ACCESS STATEMENT
Superseded
Not archived · Council Link
THE CROFT
Representation
Not archived · Council Link

Take Action

Make your voice heard. Authorities need to hear from people who support new homes.

✉️ Write Email in Support View on Council Portal