← Back to Northumberland County Council
25/04615/FUL
Northumberland County Council · IDOX
Status
Registered
Received
19 Dec 2025
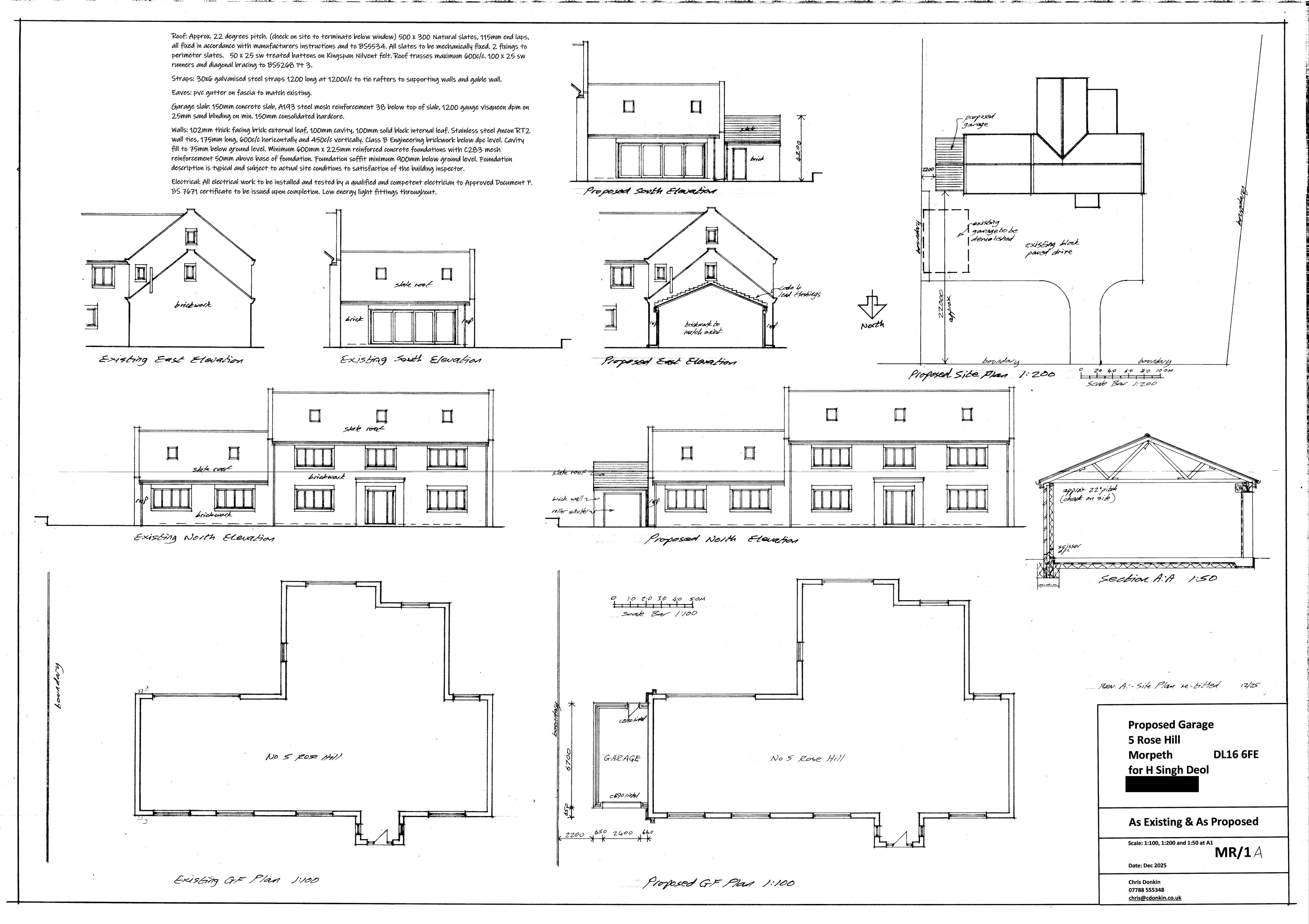
New dwellings
n/a
Full Proposal
Construct attached single garage to side of house
Documents
Take Action
Make your voice heard. Authorities need to hear from people who support new homes.