← Back to Northumberland County Council

Status

Registered
Received
Last month
New dwellings
n/a

Full Proposal

Change of use of existing vacant agricultural building to create a single dwelling unit; construction of detached garage on adjacent land; and associated landscaping and access works

Documents

APPLICATION FORM REDACTED
Application Form
Not archived · Council Link
COMMENT (NEUTRAL) SUBMITTED ONLINE
General Comment
Not archived · Council Link
CONSULTEE COMMENT SUBMITTED ONLINE
Consultee Comment
Not archived · Council Link
CONSULTEE COMMENT SUBMITTED ONLINE
Consultee Comment
Not archived · Council Link
CONSULTEE COMMENT SUBMITTED ONLINE
Consultee Comment
Not archived · Council Link
CONSULTEE COMMENT SUBMITTED ONLINE
Consultee Comment
Not archived · Council Link
CONSULTEE COMMENT SUBMITTED ONLINE
Consultee Comment
Not archived · Council Link
CONSULTEE COMMENT SUBMITTED ONLINE
Consultee Comment
Not archived · Council Link
CONTAMINATION SCREENING ASSESSMENT FORM
Report/ Statement
Not archived · Council Link
ECOLOGICAL IMPACT ASSESSMENT AND BAT SURVEY REPORT
Report/ Statement
Not archived · Council Link
ECOLOGY CHECKLIST
Ecology Checklist
Not archived · Council Link
EXISTING PLANS AND ELEVATIONS
Plan
Not archived · Council Link
Plan
Archived · Council Link
FOUL DRAINAGE ASSESSMENT FORM
Report/ Statement
Not archived · Council Link
PLANNING STATEMENT
Report/ Statement
Not archived · Council Link
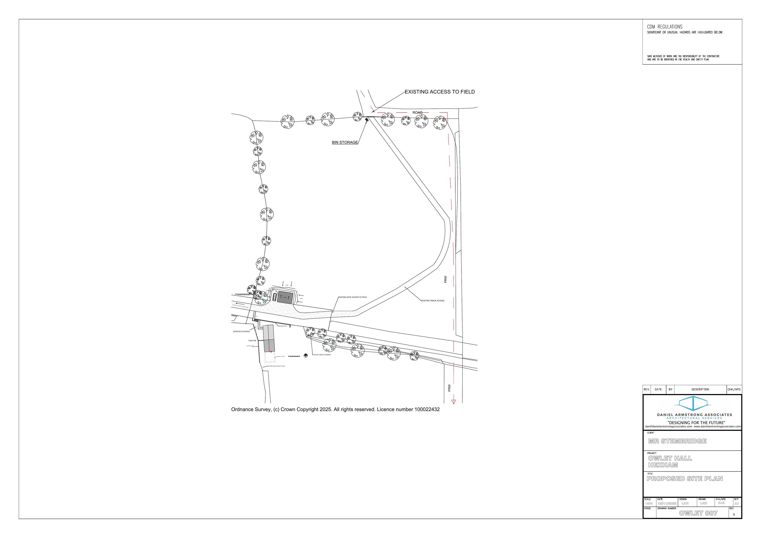
PROPOSED BLOCK PLAN
Plan
Not archived · Council Link
PROPOSED ELEVATIONS
Plan
Not archived · Council Link
PROPOSED GARAGE DETAILS
Plan
Not archived · Council Link
Plan
Archived · Council Link
Location Plan
Archived · Council Link
STRUCTURAL REPORT
Report/ Statement
Not archived · Council Link

Take Action

Make your voice heard. Authorities need to hear from people who support new homes.

✉️ Write Email in Support View on Council Portal