← Back to Northumberland National Park Authority

Status

Unknown status
Received
n/a
New dwellings
n/a

Full Proposal

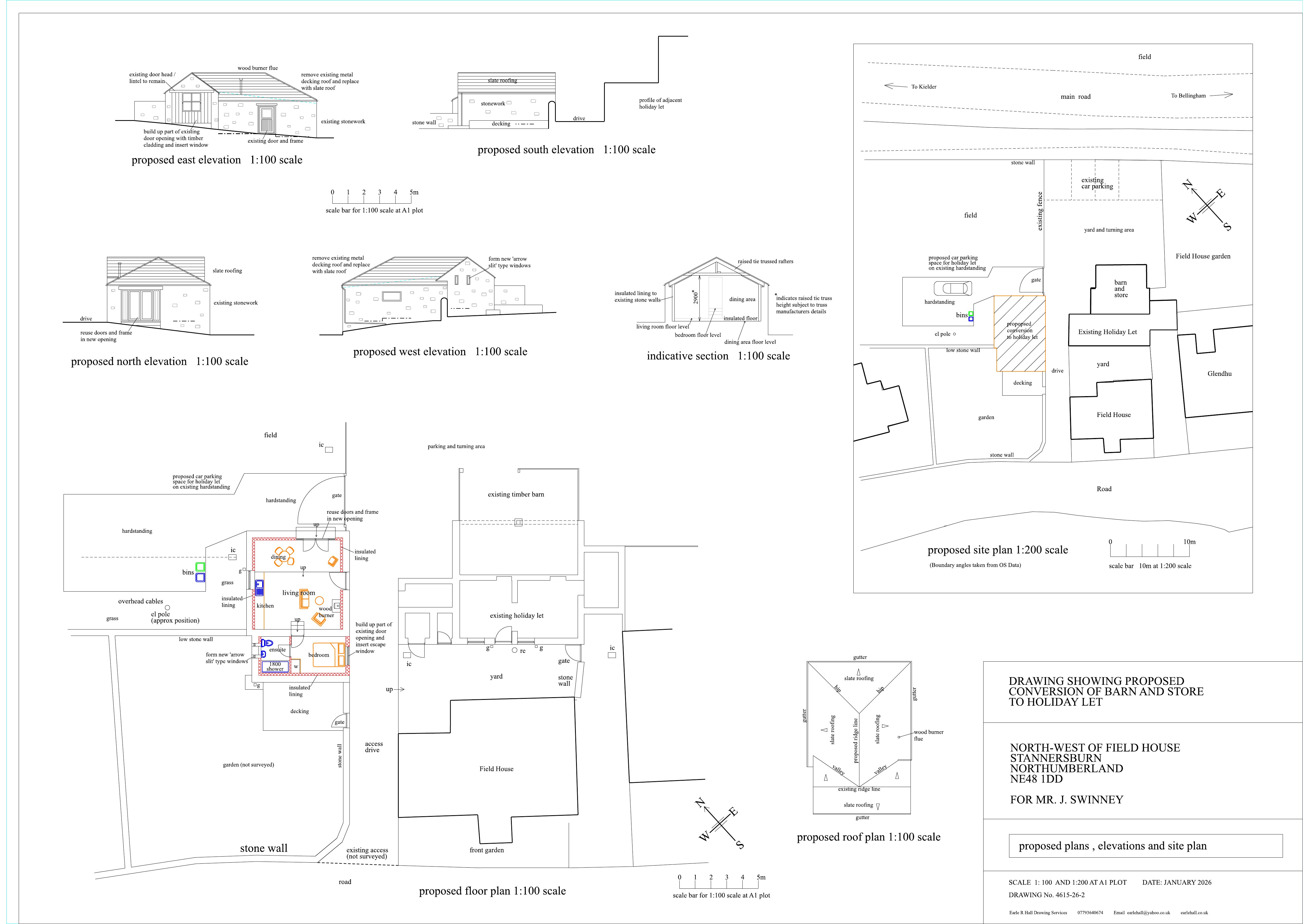
Conversion of existing barn and store into 1 unit of holiday accommodation

Documents

Application form redacted
Uncategorized
Not archived · Council Link
Consultee response objection redacted
Uncategorized
Not archived · Council Link
Design and access statement pdf
Uncategorized
Not archived · Council Link
Ecology validation checklist pdf
Uncategorized
Not archived · Council Link
Flood risk assessment
Uncategorized
Not archived · Council Link
Location Plan
Uncategorized
Not archived · Council Link
NCC Highways Consultee response
Uncategorized
Not archived · Council Link
Photographs and photomontages
Uncategorized
Not archived · Council Link
Photographs and photomontages
Uncategorized
Not archived · Council Link
Photographs and photomontages
Uncategorized
Not archived · Council Link
Representation LE
Uncategorized
Not archived · Council Link
Skip to download button.
Uncategorized
Not archived · Council Link

Take Action

Make your voice heard. Authorities need to hear from people who support new homes.

✉️ Write Email in Support View on Council Portal