← Back to all authorities

Recent applications

Showing the most recent records stored for this authority (max 200).

Garage conversion together with a single storey side and rear extension forming storage and home office accommodation

Type n/a
Status Pending Consideration
Date 26 days ago

Replacement of existing windows, doors, entrance & atrium curved roofs and sections of flat roof, additionally the decoration to of external...

Type n/a
Status Awaiting decision
Date 16 Dec 2025
Plan thumbnail

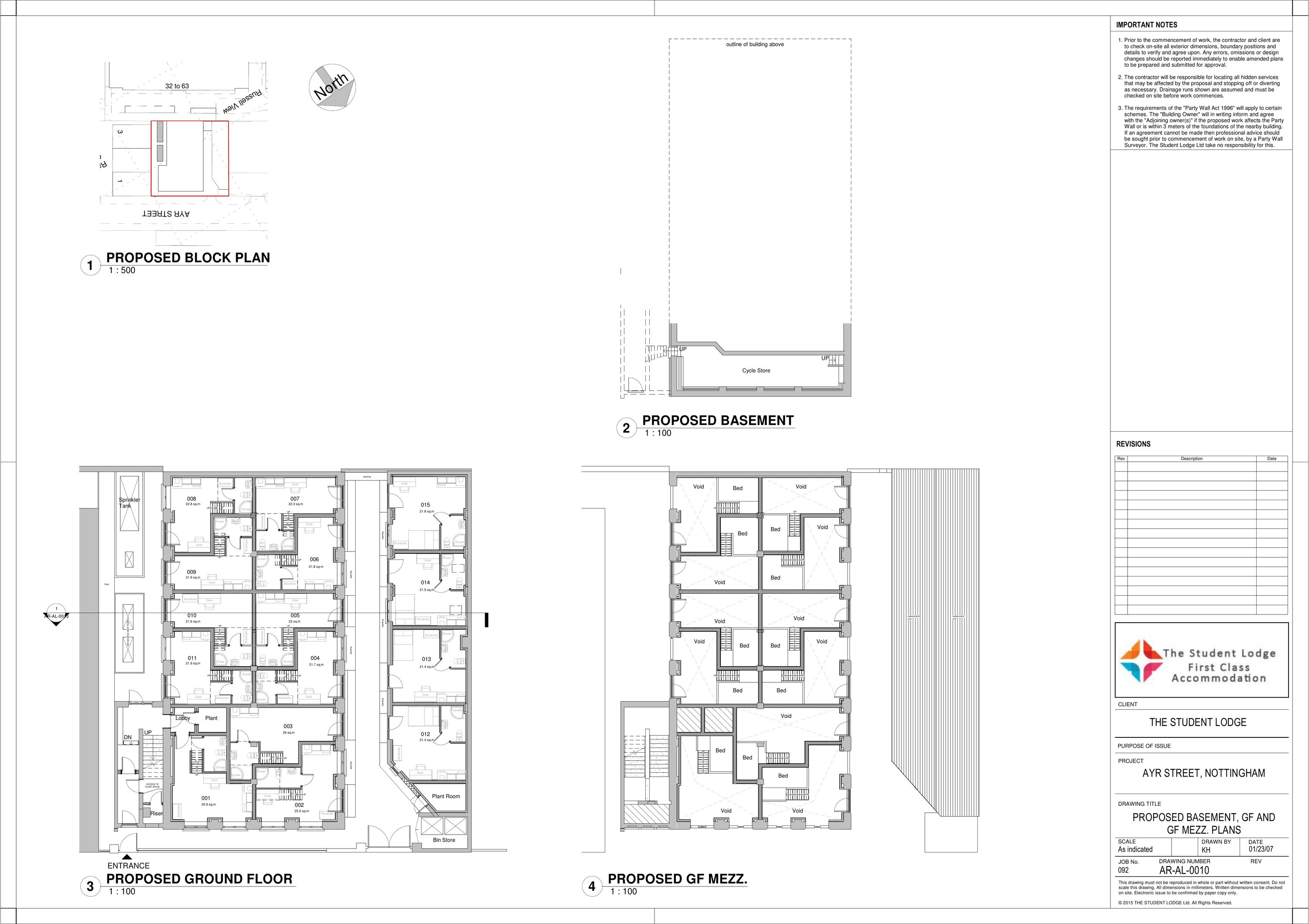
Change of Use of Offices/Workshop to create 33 No. Student Accommodation Studios

Type n/a
Status Pending Consideration
Date 24 Oct 2025

Change of Use from storage and distribution (Use Class B8) with ancillary offices to retained storage and distribution (Use Class B8), offic...

Type n/a
Status Pending Consideration
Date 30 Oct 2025
Plan thumbnail

Two storey modular office building with ancillary steps, ramps, landscaping and parking (part retrospective) for a temporary period of 5 yea...

Type n/a
Status Pending Consideration
Date 16 Sep 2025
Plan thumbnail

TWO STOREY SIDE AND SINGLE STOREY REAR FLAT ROOF EXTENSION AND FRONT ENTRANCE PORCH AS SHOWN DRAWING NO.PO1A

Type n/a
Status Pending Consideration
Date 28 Nov 2025

External building wall mounted flat illuminated sign with the words 'Factory 4' and logo

Type n/a
Status Pending Consideration
Date Last month
Plan thumbnail

Proposed change of use from a dwelling to short-term holiday let (part retrospective)

Type n/a
Status Pending Consideration
Date 15 Dec 2025
Plan thumbnail

Addition of a detached garage in the rear garden with new dropped kerb access from Covedale Road, first floor and side extensions and a new ...

Type n/a
Status Pending Consideration
Date 23 Dec 2025
Plan thumbnail

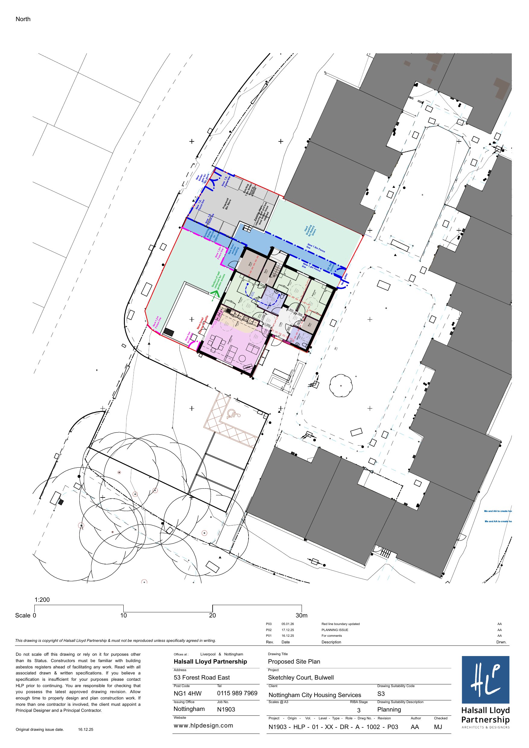
Change of use of the communal hall (F2) to a ground floor flat for 3B4P (C3) and external work for the redesigning of the proposed site bin ...

Type n/a
Status Pending Consideration
Date 19 Dec 2025
Plan thumbnail

Change of use of front subterranean games room to a seperate studio flat. Instalation of balustrading to flat roof above to create a roof te...

Type n/a
Status Pending Consideration
Date 22 Dec 2025
Plan thumbnail

Loft Conversion and roof extension with roof terrace to form new flat within the roof. Raised parking area.

Type n/a
Status Pending Consideration
Date Last month
Plan thumbnail

Proposed residential use involving supported living for children (non-material change from class C3)

Type n/a
Status Pending Consideration
Date Last month
Plan thumbnail

Change of use of ground floor front room from retail to form part of existing residential use (Class C3). Associated alterations to front el...

Type n/a
Status Pending Consideration
Date 23 days ago

Proposed change of use from a dwelling (Use Class C3) to supported accommodation providing residential accommodation with care (Use Class C2...

Type n/a
Status Pending Consideration
Date Last month
Plan thumbnail

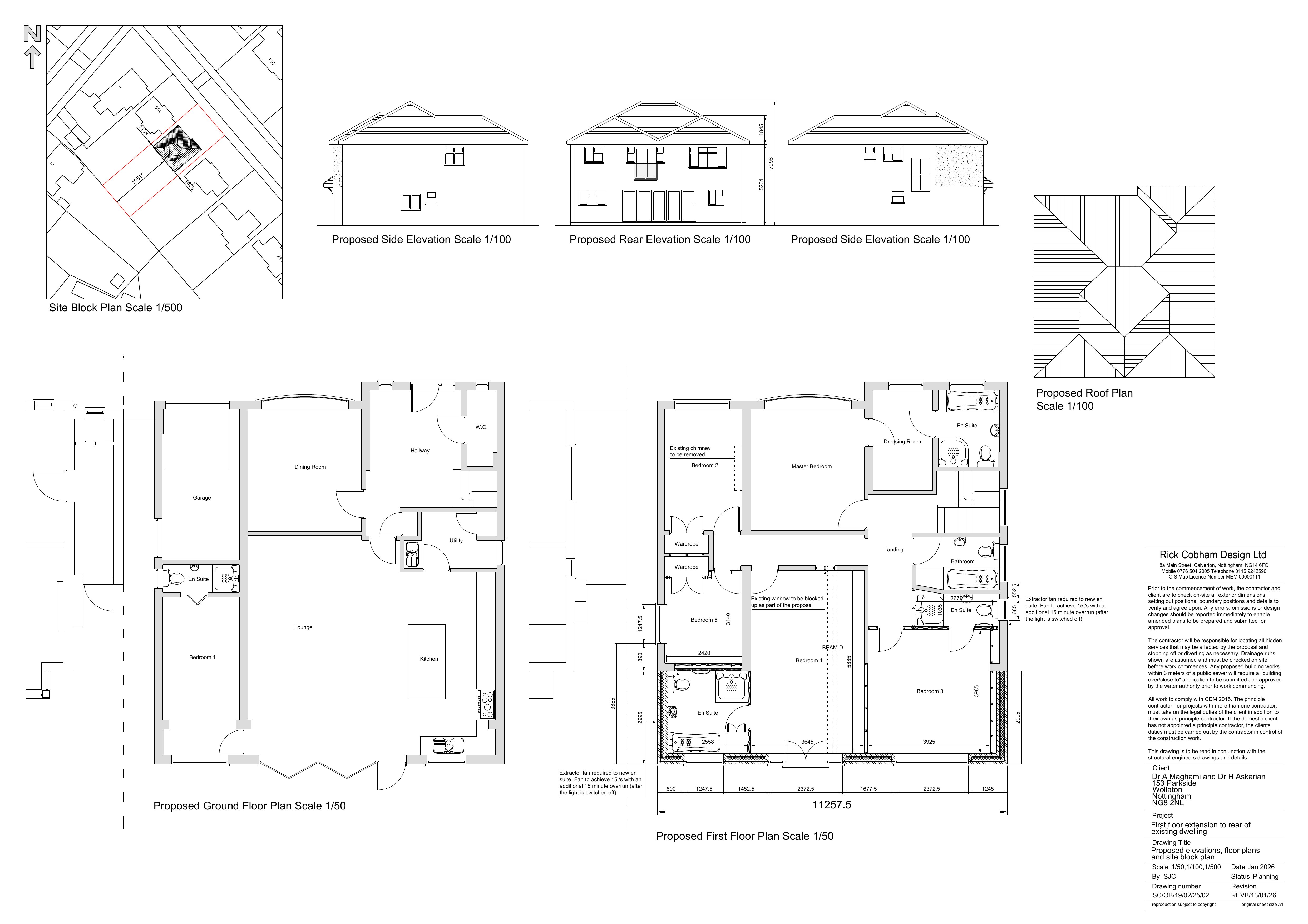
First floor rear extension to existing dwelling

Type n/a
Status Pending Consideration
Date Last month
Plan thumbnail

Change of use from Office (Use Class E) to Care Home (Use Class C2) to provide specialist supported accommodation for 6 adults aged 18 to 25...

Type n/a
Status Pending Consideration
Date 15 Oct 2025
Plan thumbnail

Change of use of ground floor from public house (Sui Generis) to convenience store (Class E); single storey extension; alterations; and asso...

Type n/a
Status Pending Consideration
Date Last month
Plan thumbnail

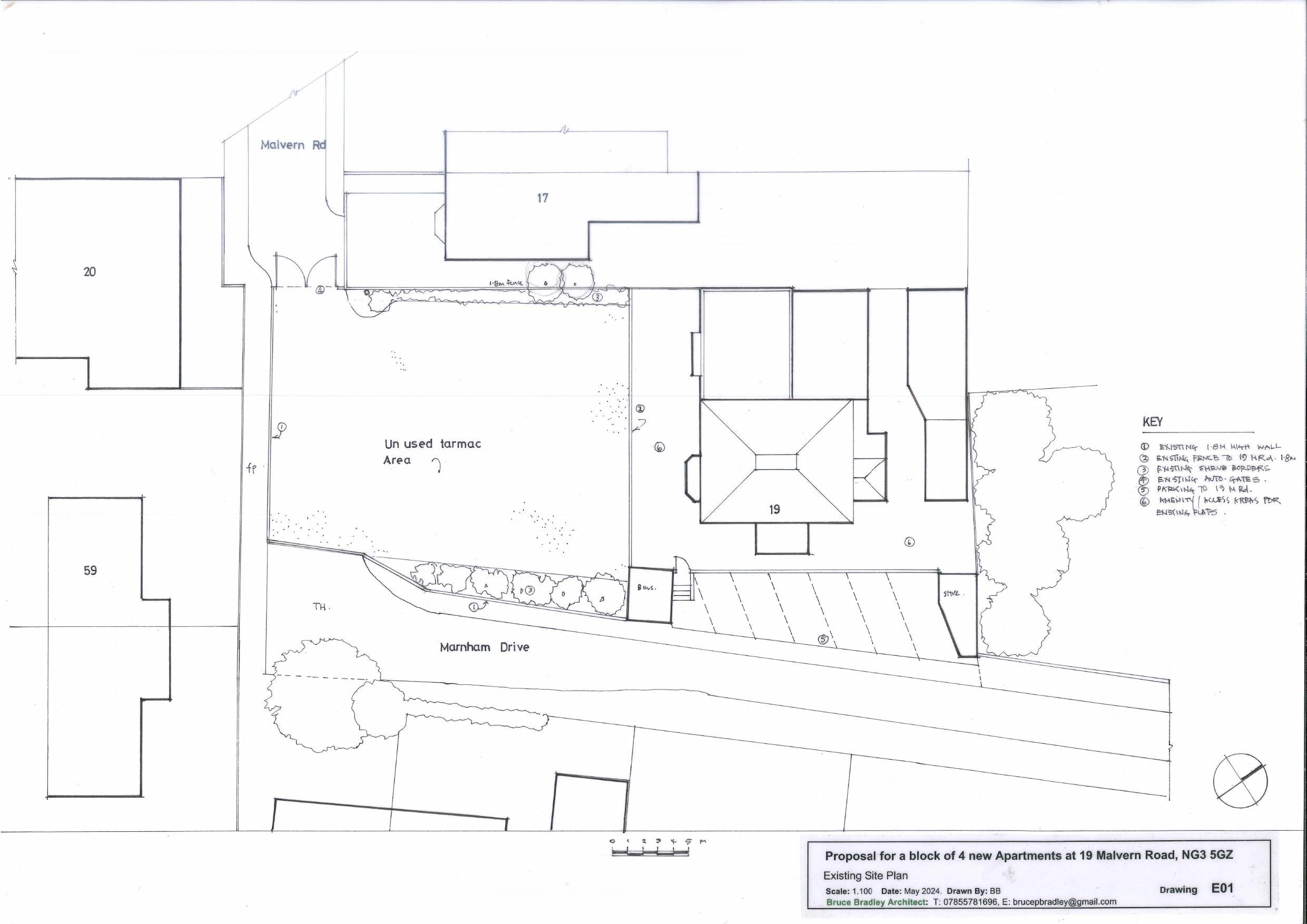
Two storey building to create 4 apartments.

Type n/a
Status Pending Consideration
Date 04 Dec 2025

A full planning application for the demolition of the existing Waterway House building and site clearance, and the construction of a new-bui...

Type n/a
Status Pending Consideration
Date Last month

Removal of Lime tree on the front driveway of the property, to the left of the house.

Type n/a
Status Pending Consideration
Date 16 Sep 2024

The tree concerned is a mature 50ft (approx) yellow conifer. I have enclosed a photograph to help identify it. We would like to have this tr...

Type n/a
Status Pending Consideration
Date 23 Sep 2024

Conversion of commercial ancillary storage to three flats; and alterations including the removal of a roof section to form a courtyard

Type n/a
Status Pending Consideration
Date 24 Sep 2024

T1- large beech tree which we would like to reduce by 3-4m with as it is very close to the house and we want to prevent any damage it may ca...

Type n/a
Status Pending Consideration
Date 21 Oct 2024

1 - Cherry tree Crown reduce by approximately 3 meters as it is to high making the house too dark, also pruning back from the house as it is...

Type n/a
Status Pending Consideration
Date 23 Oct 2024

T1. Front garden eucalyptus tree. The tree is in contact with the house, is also overhanging the vehicle on the drive and has grown to a hei...

Type n/a
Status Pending Consideration
Date 25 Oct 2024

The holly tree is at the left hand side of the property, when looking at it from the pavement on Shirley Road. It is a few metres behind the...

Type n/a
Status Pending Consideration
Date 15 Nov 2024

Remove 2x large trees to base a #5 Rushcliffe Rise. Tree 1 - Large cypress tree to the front of the property. Tree is mature and overgrown, ...

Type n/a
Status Pending Consideration
Date 02 Dec 2024

Application to fell a lime tree due to root damage and safety concerns.

Type n/a
Status Pending Consideration
Date 20 Jan 2025

Remove large apple tree and reduce bay tree for safety and maintenance.

Type n/a
Status Pending Consideration
Date 22 Jan 2025

Construction of two detached houses with new entrances and landscaping.

Type n/a
Status Pending Consideration
Date 09 Jan 2025

Prune and fell conifer and Leylandii; 6-8m crown reduction to two cherry trees.

Type n/a
Status Pending Consideration
Date 10 Feb 2025

Construction of two detached dwellings with double garage.

Type n/a
Status Awaiting decision
Date 04 Mar 2025

Removal/cutting down of leylandii hedge in private garden to increase light.

Type n/a
Status Pending Consideration
Date 26 Feb 2025

Felling of several garden trees (conifers, beech, maples) due to proximity to house/overgrowth.

Type n/a
Status Pending Consideration
Date 18 Mar 2025

First-floor office extension with external staircase and covered balcony for nursery manager accommodation.

Type n/a
Status Pending Consideration
Date 06 Dec 2024

Change of use from dwelling (C3) to children's care home (C2) for up to three children.

Type n/a
Status Pending Consideration
Date 31 Mar 2025

Convert second, third and fourth office floors to residential apartments, minor basement and ground works.

Type n/a
Status Pending Consideration
Date 05 May 2025

Convert second, third and fourth office floors to residential apartments, minor basement and ground works.

Type n/a
Status Awaiting decision
Date 05 May 2025

Erection of warehouse extension, ancillary service canopies and provision of associated service yard.

Type n/a
Status Pending Consideration
Date 14 Jan 2025

Change of use to C2 residential care home for four residents aged 8–65.

Type n/a
Status Pending Consideration
Date 04 Jul 2025

Change of use to residential care home for four residents aged 8–65.

Type n/a
Status Pending Consideration
Date 03 Jul 2025

Use of property as three flats, each operated as an HMO (Use Class C4).

Type n/a
Status Pending Consideration
Date 02 Jul 2025

Conversion of and single storey rooftop extension to the Grade II listed former Police and Fire Stations building for student accommodation ...

Type n/a
Status Awaiting decision
Date 28 Aug 2025

Construction of new dwelling within curtilage of 94 Middleton Boulevard

Type n/a
Status Pending Consideration
Date 02 Sep 2025

Change of use from dwelling (C3) to children’s home (C2) for up to three children.

Type n/a
Status Pending Consideration
Date 19 Aug 2025

Demolish former care home; construct 12 houses and 40 apartments with gardens, parking, cycle and bin stores.

Type n/a
Status Pending Consideration
Date 04 Sep 2025

C4 use as a house of multiple occupation (HMO).

Type n/a
Status Pending Consideration
Date 11 Sep 2025

Convert ground floor commercial and upper flats to purpose‑built student accommodation (three cluster flats).

Type n/a
Status Pending Consideration
Date 05 Sep 2025

Conversion from four flats to seven flats, including basement excavation and front elevation works.

Type n/a
Status Pending Consideration
Date 06 Oct 2025

Change of use from mixed dwelling/childminding use to Class C2 Children's Care Home for the care of up to 2 Children (aged 8-17) with 3 staf...

Type n/a
Status Awaiting decision
Date 02 Sep 2025

Demolition of the Single Storey Brewery Building and Associated Structures Followed by the Construction of Five Student Accommodation Dwelli...

Type n/a
Status Pending Consideration
Date 08 Aug 2025

Outline application for the erection of up to 9 dwellings including matters access and layout

Type n/a
Status Pending Consideration
Date 20 Nov 2025

Proposed three storey infill extension and single storey side extension to provide a total of 12 flats

Type n/a
Status Pending Consideration
Date 20 Oct 2025

Creation of a new vehicular access and driveway. Works involve: - Forming two gateways in the existing Bulwell stone boundary wall. - Constr...

Type n/a
Status Pending Consideration
Date 01 Dec 2025

Upward extension of existing office building, to provide 2 additional floors of dwellinghouses under C3 use. 2x 2-bed flats per floor, total...

Type n/a
Status Pending Consideration
Date 11 Dec 2025

Change of use from Sui Generis (public house) to Class E (commercial/business/service). Amendments externally, inclusive of new windows/door...

Type n/a
Status Pending Consideration
Date 26 Nov 2025

PROPOSE A SINGLE STORY FRONT WITH SINGLE/DOUBLE STORY REAR AND ALTERATION TO EXISTING HOUSE LAYOUT

Type n/a
Status Pending Consideration
Date 16 Dec 2025

Erection of single storey semi-detached dwelling.

Type n/a
Status Awaiting decision
Date 11 Dec 2025

PROPOSED REAR AND SIDE DORMERS (retrospective) AND GLAZED LINK ROOF TO CREATE COVERED WAY BETWEEN GARAGE AND HOUSE

Type n/a
Status Pending Consideration
Date 03 Nov 2025

Conversion of dwelling into 3.no flats; and external staircase

Type n/a
Status Pending Consideration
Date 23 Oct 2025

Following a General Structural Inspection, the advice given recommends the selective management of trees and shrubs located close to the bui...

Type n/a
Status Pending Consideration
Date Last month

Change of use from dwelling house (Use Class C3) to HMO for up to six occupants (Use Class C4).

Type n/a
Status Pending Consideration
Date Last month

Existing use of the property as a House in Multiple Occupation (HMO) within Use Class C4, occupied by up to 6 unrelated individuals as their...

Type n/a
Status Pending Consideration
Date Last month

DOUBLE STORY SIDE AND REAR EXTENSION, WRAP AROUND SINGLE STOREY SIDE/ REAR EXTENSION AND ALTERATION TO EXISTING HOUSE

Type n/a
Status Pending Consideration
Date Last month

Change of use of the second to eighth floor from Class E to C3 to create 42 residential flats. A cycle store is also proposed to the upper g...

Type n/a
Status Pending Consideration
Date 19 Nov 2025

Erection of a detached two storey dwelling

Type n/a
Status Pending Consideration
Date 06 Oct 2025

Proposed internal and external alterations and conversion of the former Chapel into 4 no. residential units, and of the former Theatre into ...

Type n/a
Status Pending Consideration
Date Last month

Change of Use from offices to 4no. dwellinghouses (apartments), with associated parking, bin stores and cycle storage.

Type n/a
Status Pending Consideration
Date Last month

Use of second floor as self contained flat occupied by 8 persons in 8 households

Type n/a
Status Pending Consideration
Date Last month

Change of use of ground, 1st and 2nd floors to provide 9 x 1 bed flats and installation of external staircase to the rear

Type n/a
Status Pending Consideration
Date Last month

Change of use from a dwelling to four self-contained residential flats, including construction of a single storey rear/side extension and as...

Type n/a
Status Pending Consideration
Date Last month

Lawful Development Certificate for Large House in Multiple Occupation (Sui Generis HMO) for up to 18 persons

Type n/a
Status Pending Consideration
Date 22 Oct 2025

7 bedroom Sui Generis House in Multiple occupation, occupied by 7 unrelated tenants

Type n/a
Status Pending Consideration
Date Last month

Single storey side and rear extension; and erection of garden house/shed.

Type n/a
Status Pending Consideration
Date 22 May 2024

Proposed redevelopment of the former laundry building (currently used for material storage) to form a new substation to the east of the Tren...

Type n/a
Status Pending Consideration
Date Last month

Sub-divide existing single C3 dwelling into three self-contained C3 flats, with the construction of a rear dormer

Type n/a
Status Pending Consideration
Date 03 Dec 2025

Existing dwelling being used as 3 Bedroom house of multiple occupation (HMO) for more than 20 years. This property, along with several other...

Type n/a
Status Pending Consideration
Date 02 Dec 2025

Conversion of listed building to mixed-use with ground-floor Class E and seven apartments above.

Type n/a
Status Awaiting decision
Date 11 Sep 2025

Conversion of listed building to mixed-use with ground-floor Class E and seven apartments above.

Type n/a
Status Awaiting decision
Date 11 Sep 2025
Plan thumbnail

The house was let to 4 individual persons in 4 bedrooms with sitting room, kitchen and bathroom as shared facility. This use has continued s...

Type n/a
Status Pending Consideration
Date 26 Sep 2025

Full planning permission is sought for a residential scheme of 23 dwellings with associated infrastructure including the provision of a new ...

Type n/a
Status Pending Consideration
Date 25 Sep 2025

Development of 113 dwellings, with access from Wyton Close and Belconnen Road, landscaping, drainage, open space and associated works.

Type n/a
Status Awaiting decision
Date 15 Jan 2025

Demolition of the outhouse and construction of a single storey rear extension with glazed roof

Type n/a
Status Awaiting decision
Date 19 Nov 2025

Second floor rear extension and conversion of existing second floor to create 2no 1 bed flats.

Type n/a
Status Awaiting decision
Date 18 Nov 2025

Construction of new detached dwelling (part-retrospective)

Type n/a
Status Pending Consideration
Date 27 Nov 2025

Convert one dwelling into three self-contained flats, including rear dormer and cellar works.

Type n/a
Status Awaiting decision
Date 18 Sep 2025

Single-storey rear extension with external staircase and balcony entrance serving existing first-floor flats.

Type n/a
Status Awaiting decision
Date 07 Nov 2025

Change of use from dwelling (C3) to C2 children's home for up to two children, no external alterations.

Type n/a
Status Decided
Date 13 Oct 2025

Certificate confirming existing use as a three-bedroom House in Multiple Occupation (Use Class C4).

Type n/a
Status Decided
Date 09 Oct 2025

Convert rear storage rooms into two one-bedroom apartments.

Type n/a
Status Decided
Date 04 Nov 2025

Subdivision of existing building to create two additional one-bedroom flats.

Type n/a
Status Decided
Date 06 Nov 2025

Change offices (levels 1–2) to eight one‑bed flats with bin and cycle storage.

Type n/a
Status Pending Consideration
Date 23 Dec 2025

Change of use from residential dwelling (C3) to residential care home (C2).

Type n/a
Status Decided
Date 21 Aug 2025

Change of use of four dwellings (C3) to a children's home (C2) for up to four children.

Type n/a
Status Decided
Date 04 Sep 2025

Change of use from residential dwelling (Class C3) to residential care home (Class C2).

Type n/a
Status Decided
Date 18 Jun 2025

Change of use from commercial (Class E) to 118 residential dwellings (Class C3).

Type n/a
Status Decided
Date 17 Jun 2025

Deletion of condition requiring bridleway and footpath improvements for an approved residential development.

Type n/a
Status Decided
Date 17 Jun 2025

Convert second and third floors and rear extension to form four self-contained residential units.

Type n/a
Status Decided
Date 22 Aug 2025

Partial conversion of offices to two flats, including car parking, cycle and bin storage.

Type n/a
Status Decided
Date 11 Feb 2025

Convert 3-bed flat into two self-contained flats with second-floor rear extension.

Type n/a
Status Decided
Date 06 Mar 2025

Amalgamate two flats into a single family dwelling (convert 2 C3 flats to 1 C3 house).

Type n/a
Status Decided
Date 18 Mar 2025

Erection of a garage within residential curtilage for use as a car tinting business.

Type n/a
Status Decided
Date 18 Mar 2025

Conversion of offices to one one-bedroom and two two-bedroom residential flats.

Type n/a
Status Decided
Date 25 Mar 2025

Construction of two-storey offices with attached warehouse to the rear.

Type n/a
Status Decided
Date 19 Mar 2025

Change of use from three-bedroom home (C3) to small C2 residential care home for up to 3 residents.

Type n/a
Status Pending Consideration
Date 27 Mar 2025

Retrospective creation of two additional flats with external alterations.

Type n/a
Status Decided
Date 26 Mar 2025

Convert former Victorian warehouse/office into 12 residential flats.

Type n/a
Status Decided
Date 26 Mar 2025

Change of use of two residential flats to short-term holiday lets (Airbnb-style).

Type n/a
Status Decided
Date 19 May 2025

Change of use from office to provide 12 flats (9 one-bed, 3 two-bed).

Type n/a
Status Decided
Date 19 May 2025

Replace wooden windows and hatch with PVC double glazed windows and trickle vents.

Type n/a
Status Awaiting decision
Date 08 Sep 2025

Provision of two one-bedroom flats within the roof space.

Type n/a
Status Decided
Date 09 Oct 2025

Sub-divides dwellinghouse into two flats.

Type n/a
Status Pending Consideration
Date 30 Oct 2025