← Back to Oldham Council

Status

Awaiting decision
Received
03 Nov 2025
New dwellings
n/a

Summary

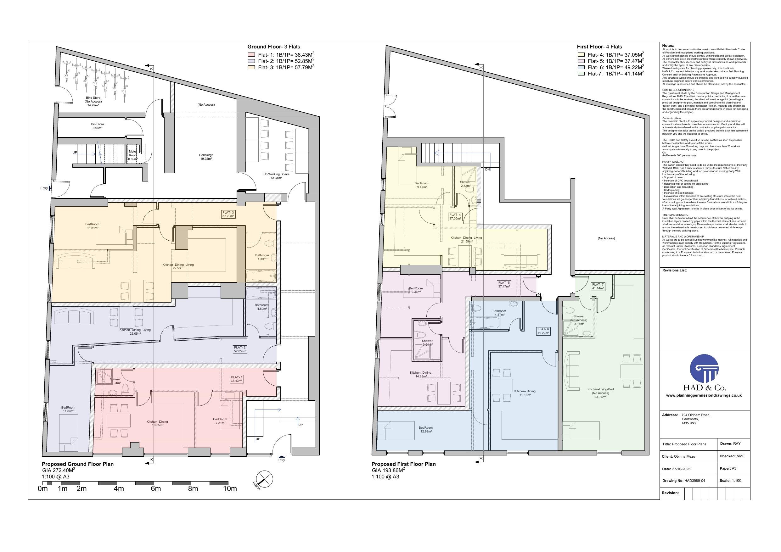
Bank converted to 7 one-bedroom flats

Full Proposal

Change of use from Vacant Bank (Class E) to 7no. 1-bedroom flats (Class C3)

Documents

794 OLDHAM ROAD_ M35 9NY ELEVATIONS 01 HAD3989-06
Plans
Not archived · Council Link
794 OLDHAM ROAD_ M35 9NY ELEVATIONS 02 HAD3989-07
Plans
Not archived · Council Link
794 OLDHAM ROAD_ M35 9NY EXISTING PLANS HAD3989-01
Plans
Not archived · Council Link
794 OLDHAM ROAD_ M35 9NY EXISTING ROOF PLAN HAD3989-02
Plans
Not archived · Council Link
794 OLDHAM ROAD_ M35 9NY EXISTING SECTION HAD3989-03
Plans
Not archived · Council Link
794 OLDHAM ROAD_ M35 9NY PROPOSED ROOF PLAN HAD3989-05
Block plan of the site
Not archived · Council Link
794 OLDHAM ROAD_ M35 9NY PROPOSED SECTION HAD3989-08
Plans
Not archived · Council Link
Revised Drawing
Archived · Council Link
APPLICATIONFORMREDACTED
Application Form
Not archived · Council Link
LOCATION PLAN
The location plan
Not archived · Council Link
REVISED TRAVEL PLAN OF 17/11/25
Travel plan
Not archived · Council Link
SUPERSEDED TRAVEL PLAN
Travel plan
Not archived · Council Link

Take Action

Make your voice heard. Authorities need to hear from people who support new homes.

✉️ Write Email in Support View on Council Portal