FUL/353948/25
Oldham Council · IDOX
Status
Awaiting decision
Received
13 Jan 2025
New dwellings
n/a
Summary
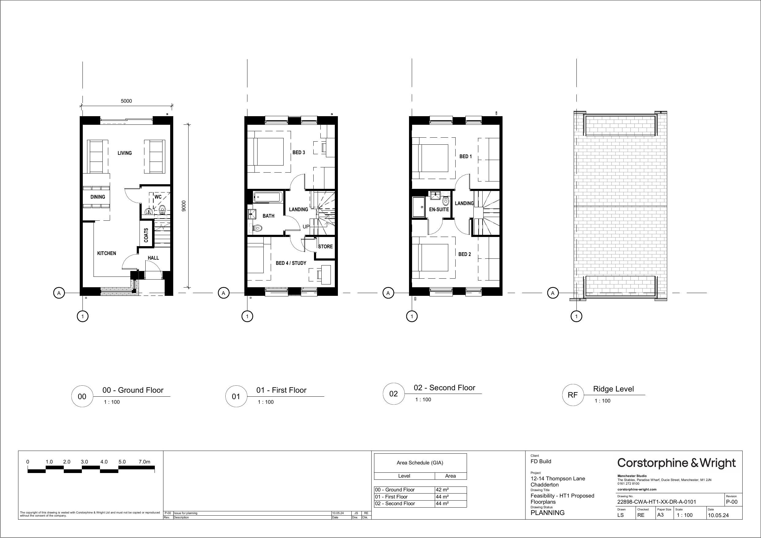
Demolish former garage buildings and redevelop site to provide 19 residential units.
Full Proposal
Demolition of vacant former garage buildings and redevelopment of the site to provide 19 no. residential units (Use Class C3), including refuse areas, plant, associated car parking, access arrangements, landscaping and external lighting
Documents
22898-8001-02_THOMPSON LANE CHADDERTON - DESIGN AND ACCESS STATEMENT_COMPRESSED
Design & access statement
Not archived
· Council Link
22898-CWA-HT2-XX-DR-A-0152-P00-HT2 PROPOSED ELEVATIONS - SHEET 2 OF 2
Plans
Not archived
· Council Link
22898-CWA-HT2-XX-DR-A-0153-P00-HT2 PROPOSED ELEVATIONS - SHEET 1 OF 2
Plans
Not archived
· Council Link
Block plan of the site
Archived
· Council Link
Amended Information
Archived
· Council Link
22898-CWA-S-ZZ-DR-A-2111-P03 - PROPOSED STREET SCENES SHEET 1
Additional Information
Not archived
· Council Link
22898-CWA-S-ZZ-DR-A-2112-P03 - PROPOSED STREET SCENES SHEET 2
Amended Information
Not archived
· Council Link
3253.E.901 (P1) EXTERNAL LIGHTING PLOTS (COMPRESSED)
Lighting assessment
Not archived
· Council Link
3253.M.902 (P0) THOMPSON LANE ENERGY AND SUSTAINABILITY STATEMENT
Sustainability appraisal
Not archived
· Council Link
BEK - FLOOD RISK ASSESSMENT - THOMPSON LANE CHADDERTON - REF BEK-24142-2 NOVEMBE
Flood risk assessment
Not archived
· Council Link
BEK - PRELIMINARY RISK ASSESSMENT - THOMPSON LANE CHADDERTON - REF BEK-24142-1 N
Land contamination assessment
Not archived
· Council Link
BEK - PRELIMINARY RISK ASSESSMENT - THOMPSON LANE CHADDERTON - REF BEK-24142-1 N
Land contamination assessment
Not archived
· Council Link
BEK-24142 - DETAILED DRAINAGE DESIGN REPORT - THOMPSON LANE CHADDERTON - FINAL
Report
Not archived
· Council Link
Take Action
Make your voice heard. Authorities need to hear from people who support new homes.