← Back to Oldham Council

Status

Awaiting decision
Received
14 Jan 2025
New dwellings
n/a

Summary

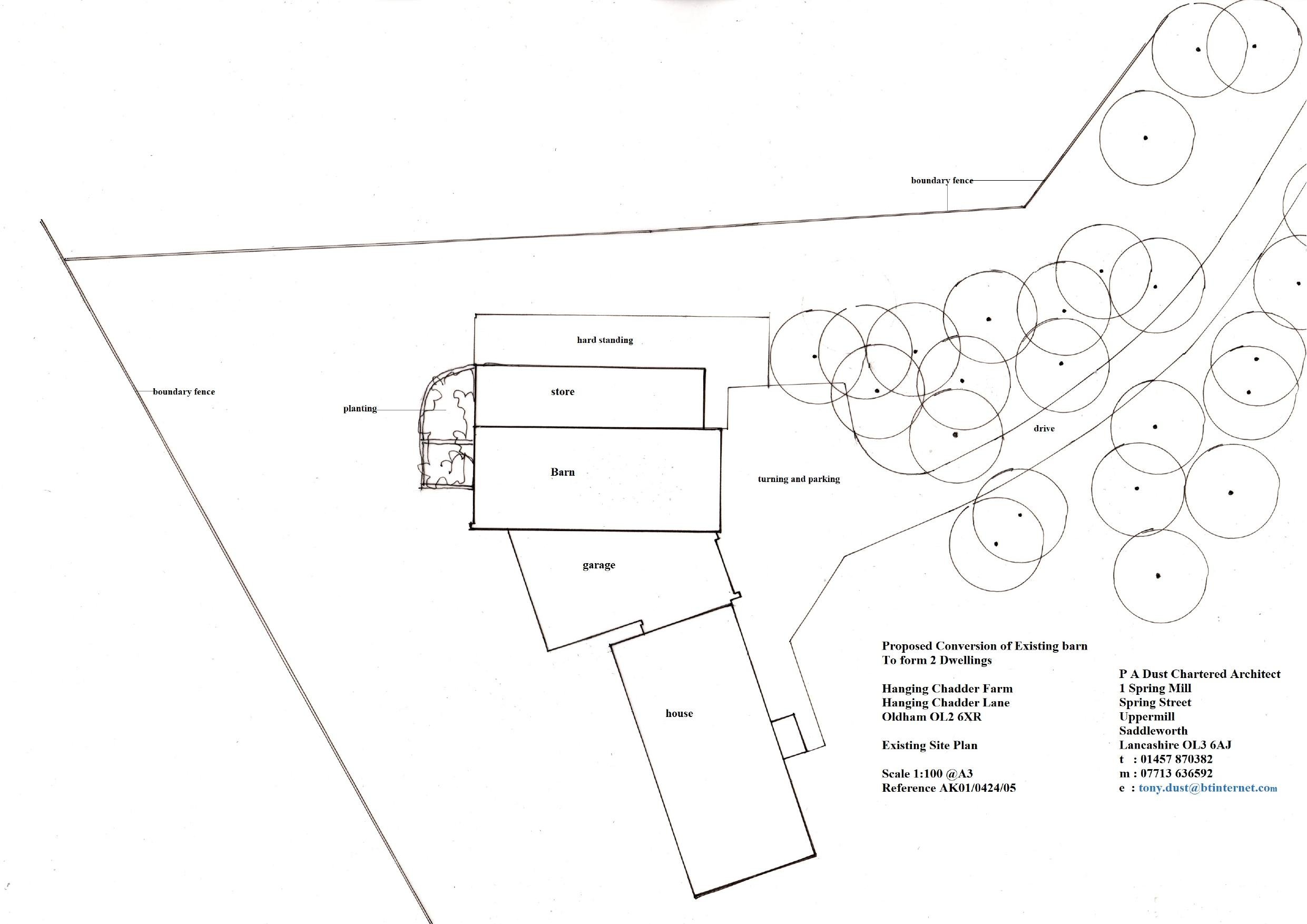
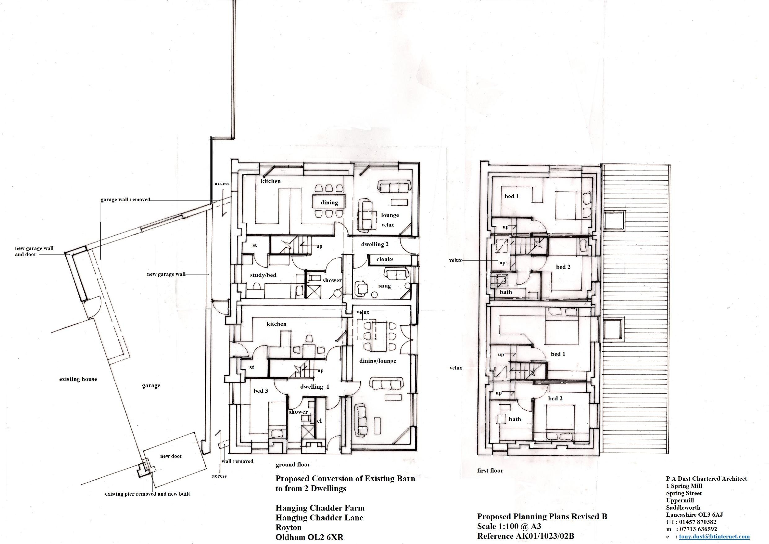
Conversion of barn and store to create two dwellings with associated works.

Full Proposal

Conversion of barn and store to create 2 no. dwellings including demolition and rebuilding of existing garage wall and associated access arrangements for new and existing dwellings.

Documents

APPLICATIONFORMREDACTED
Application Form
Not archived · Council Link
ARBORICULTURAL IMPACT ASSESSMENT_2128.01
Tree survey
Not archived · Council Link
ARBORICULTURAL METHOD STATEMENT_2128.01
Tree survey
Not archived · Council Link
BARN ELEVATIONS REVISED C
Plans
Not archived · Council Link
BNG METRIC
Biodiversity survey & report
Not archived · Council Link
EXISTING ELEVATIONS
Plans
Not archived · Council Link
EXISTING PLANS
Plans
Not archived · Council Link
Plans
Archived · Council Link
HANGING CHADDER BAT REPORT
Biodiversity survey & report
Not archived · Council Link
LOCATIONPLAN
Plans
Not archived · Council Link
PROPOSED ELEVATIONS REV B
Amended Plans
Not archived · Council Link
Amended Plans
Archived · Council Link
SITE LAYOUT REV B
Amended Plans
Not archived · Council Link

Take Action

Make your voice heard. Authorities need to hear from people who support new homes.

✉️ Write Email in Support View on Council Portal