← Back to Oldham Council

Status

Awaiting decision
Received
07 Aug 2025
New dwellings
n/a

Full Proposal

Erection of new dwelling

Documents

AMENDED SITE BLOCK PLAN OF 14/10
Revised Drawing
Not archived · Council Link
APPLICATIONFORMREDACTED
Application Form
Not archived · Council Link
D500 1_20 SCALE GAS MEMBRANE
Additional Information
Not archived · Council Link
D500 1_5 SCALE GAS MEMBRANE
Additional Information
Not archived · Council Link
D500 DA STATEMENT
Design & access statement
Not archived · Council Link
D500_P01
The location plan
Not archived · Council Link
D500_P15
Landscaping details
Not archived · Council Link
FLOOD-MAP-PLANNING-2025-02-05T13_19_05.548Z
Flood risk assessment
Not archived · Council Link
IKO-HYLOAD-TRADE-DPC-TDS-MAR-2019
Additional Information
Not archived · Council Link
IKO-HYLOAD-WATERPROOF-GUIDE-A5-MAY19
Additional Information
Not archived · Council Link
METHANEPRODATASHEET-5B7425A044FE6
Additional Information
Not archived · Council Link
NOVIABOPPTAPEDATASHEETAUG22-62EA3FB78C62C
Additional Information
Not archived · Council Link
NOVIABUTYLTAPEDATASHEETAUG22-62EA3F7CA711E
Additional Information
Not archived · Council Link
PROPOSED DETACHED GARAGE
Plans
Not archived · Council Link
PROPOSED DRAINAGE PLAN
Plans
Not archived · Council Link
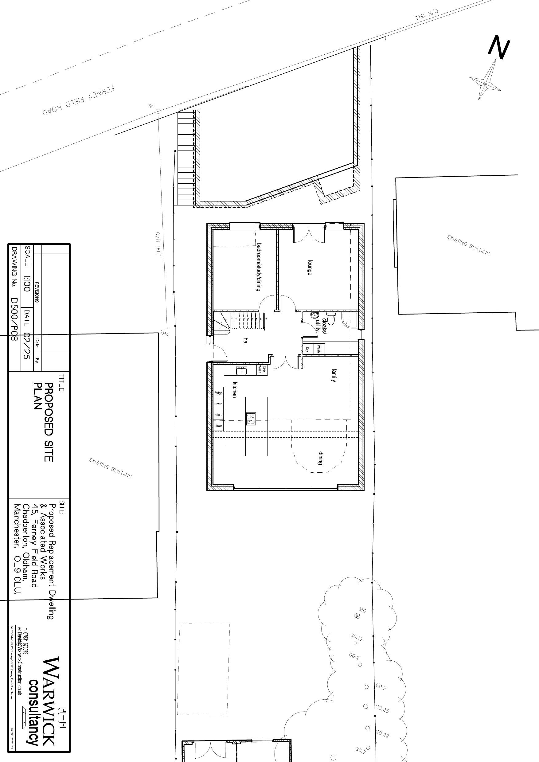
PROPOSED FLOOR & ROOF PLANS
Plans
Not archived · Council Link
PROPOSED FRONT & SIDE ELEVATIONS
Plans
Not archived · Council Link
PROPOSED REAR & SIDE ELEVATIONS
Plans
Not archived · Council Link
PROPOSED SITE BLOCK PLAN
Block plan of the site
Not archived · Council Link
Plans
Archived · Council Link
TAPE OVERVIEWFEB16-57D970400C384
Additional Information
Not archived · Council Link

Take Action

Make your voice heard. Authorities need to hear from people who support new homes.

✉️ Write Email in Support View on Council Portal