← Back to Oldham Council

Status

Awaiting decision
Received
11 Sep 2025
New dwellings
n/a

Summary

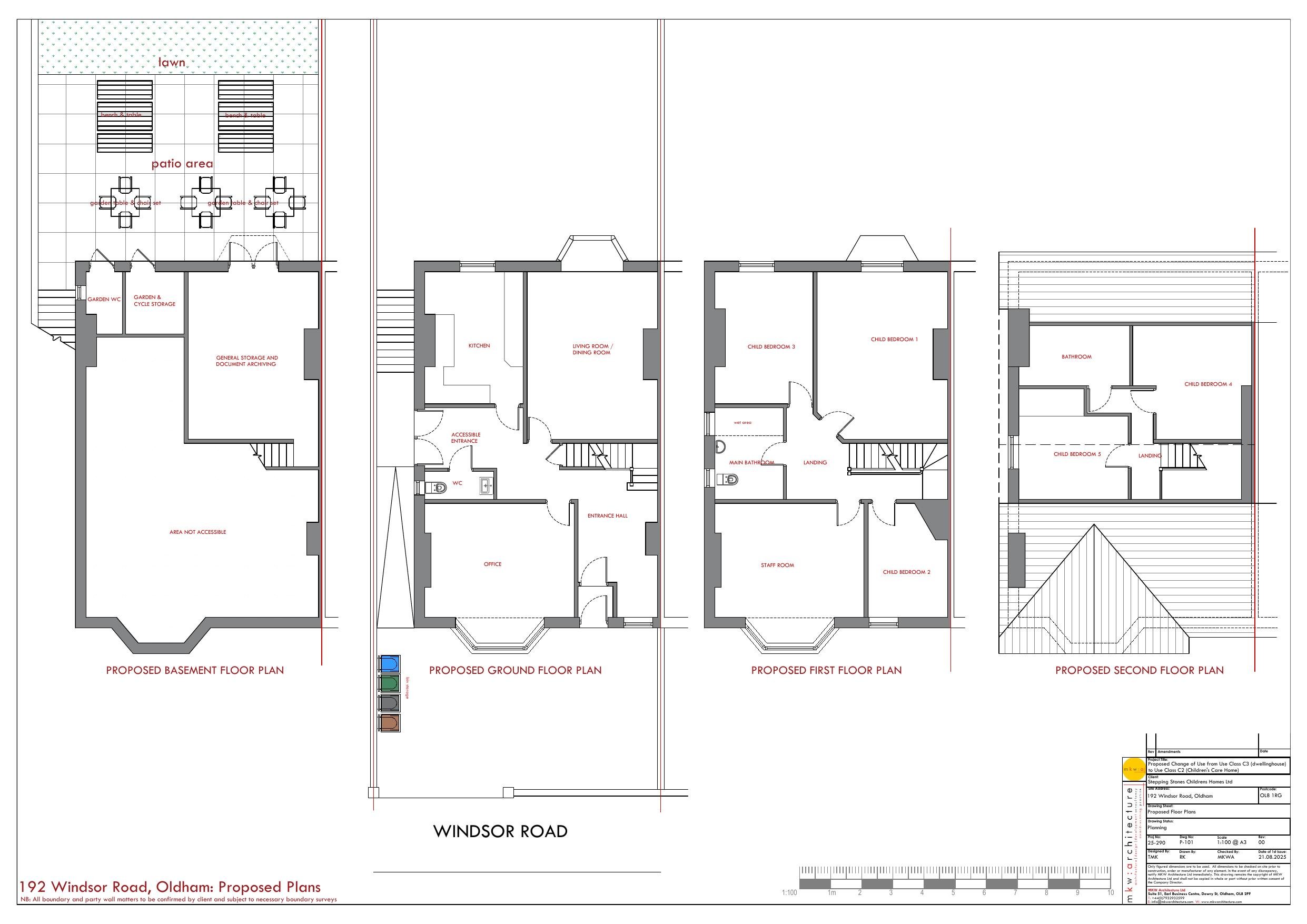
Change from dwellinghouses to residential care home.

Full Proposal

Change of Use from Use Class C3(a) (dwellinghouse) to Use Class C2 Residential Care Home

Documents

25-290-P-001 LOCATION PLAN
Additional plans
Not archived · Council Link
Block plan of the site
Archived · Council Link
25-290-P-100 EXISTING FLOOR PLANS
Other
Not archived · Council Link
APPLICATIONFORMREDACTED
Other
Not archived · Council Link
LOCATIONPLAN
The location plan
Not archived · Council Link
MODUS OPERANDI
Report
Not archived · Council Link

Take Action

Make your voice heard. Authorities need to hear from people who support new homes.

✉️ Write Email in Support View on Council Portal