← Back to Oldham Council

Status

Awaiting decision
Received
25 Nov 2025
New dwellings
n/a

Full Proposal

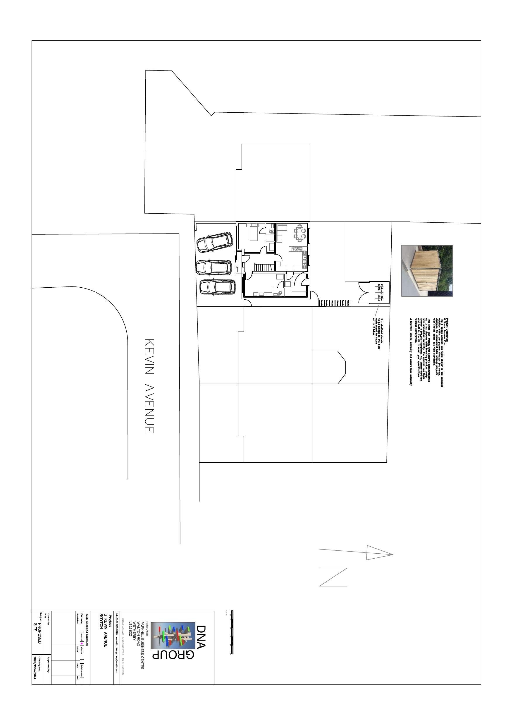
Change of use to a 6 bed house in multiple occupation (HMO) and a first floor extension over garage.

Documents

APPLICATIONFORMREDACTED
Application Form
Not archived · Council Link
DESIGN AND ACCESS STATEMENT
Design & access statement
Not archived · Council Link
EXISTING ELEVATIONS 005
Additional plans
Not archived · Council Link
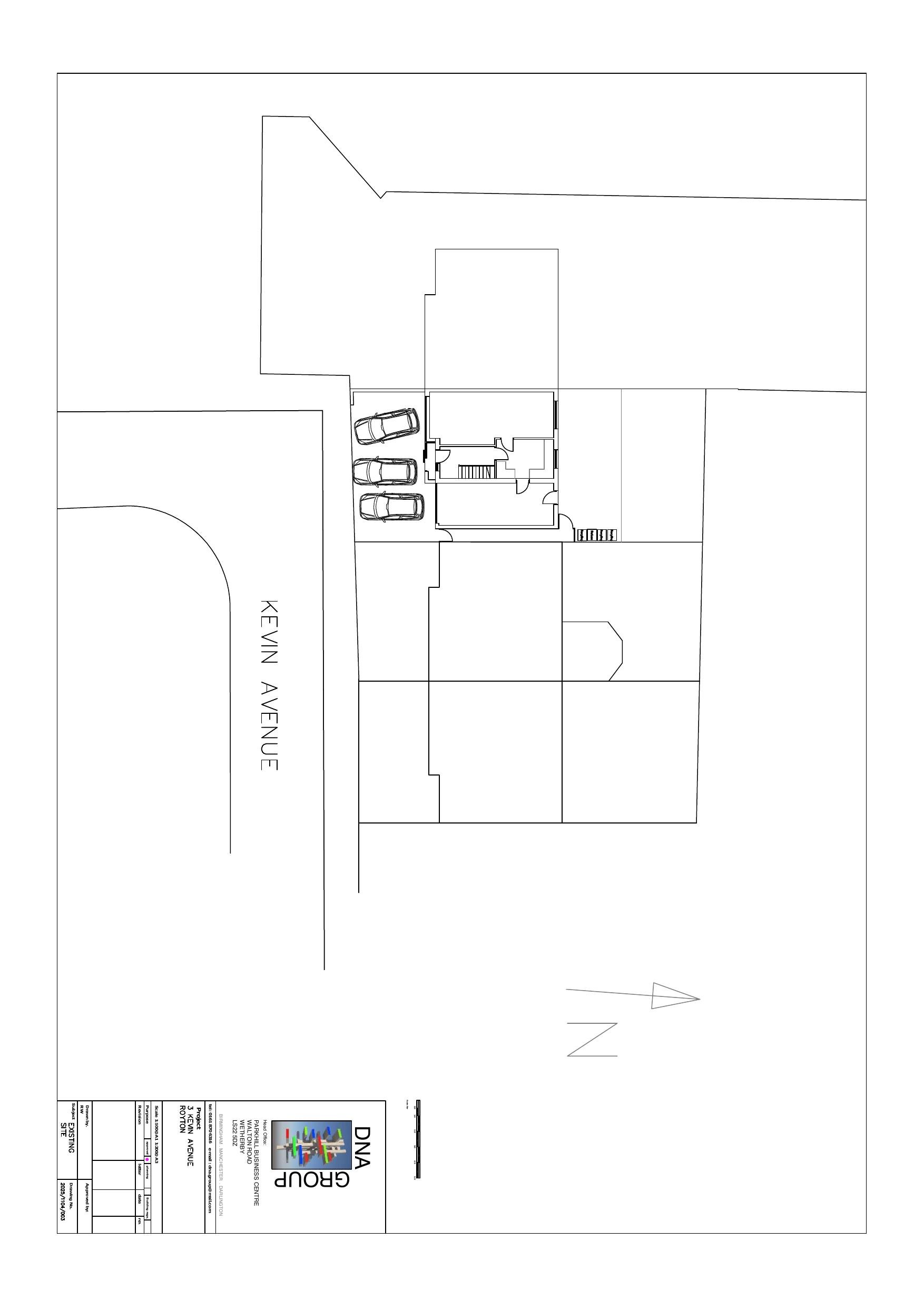
EXISTING FLOOR PLANS 001
Additional plans
Not archived · Council Link
Additional plans
Archived · Council Link
LOCATIONPLAN
The location plan
Not archived · Council Link
PROPOSED ELEVATIONS 006
Additional plans
Not archived · Council Link
Additional plans
Archived · Council Link
Additional plans
Archived · Council Link
Amended Plans
Archived · Council Link

Take Action

Make your voice heard. Authorities need to hear from people who support new homes.

✉️ Write Email in Support View on Council Portal