← Back to Oldham Council

Status

Awaiting decision
Received
25 Nov 2025
New dwellings
n/a

Summary

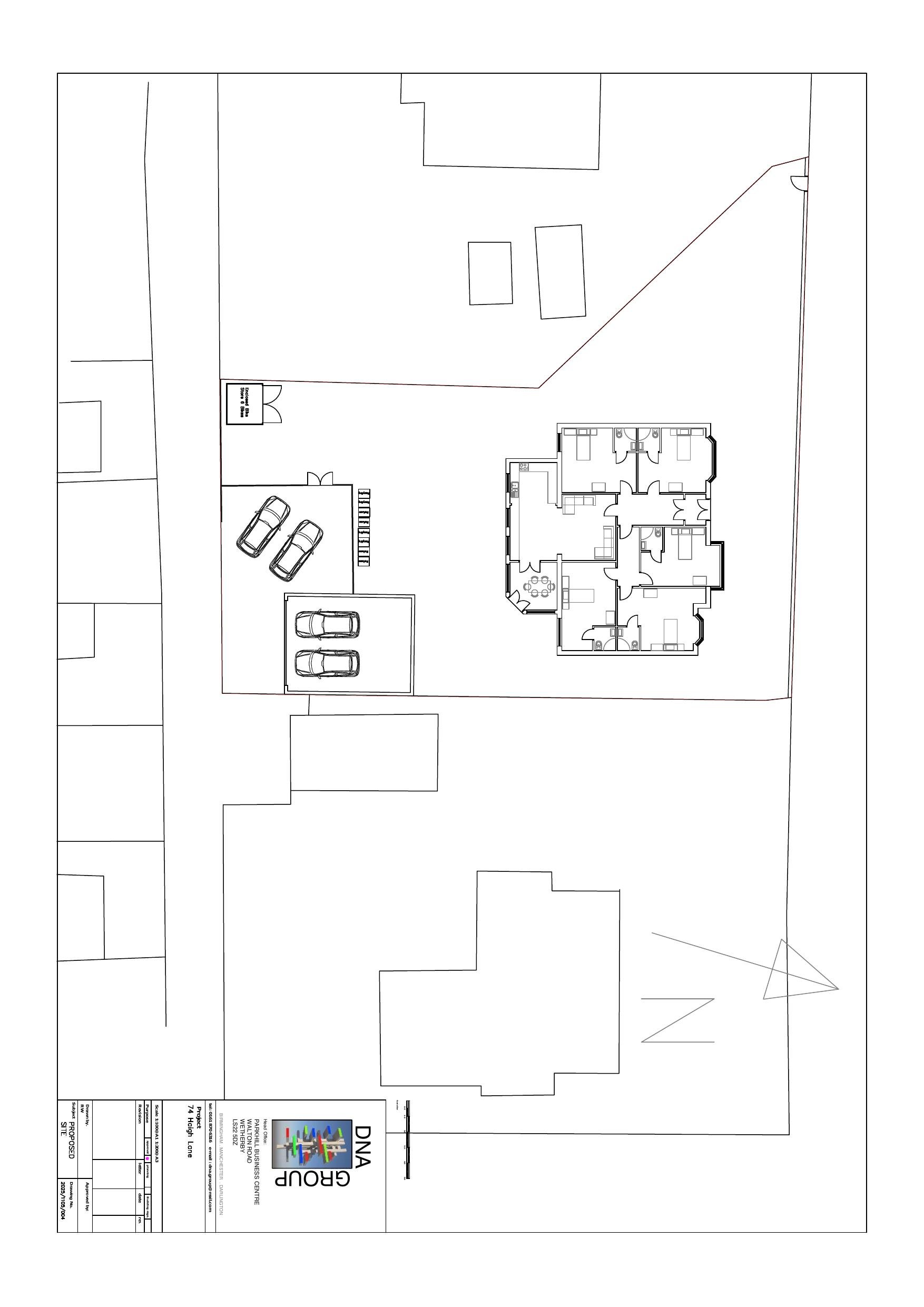
Change of use from residential (C3) to 5-bed house in multiple occupation (C4).

Full Proposal

Change of use from Residential (C3) to 5 bed House in Multiple Occupancy (C4)

Documents

2025/1105/001 HAIGH LANE.PLANNING EXISTING FLOOR PLAN
Additional plans
Not archived · Council Link
2025/1105/005 HAIGH LANE.PLANNING ELEVATIONS
Additional plans
Not archived · Council Link
74 HAIGH LANE DESIGN AND ACCESS STATEMENT
Design and Access Statement
Not archived · Council Link
APPLICATIONFORMREDACTED
Application Form
Not archived · Council Link
HMO MANAGEMENT PLAN 74 HAIGH LANE
Other relevant information
Not archived · Council Link
LOCATIONPLAN
The location plan
Not archived · Council Link

Take Action

Make your voice heard. Authorities need to hear from people who support new homes.

✉️ Write Email in Support View on Council Portal