← Back to Oldham Council

Status

Unknown
Received
26 Nov 2024
New dwellings
n/a

Full Proposal

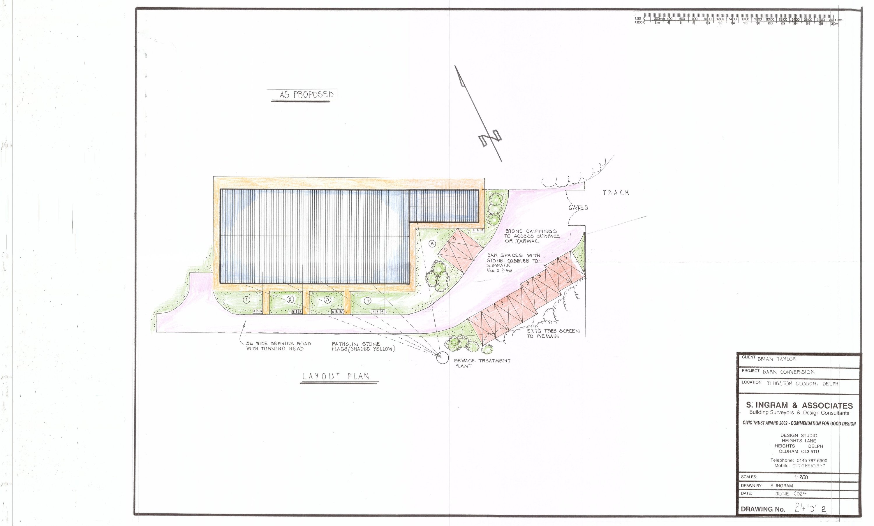
Prior approval for the conversion of the barn into 5 no. dwellinghouses, along with associated external alterations and the formation of a domestic curtilage.

Documents

APPLICATIONFORMREDACTED
Application Form
Not archived · Council Link
DN WDN AGRICULTURAL TO DWELLING
Decision
Not archived · Council Link
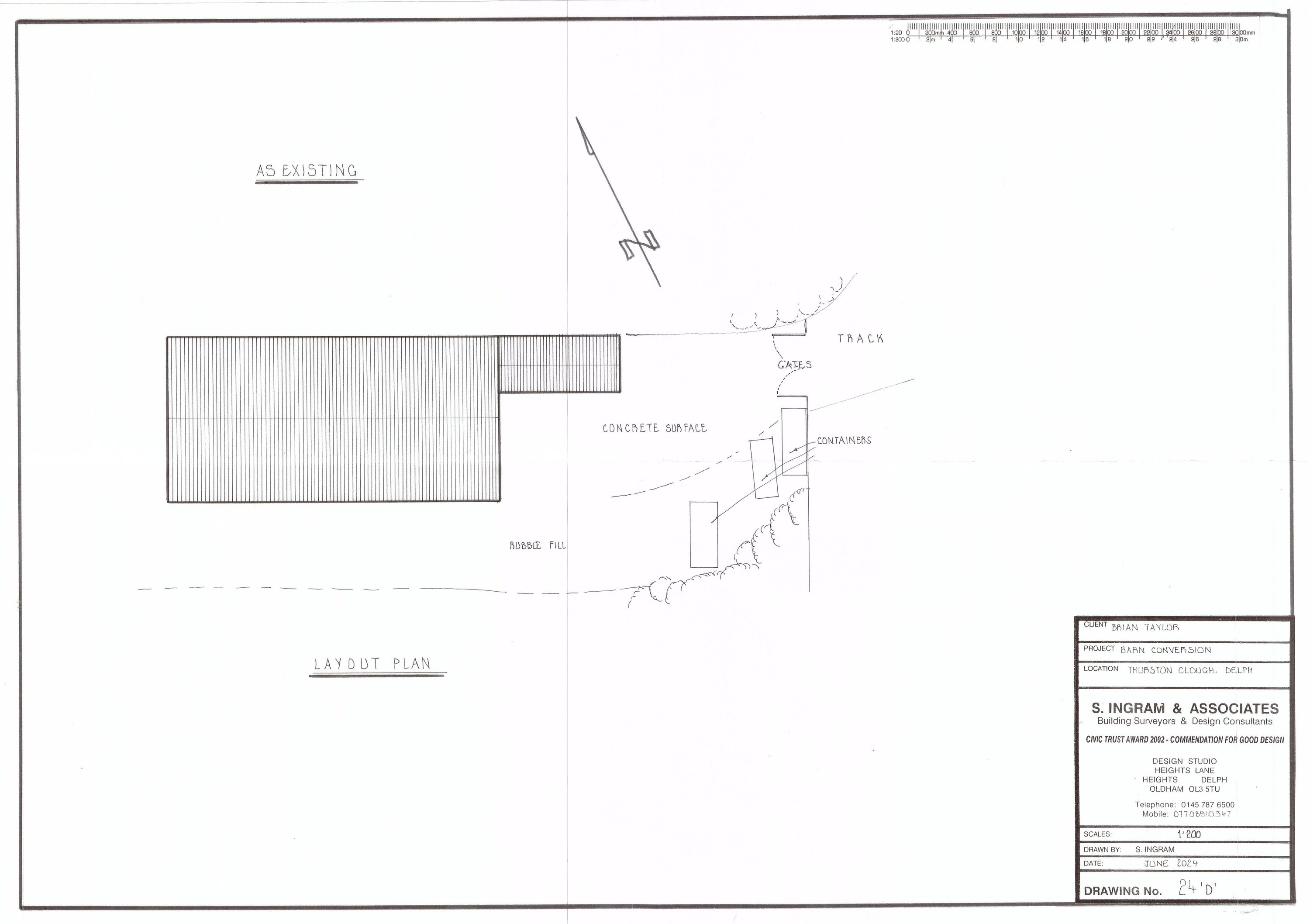
EXISTING ELEVATIONS
Plans
Not archived · Council Link
EXISTING PLANS
Plans
Not archived · Council Link
Plans
Archived · Council Link
LOCATION PLAN
Plans
Not archived · Council Link
PROPOSED ELEVATIONS
Plans
Not archived · Council Link
Plans
Archived · Council Link
Plans
Archived · Council Link

Take Action

Make your voice heard. Authorities need to hear from people who support new homes.

✉️ Write Email in Support View on Council Portal