← Back to Oldham Council

Status

Decided
Received
18 Mar 2025
New dwellings
n/a

Summary

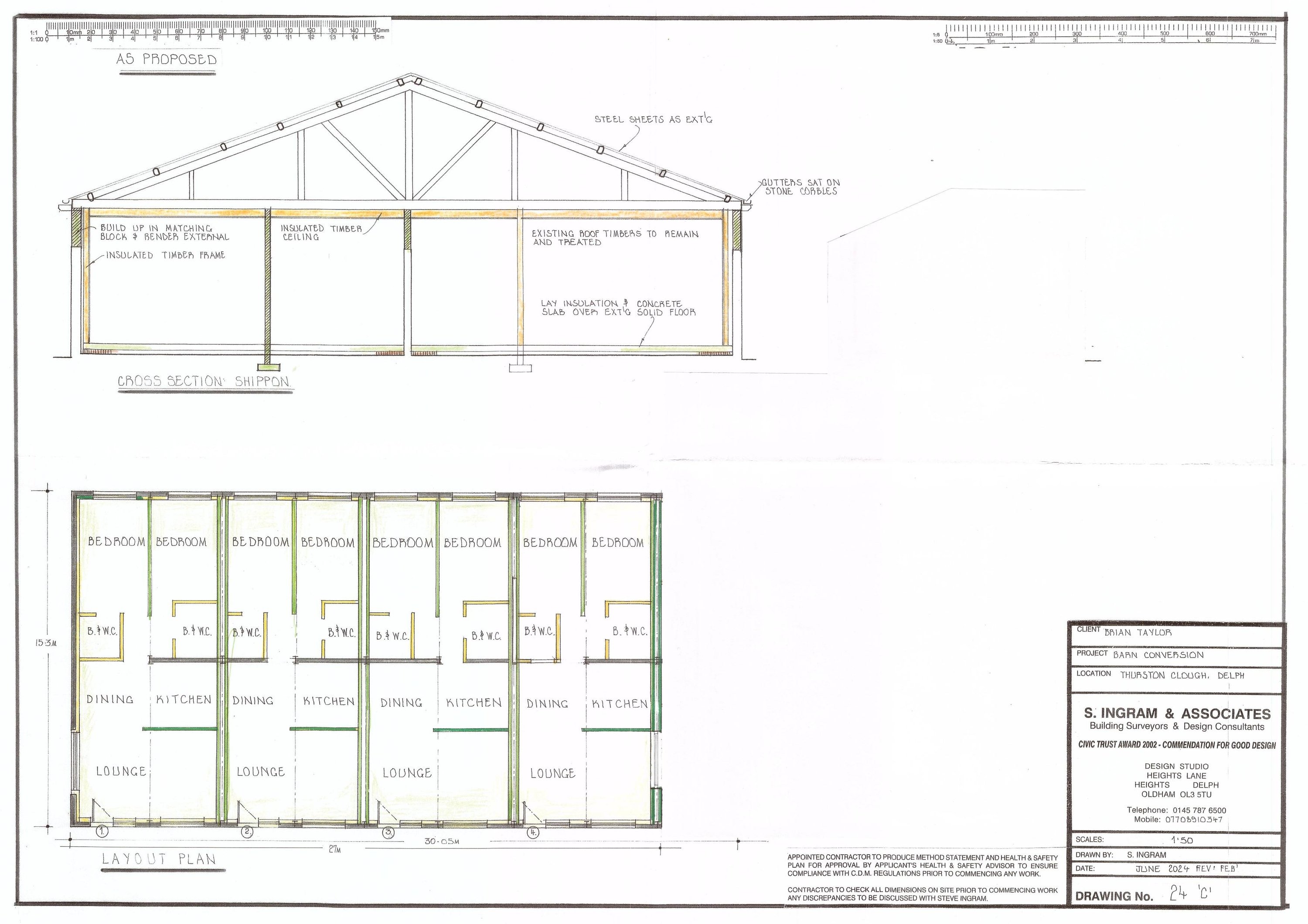
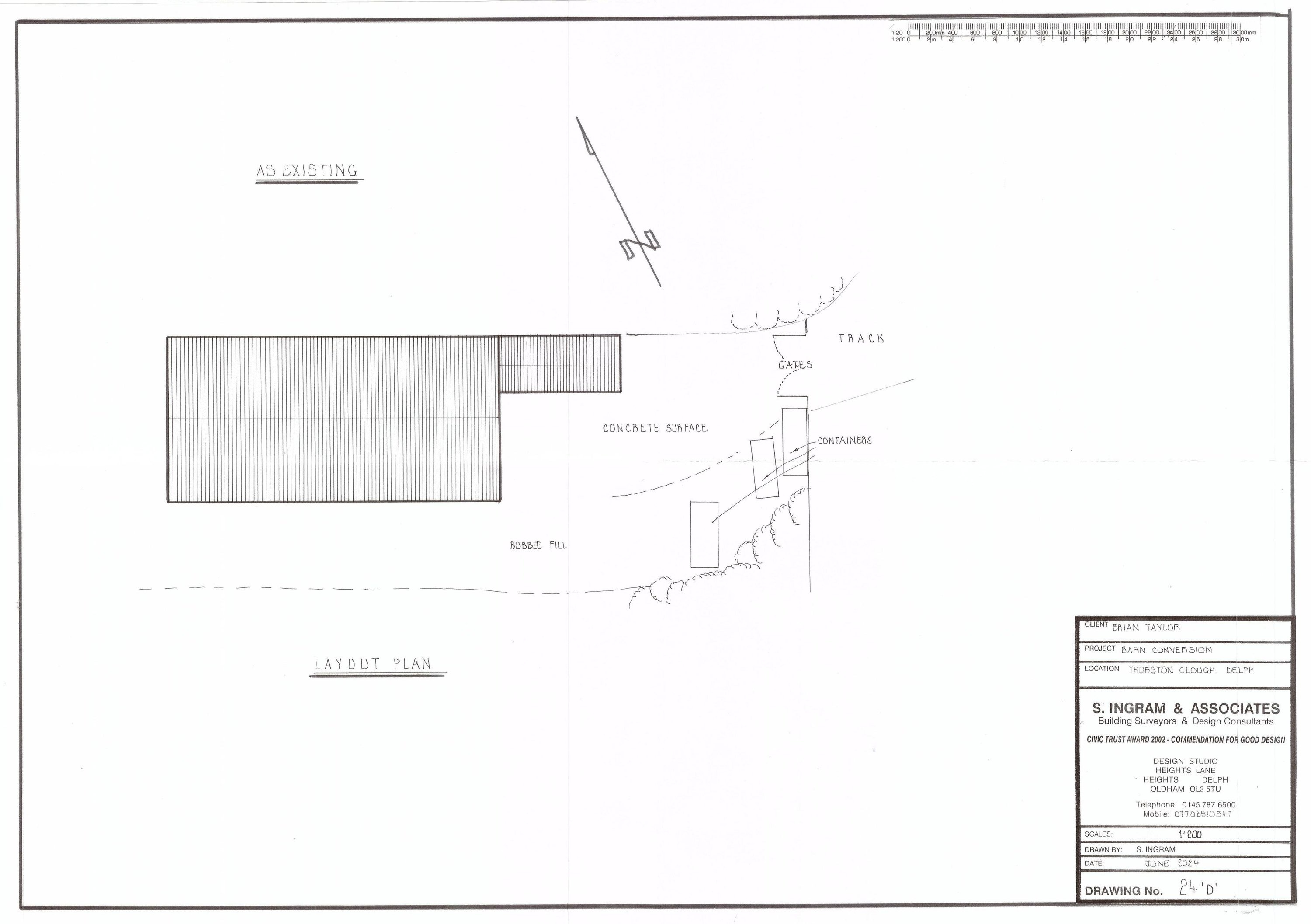
Prior approval to convert barn into four residential dwellings with curtilage formation.

Full Proposal

Prior approval for the conversion of the barn into 4 no. residential dwellings, along with associated external alterations and the formation of a domestic curtilage.

Documents

APPLICATIONFORMREDACTED
Application Form
Not archived · Council Link
DN REQ GTD AGRICULTURAL TO DWELLING
Decision
Not archived · Council Link
EXISTING ELEVATIONS
Plans
Not archived · Council Link
EXISTING PLANS
Plans
Not archived · Council Link
Plans
Archived · Council Link
LOCATION PLAN AMENDED
Plans
Not archived · Council Link
MC1017 THURSTON CLOUGH DELPH STRUCTURAL INSPECTION REPORT 25THNOV2024
Report
Not archived · Council Link
OFFICER REPORT
Report
Not archived · Council Link
PA_AGRICULTURE-TO-DWELLINGS_SUPPLEMENTARY-INFO-TEMPLATE2
Other relevant information
Not archived · Council Link
PENNINE ECOLOGICAL THURSTON CLOUGH FARM DELPH PRELIMINARY ROOST ASSESSMENT BARN
Report
Not archived · Council Link
PLANNING STATEMENT THURSTON CLOUGH FARM2
Planning statement
Not archived · Council Link
PROPOSED ELEVATIONS AMENDED
Plans
Not archived · Council Link

Take Action

Make your voice heard. Authorities need to hear from people who support new homes.

✉️ Write Email in Support View on Council Portal