← Back to Oxford City Council

Status

Decided
Received
21 Mar 2025
New dwellings
n/a

Summary

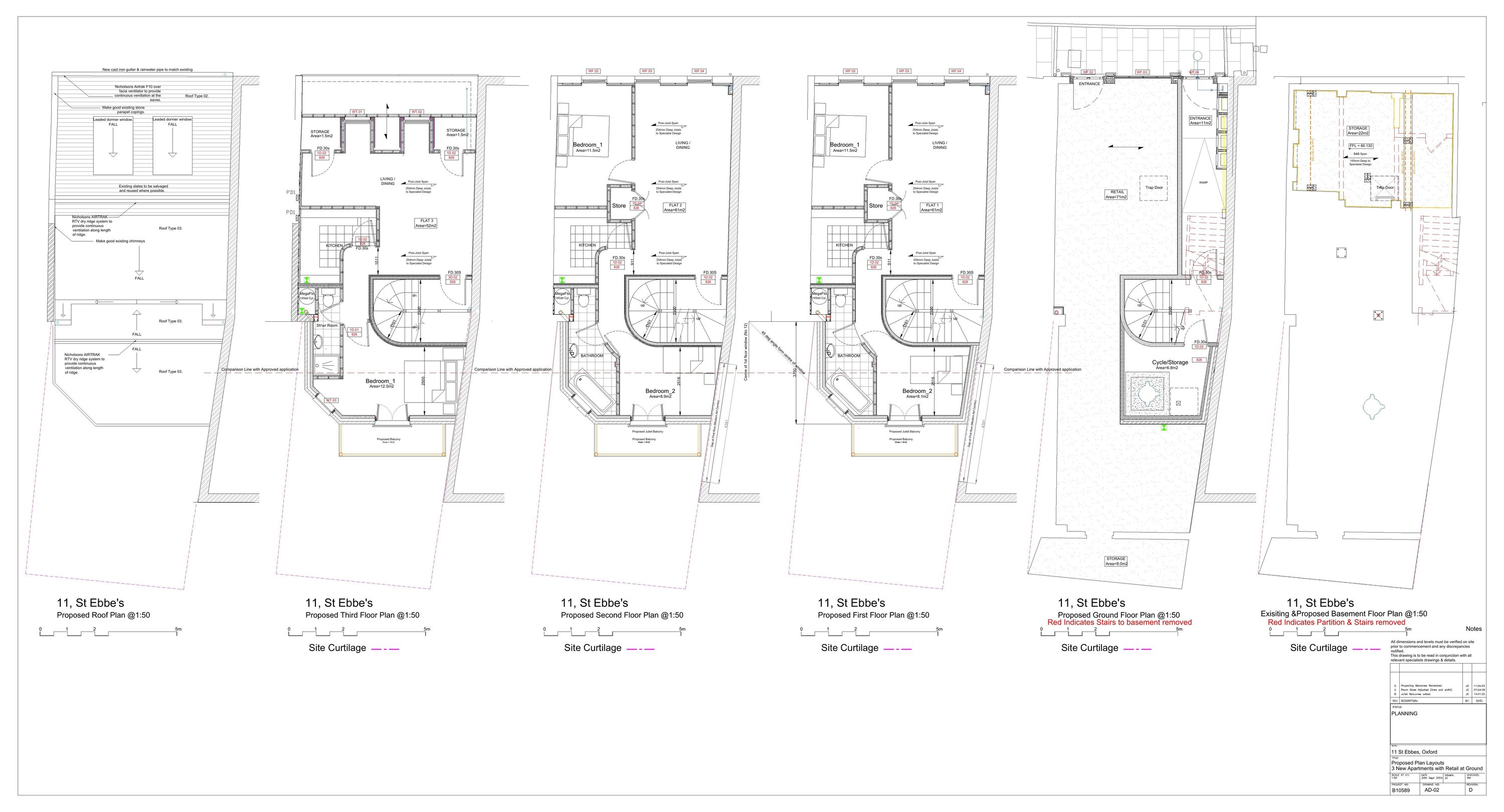
Three-storey rear extension, front and rear dormers and loft conversion enlarging existing flats.

Full Proposal

Erection of a three storey rear extension to accommodate the enlargement of existing flats, formation of 1no. front dormer and 1no. rear dormer in association with a loft conversion. (amended plans)

Documents

3 new apartments with retail at ground
Drawing
Not archived · Council Link
Application form redacted
Application Form
Not archived · Council Link
Cil form
Other
Not archived · Council Link
Daylight and sunlight assessment
Other
Not archived · Council Link
Decision
Decision
Not archived · Council Link
Delegated report
Report
Not archived · Council Link
Existing basement ground & first floor plans
Drawing
Not archived · Council Link
Existing elevations front & rear
Drawing
Not archived · Council Link
Existing elevations section a
Drawing
Not archived · Council Link
Existing second & roof plans
Drawing
Not archived · Council Link
Drawing
Archived · Council Link
Heritage assessment
Other
Not archived · Council Link
Planning statement
Other
Not archived · Council Link
Proposed elevations
Revised Drawing
Not archived · Council Link
Proposed elevations
Drawing
Not archived · Council Link
Proposed elevations
Revised Drawing
Not archived · Council Link
Approved Plan
Archived · Council Link
Revised Drawing
Archived · Council Link
Site & location plans
Drawing
Not archived · Council Link
Site and location plan
Approved Plan
Not archived · Council Link

Take Action

Make your voice heard. Authorities need to hear from people who support new homes.

✉️ Write Email in Support View on Council Portal