← Back to Oxford City Council

Status

Registered
Received
16 May 2025
New dwellings
n/a

Summary

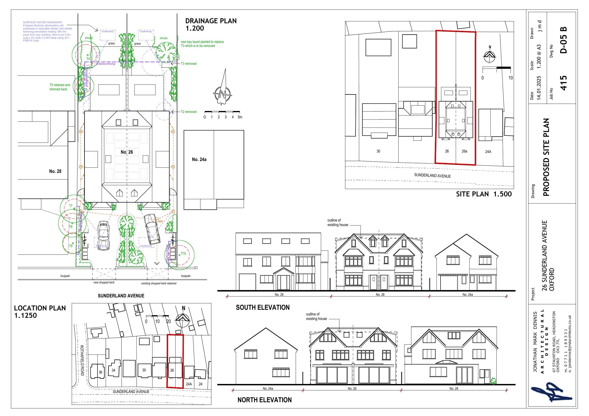
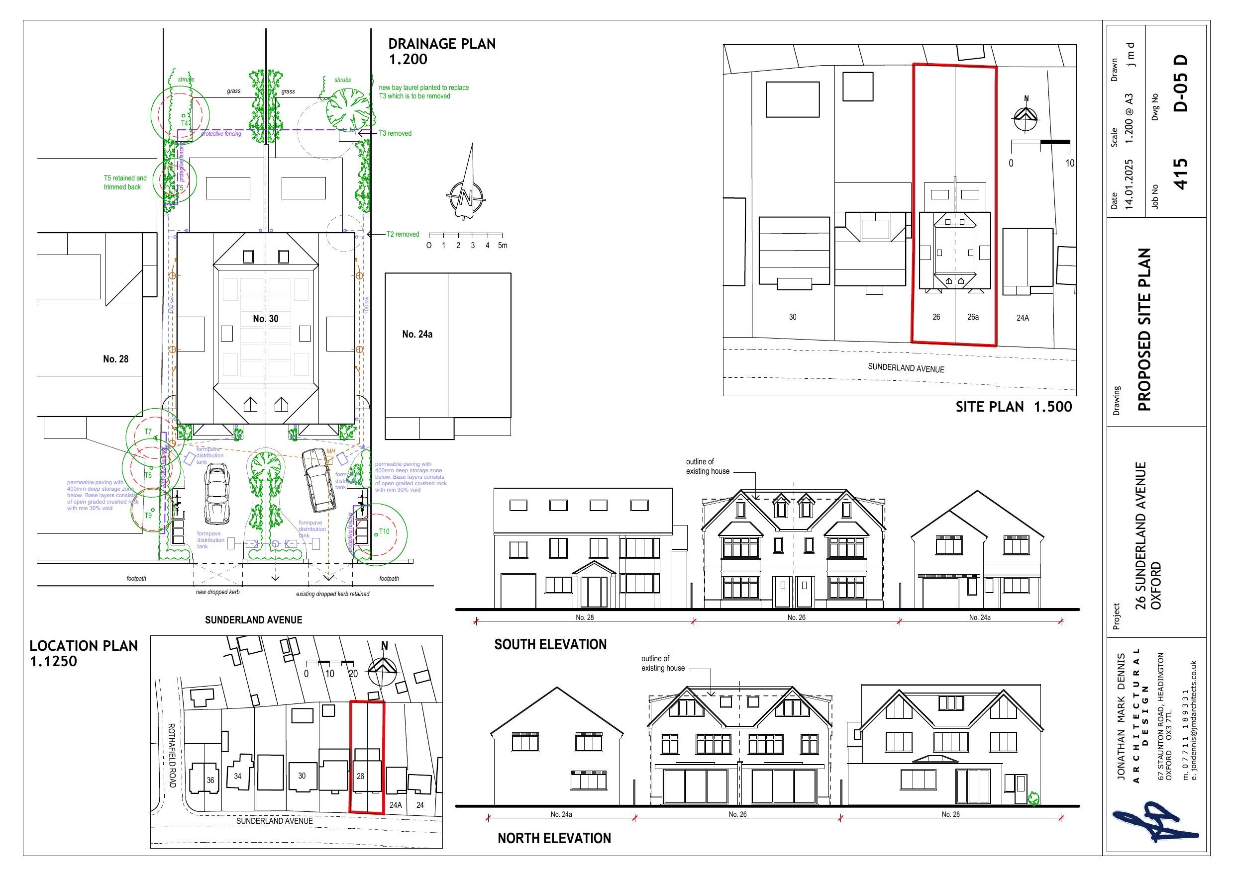
Demolition and erection of two four-bedroom dwellinghouses with air source heat pumps and parking.

Full Proposal

Demolition of existing dwellinghouse. Erection of 2 x 4 bed dwellinghouses (Use Class C3). Installation of 2no Air Source Heat Pumps. Provision of private amenity space, car parking, bin and cycle stores. Alterations to landscaping and boundary treatments and creation of dropped kerb. (amended plans, description and additional information)

Documents

Activair indoor heat pump-compressed
Other
Not archived · Council Link
Activair indoor heatpump 5 & 7kw-min
Other
Not archived · Council Link
Application form redacted
Application Form
Not archived · Council Link
Bat mitigation
Other
Not archived · Council Link
Bat report
Other
Not archived · Council Link
Cil form
Other
Not archived · Council Link
Contaminated land questionnaire
Other
Not archived · Council Link
Design & access statement - site photos
Other
Not archived · Council Link
Design and access statement
Other
Not archived · Council Link
Drainage layout & details
Revised Drawing
Not archived · Council Link
Drainage layout & details.
Other
Not archived · Council Link
Drainage statement
Other
Not archived · Council Link
Drainage statement
Other
Not archived · Council Link
Drainage strategy
Report
Not archived · Council Link
Drainage strategy report.
Report
Not archived · Council Link
Energy statement
Other
Not archived · Council Link
Energy statement
Other
Not archived · Council Link
Existing elevations
Drawing
Not archived · Council Link
Existing first floor & section
Drawing
Not archived · Council Link
Existing ground floor
Drawing
Not archived · Council Link
Drawing
Archived · Council Link
Indoor ashp control panel information
Other
Not archived · Council Link
Oxfordshire county council highways authority
Consultee Comment
Not archived · Council Link
Preliminary ecological appraisal and preliminary bat roost assessment
Other
Not archived · Council Link
Proposed elevations
Superseded Drawing
Not archived · Council Link
Proposed elevations
Superseded Drawing
Not archived · Council Link
Proposed elevations
Superseded Drawing
Not archived · Council Link
Proposed elevations
Superseded Drawing
Not archived · Council Link
Proposed elevations
Revised Drawing
Not archived · Council Link
Proposed elevations
Revised Drawing
Not archived · Council Link
Proposed first & second floor plans
Revised Drawing
Not archived · Council Link
Proposed first & second floor plans
Superseded Drawing
Not archived · Council Link
Proposed first and second floor plans
Superseded Drawing
Not archived · Council Link
Proposed first and second floor plans
Superseded Drawing
Not archived · Council Link
Proposed ground floor plan & section
Superseded Drawing
Not archived · Council Link
Proposed ground floor plan and section
Superseded Drawing
Not archived · Council Link
Proposed ground floor plan and section
Superseded Drawing
Not archived · Council Link
Proposed second floor & roof plan
Revised Drawing
Not archived · Council Link
Proposed second floor and roof plan
Superseded Drawing
Not archived · Council Link
Proposed second floor and roof plan
Superseded Drawing
Not archived · Council Link
Superseded Drawing
Archived · Council Link
Superseded Drawing
Archived · Council Link
Superseded Drawing
Archived · Council Link
Superseded Drawing
Archived · Council Link
Proposed_elevations
Superseded Drawing
Not archived · Council Link
Proposed_first floor plan section
Revised Drawing
Not archived · Council Link
Proposed_ground_floor_plans and section
Revised Drawing
Not archived · Council Link
Revised Drawing
Archived · Council Link
Sap 10 worksheet - plot 1
Other
Not archived · Council Link
Sap 10 worksheet - plot 2
Other
Not archived · Council Link
Suds report
Report
Not archived · Council Link
Thames water confirmation
Other
Not archived · Council Link
Tree protection report
Other
Not archived · Council Link

Take Action

Make your voice heard. Authorities need to hear from people who support new homes.

✉️ Write Email in Support View on Council Portal