← Back to Oxford City Council

Status

Registered
Received
06 Jun 2025
New dwellings
n/a

Summary

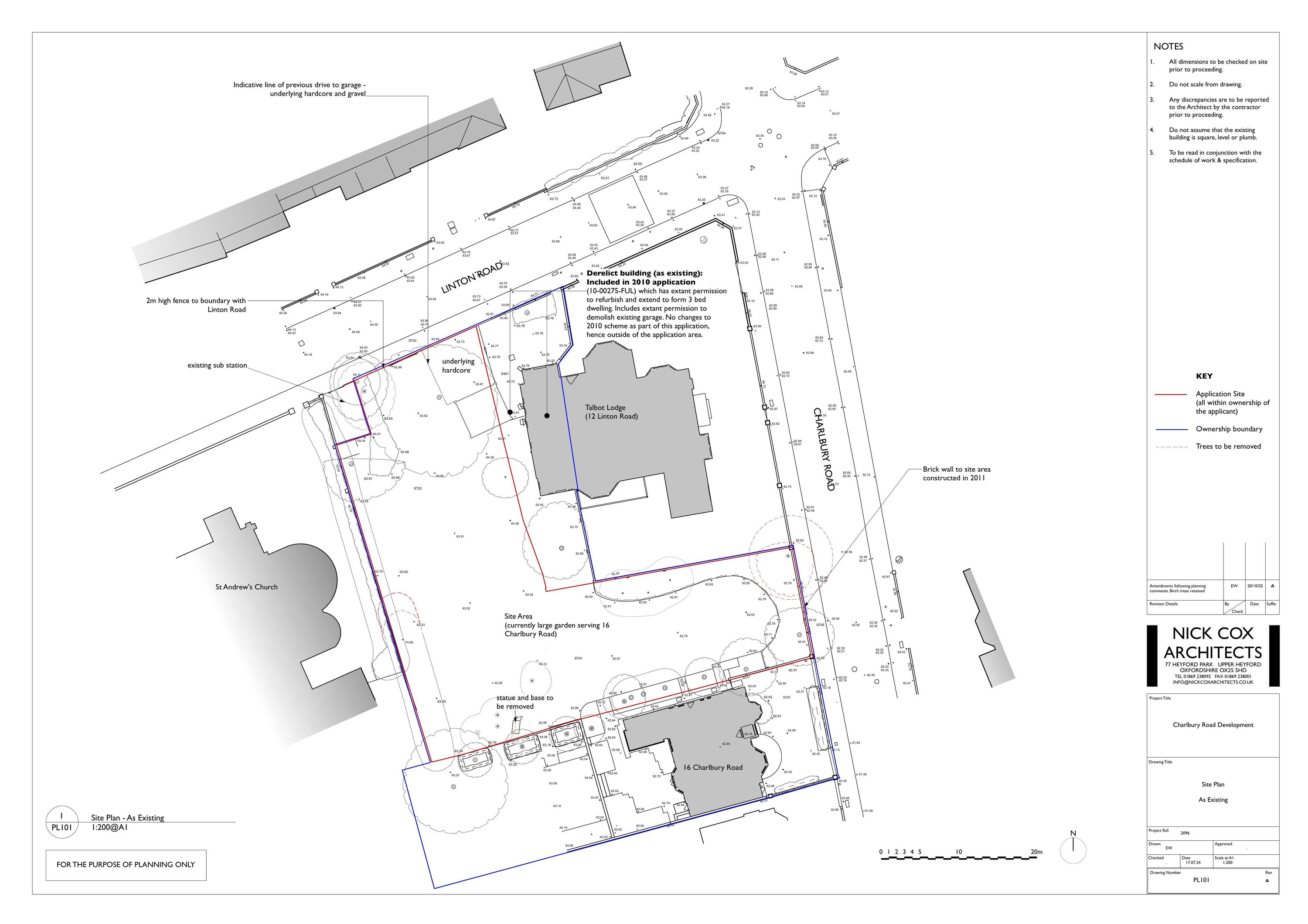
Erect one six-bedroom dwelling with new access, parking, EV charging, ASHP, private garden.

Full Proposal

Removal of existing boundary fence and garage, erection of a 1 x 6 bed dwellinghouse (Use Class C3). Alterations to boundary wall, boundary treatments and access. Provision of private amenity space, vehicle parking and cycle and bin storage. Provision of EV charging. Installation of 1 no. air source heat pump (ASHP). (amended plans and description).

Documents

Application form redacted
Application Form
Not archived · Council Link
Arboricultural report
Other
Not archived · Council Link
Arboricultural report
Other
Not archived · Council Link
Archaeological desk-based assessment
Other
Not archived · Council Link
Archaeological desk-based assessment
Other
Not archived · Council Link
Building 1 - floor plan proposed
Superseded Drawing
Not archived · Council Link
Building 1 - floor plan proposed
Revised Drawing
Not archived · Council Link
Building 1 - south and east elevations - as proposed
Superseded Drawing
Not archived · Council Link
Building 1 - south and east elevations - as proposed
Revised Drawing
Not archived · Council Link
Building 1 - west elevation - as proposed
Drawing
Not archived · Council Link
Building 2 - north elevation - as proposed
Superseded Drawing
Not archived · Council Link
Building 2 - proposed
Superseded Drawing
Not archived · Council Link
Building 2 - proposed
Superseded Drawing
Not archived · Council Link
Building 2 : elevations as proposed
Superseded Drawing
Not archived · Council Link
Building 2 : elevations as proposed
Superseded Drawing
Not archived · Council Link
Revised Drawing
Archived · Council Link
Cil form
Other
Not archived · Council Link
Daylight/sunlight assessment
Superseded Drawing
Not archived · Council Link
Daylight/sunlight assessment
Revised Drawing
Not archived · Council Link
Design and access statement
Other
Not archived · Council Link
Design and access statement
Other
Not archived · Council Link
Elevations - as existing
Superseded Drawing
Not archived · Council Link
Elevations - as existing
Superseded Drawing
Not archived · Council Link
Elevations - as proposed
Superseded Drawing
Not archived · Council Link
Elevations as existing
Revised Drawing
Not archived · Council Link
Elevations as existing
Revised Drawing
Not archived · Council Link
Elevations as proposed
Revised Drawing
Not archived · Council Link
Elevations as proposed
Revised Drawing
Not archived · Council Link
Energy statement
Other
Not archived · Council Link
Energy statement
Other
Not archived · Council Link
Issue sheet
Other
Not archived · Council Link
Land contamination questionnaire
Other
Not archived · Council Link
Landscape proposal
Drawing
Not archived · Council Link
Landscape proposal - revised scheme
Revised Drawing
Not archived · Council Link
Noise impact assessment
Other
Not archived · Council Link
Noise impact assessment
Other
Not archived · Council Link
Planning statement
Other
Not archived · Council Link
Planning statement rev a
Other
Not archived · Council Link
Preliminary ecological appraisal & biodiversity net gain assessment
Other
Not archived · Council Link
Revised Drawing
Archived · Council Link
Superseded Drawing
Archived · Council Link
Superseded Drawing
Archived · Council Link
Revised Drawing
Archived · Council Link
Revised Drawing
Archived · Council Link
Superseded Drawing
Archived · Council Link
Superseded Drawing
Archived · Council Link
Street elevation - linton road north elevation as proposed
Revised Drawing
Not archived · Council Link
Sustainable drainage assessment
Other
Not archived · Council Link
Sustainable drainage assessment
Other
Not archived · Council Link
Talbot lodge
Public Comment
Not archived · Council Link
Update preliminary ecological appraisal & biodiversity net gain assessment
Other
Not archived · Council Link
West elevation as proposed
Revised Drawing
Not archived · Council Link

Take Action

Make your voice heard. Authorities need to hear from people who support new homes.

✉️ Write Email in Support View on Council Portal