← Back to Oxford City Council

Status

Decided
Received
30 Jun 2025
New dwellings
n/a

Summary

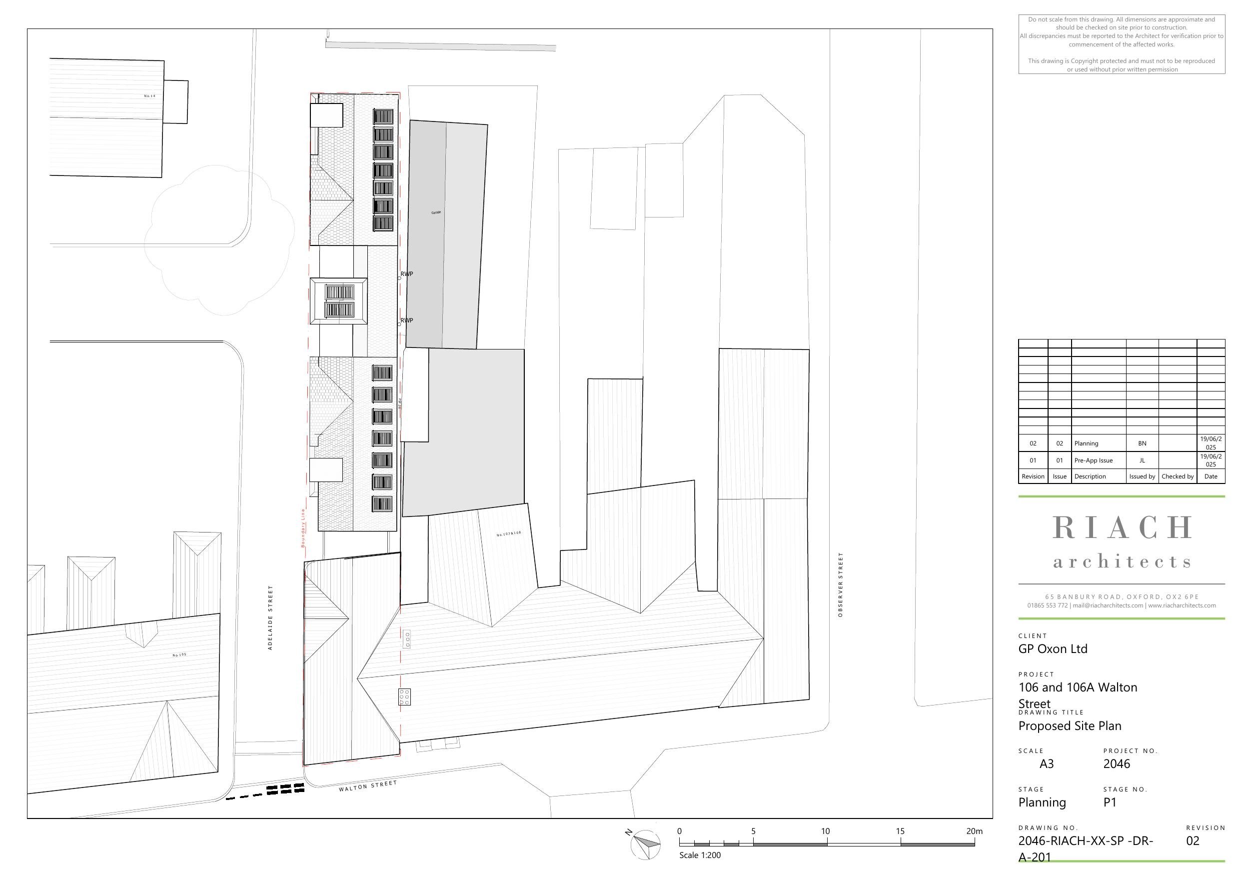
Three-storey rear extension creating five flats (3x1-bed, 2x2-bed) with solar panels and ASHPs.

Full Proposal

Demolition of existing rear stores and garage. Erection of a three storey rear extension to create 3 x 1 bed and 2 x 2 bed flats (Use Class C3). Installation of 16no. solar panels. Installation of 2no. air source heat pumps. Formation of a gable end roof extension to existing building. Alterations to shopfront window. Provision of balcony amenity space, car parking, bin and cycle stores.

Documents

3d views
Drawing
Not archived · Council Link
Application form redacted
Application Form
Not archived · Council Link
Bat emergence survey
Other
Not archived · Council Link
Cil form
Other
Not archived · Council Link
Contaminated land questionnaire
Other
Not archived · Council Link
Decision
Decision
Not archived · Council Link
Delegated report
Report
Not archived · Council Link
Design and access statement
Other
Not archived · Council Link
Drainage strategy
Other
Not archived · Council Link
Energy & sustainability strategy
Other
Not archived · Council Link
Existing floor plans
Drawing
Not archived · Council Link
Drawing
Archived · Council Link
Existing south east/north west elevation
Drawing
Not archived · Council Link
Existing south west/north east elevations
Drawing
Not archived · Council Link
Heritage impact assessment
Other
Not archived · Council Link
Location plan
Approved Plan
Not archived · Council Link
Noise impact assessment
Other
Not archived · Council Link
Planning statement
Other
Not archived · Council Link
Preliminary ecological appraisal & preliminary roost assessment
Other
Not archived · Council Link
Approved Plan
Archived · Council Link
Approved Plan
Archived · Council Link
Proposed south east/ north west elevation
Approved Plan
Not archived · Council Link
Proposed south west/north east elevations
Approved Plan
Not archived · Council Link

Take Action

Make your voice heard. Authorities need to hear from people who support new homes.

✉️ Write Email in Support View on Council Portal