← Back to Oxford City Council

Status

Registered
Received
17 Dec 2025
New dwellings
n/a

Full Proposal

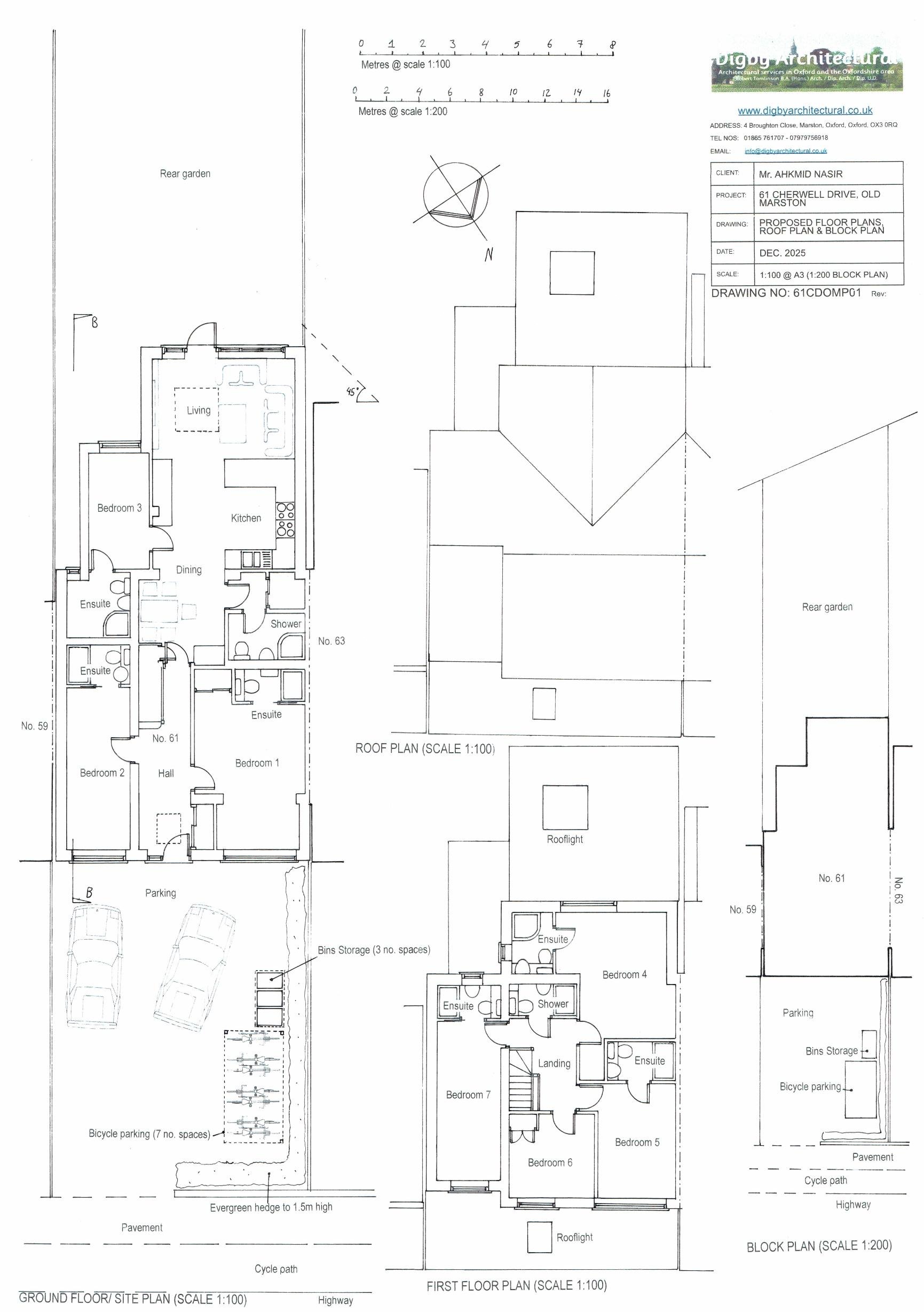
Change of use from House in Multiple Occupation (Use Class C4) to a large House in Multiple Occupation (Sui Generis). Demolition of garage and erection of a two storey side extension. Erection of a single storey front extension, a single storey rear extension and a first floor rear extension. Provision of bins and bicycle storage to front.

Documents

Application form redacted
Application Form
Not archived · Council Link
Cil form
Other
Not archived · Council Link
Contaminated land questionnaire
Other
Not archived · Council Link
Design and access statement
Other
Not archived · Council Link
Existing elevations / section
Drawing
Not archived · Council Link
Location plan
Drawing
Not archived · Council Link
Proposed elevations / section
Drawing
Not archived · Council Link

Take Action

Make your voice heard. Authorities need to hear from people who support new homes.

✉️ Write Email in Support View on Council Portal