← Back to Pendle Borough Council
Summary
Demolish stables and livery yard; build four new dwellings and convert an existing building to one dwelling.
Full Proposal
Full: Demolition of existing stables and Livery Yard, erection of 4 no. new build dwellings and the conversion of an existing building into 1 no. dwelling, with associated landscaping and car parking.
Documents
ACK LETTER APP/AGENT
Acknowledgement Letter
APPLICATION FORM REDACTED
Application Form
ARBORICULTURAL IMPACT ASSESSMENT WITH ARBORICULTURAL METHOD STATEMENT
Environmental Report
BASELINE HABITAT MAP
Plans
BASELINE HABITAT MAP
Plans
BIODIVERSITY NET GAIN ASSESSMENT
Environmental Report
BIODIVERSITY NET GAIN ASSESSMENT
Environmental Report
BLOCK PLAN - PROPOSED
Amended Plans
BNG CONDITION ASSESSMENTS SHEET
Other
COAL MINING REPORT
Technical Report
CYCLE STORAGE PLAN - PROPOSED
Amended Plans
DESIGN & ACCESS AND PLANNING STATEMENT
Design and Access Statement
DESK TOP STUDY KEY SPECIES
Other
ENVIROMENTAL AGENCY RESPONSE
Consultee Comment
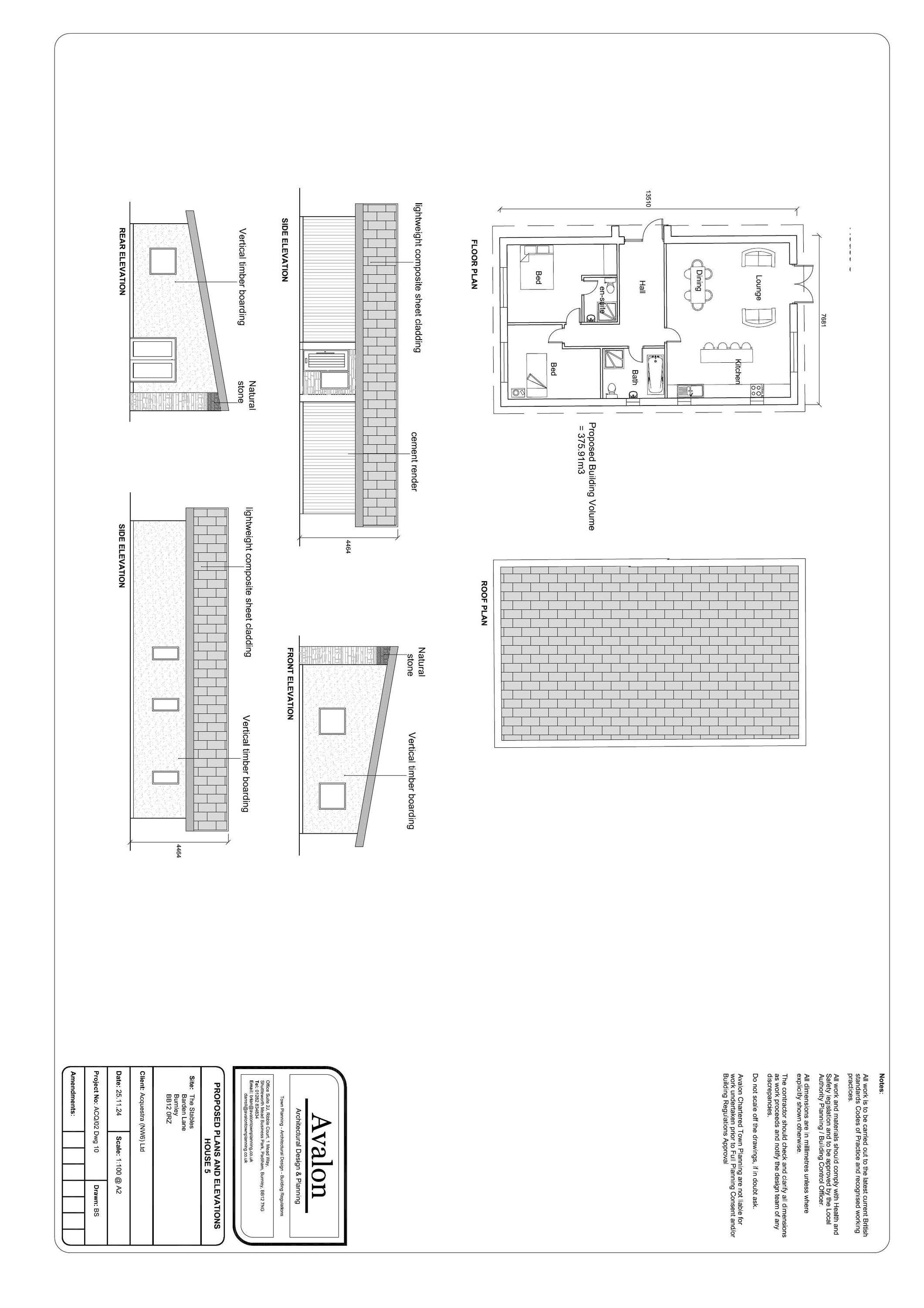
EXISTING PLANS AND ELEVATIONS FOR BUILDINGS 1-4
Plans
EXISTING PLANS AND ELEVATIONS FOR BUILDINGS 5-7
Plans
FLOOD RISK ASSESSMENT
Technical Report
FLOOD RISK DATA
Technical Report
LCC HIGHWAYS
Consultee Comment
LCC HIGHWAYS COMMENTS
Consultee Comment
LOCATION PLAN
Location Plan
NEIGHBOUR NOTIFICATION LETTER
Neighbour Notification Letter
PARISH CONSULTATION LETTER 21 DAYS
Consultation
PEAK AND NORTHERN FOOTPATHS SOCIETY - FOOTPATH INSPECTION COORDINATOR
Consultee Comment
PLANNING, DESIGN AND ACCESS STATEMENT
Technical Report
PRELIMINARY DRAINAGE STRATEGY
Technical Report
PRELIMINARY ECOLOGICAL APPRAISAL
Environmental Report
PRELIMINARY RISK ASSESSMENT
Technical Report
PROPOSED BLOCK PLAN
Plans
PROPOSED INVESTIGATION REPORT
Technical Report
PROPPSED PLANS AND ELEVATIONS- HOUSE 1
Plans
Public Comment
Public Comment
PUBLIC RIGHT OF WAYS COMMENTS
Consultee Comment
SITE ENTRANCE DETAILS PLAN - PROPOSED
Amended Plans
SITE NOTICE STANDARD
Notices
STANDARD CONSULTATION 21 DAYS
Consultation
STANDARD CONSULTATION 21 DAYS
Consultation
STANDARD CONSULTATION 21 DAYS
Consultation
STANDARD CONSULTATION 21 DAYS
Consultation
STANDARD CONSULTATION 21 DAYS
Consultation
STANDARD CONSULTATION 21 DAYS
Consultation
STANDARD CONSULTATION 21 DAYS
Consultation
STANDARD CONSULTATION 21 DAYS
Consultation
STANDARD CONSULTATION 21 DAYS
Consultation
STANDARD CONSULTATION 21 DAYS
Consultation
TRACKING LAYOUT PLAN - PROPOSED
Amended Plans
Take Action
Make your voice heard. Authorities need to hear from people who support new homes.