← Back to Pendle Borough Council
Summary
Outline permission for 98 dwellings including open space and associated infrastructure.
Full Proposal
Outline (Major): Erection of 98 dwellings (Access, Appearance, Layout and Scale only) including open space and associated infrastructure.
Documents
ACK LETTER APP/AGENT
Acknowledgement Letter
AIR QUALITY ASSESSMENT
Technical Report
APPLICATION FORM REDACTED
Application Form
ARBORICULTURAL IMPACT ASSESSMENT
Environmental Report
CADENT GAS LAYOUT MAP
Consultee Comment
CADENT GAS RESPONSE
Consultee Comment
CATCHMENT AREA PLAN
Plans
CONSULTEES AMEND ADDITIONAL PLAN 21 DAYS
Consultation
COUNTRYSIDE ACCESS OFFICER
Consultee Comment
CULVERT DIVERSION PLAN
Plans
DESIGN AND ACCESS STATEMENT
Design and Access Statement
DRAINAGE CALCULATIONS
Technical Report
DRAINAGE PLAN - EXISTING
Plans
DRAINAGE STRATEGY PLAN - PROPOSED
Plans
DRAINAGE STRATEGY REPORT
Technical Report
ECOLOGICAL IMPACT ASSESSMENT
Environmental Report
EMAIL FROM AGENT
Correspondence
EMAIL FROM AGENT
Correspondence
EMAIL FROM DEVELOPER
Correspondence
EMAIL FROM DEVELOPER
Correspondence
ENVIROMENTAL HEALTH COMMENTS
Consultee Comment
ENVIRONMENT AGENCY
Consultee Comment
FLOOD RISK ASSESSMENT
Technical Report
FLOOD RISK ASSESSMENT
Environmental Report
FLOOD RISK ASSESSMENT
Environmental Report
GEOENVIRONMENTAL PHASE 1 STUDY
Environmental Report
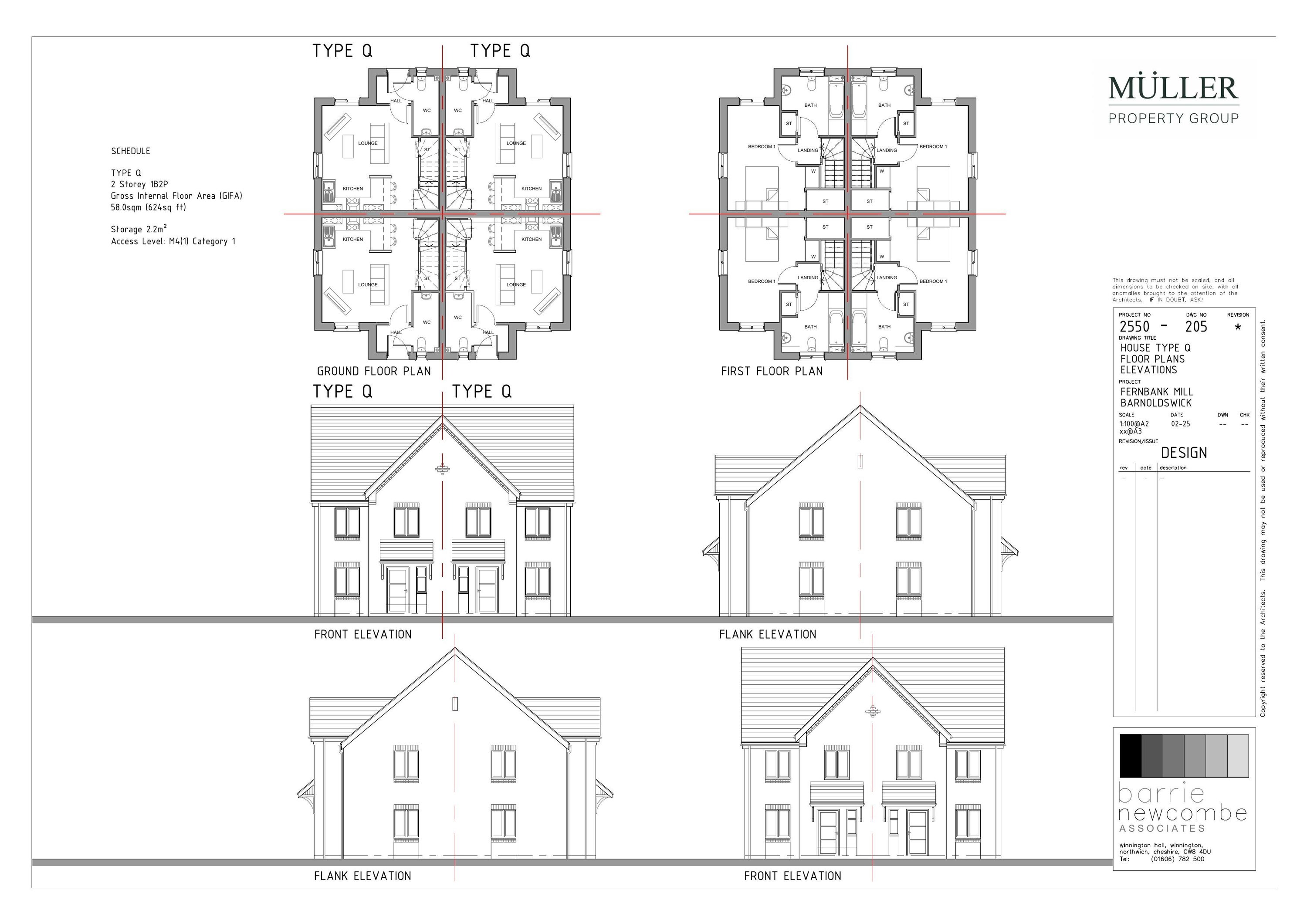
HOUSE TYPE Q- FLOOR PLANS AND ELEVATIONS- PLOT 96
Amended Plans
HOUSE TYPE Q- FLOOR PLANS AND ELEVATIONS- PLOTS 1 & 2
Amended Plans
HOUSE TYPE Q- FLOOR PLANS AND ELEVATIONS- PLOTS 3-6
Amended Plans
IDENTIFICATION OF CHANGES TO THE PROPOSED SITE LAYOUT FOLLOWING LLC HIGHWAYS COM
Amended Plans
INDICATIVE LANDSCAPE PROPOSALS
Plans
LANCASHIRE FIRE COMMENTS
Consultee Comment
LANCASHIRE FLOOD RISK COMMENTS
Consultee Comment
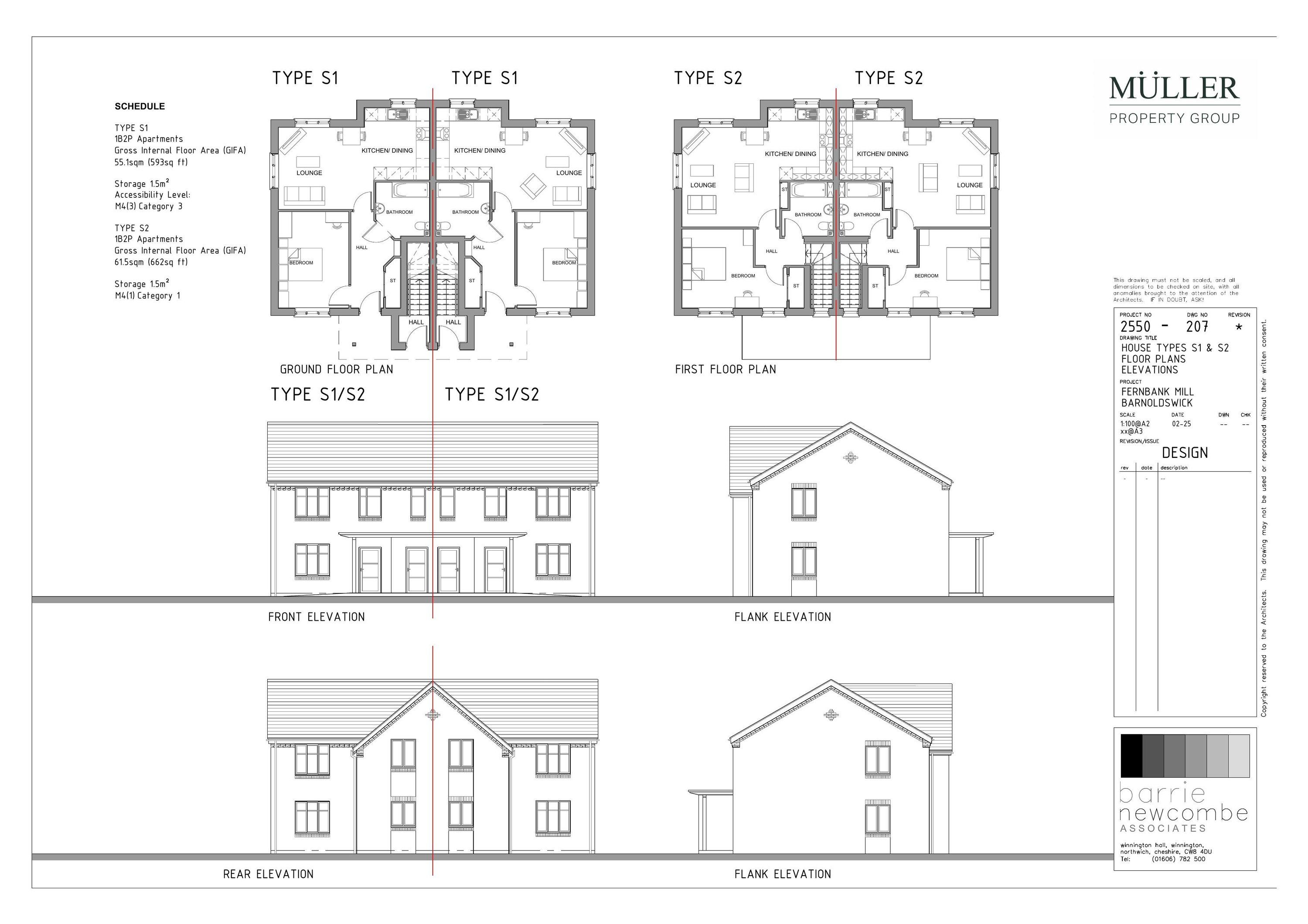
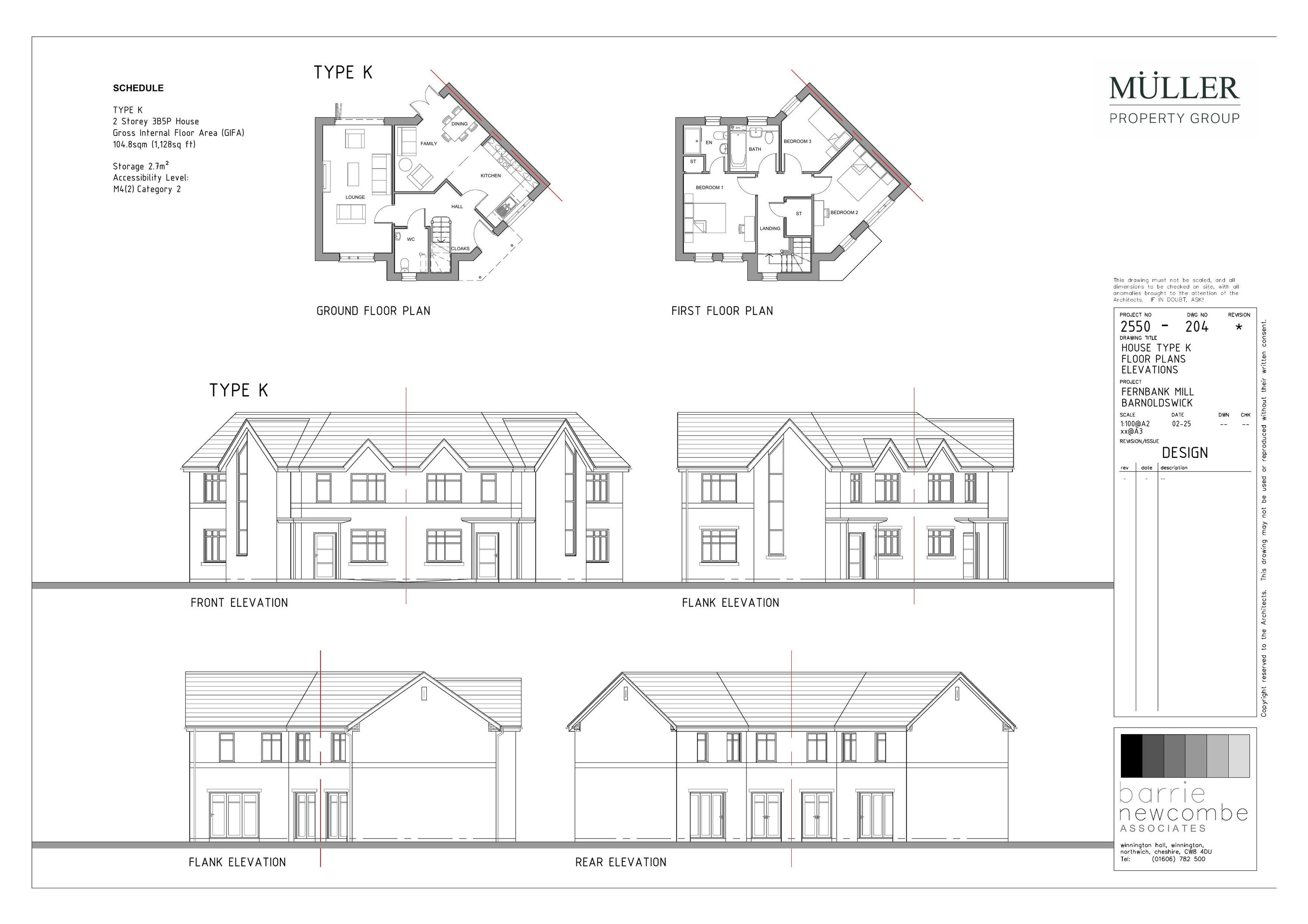
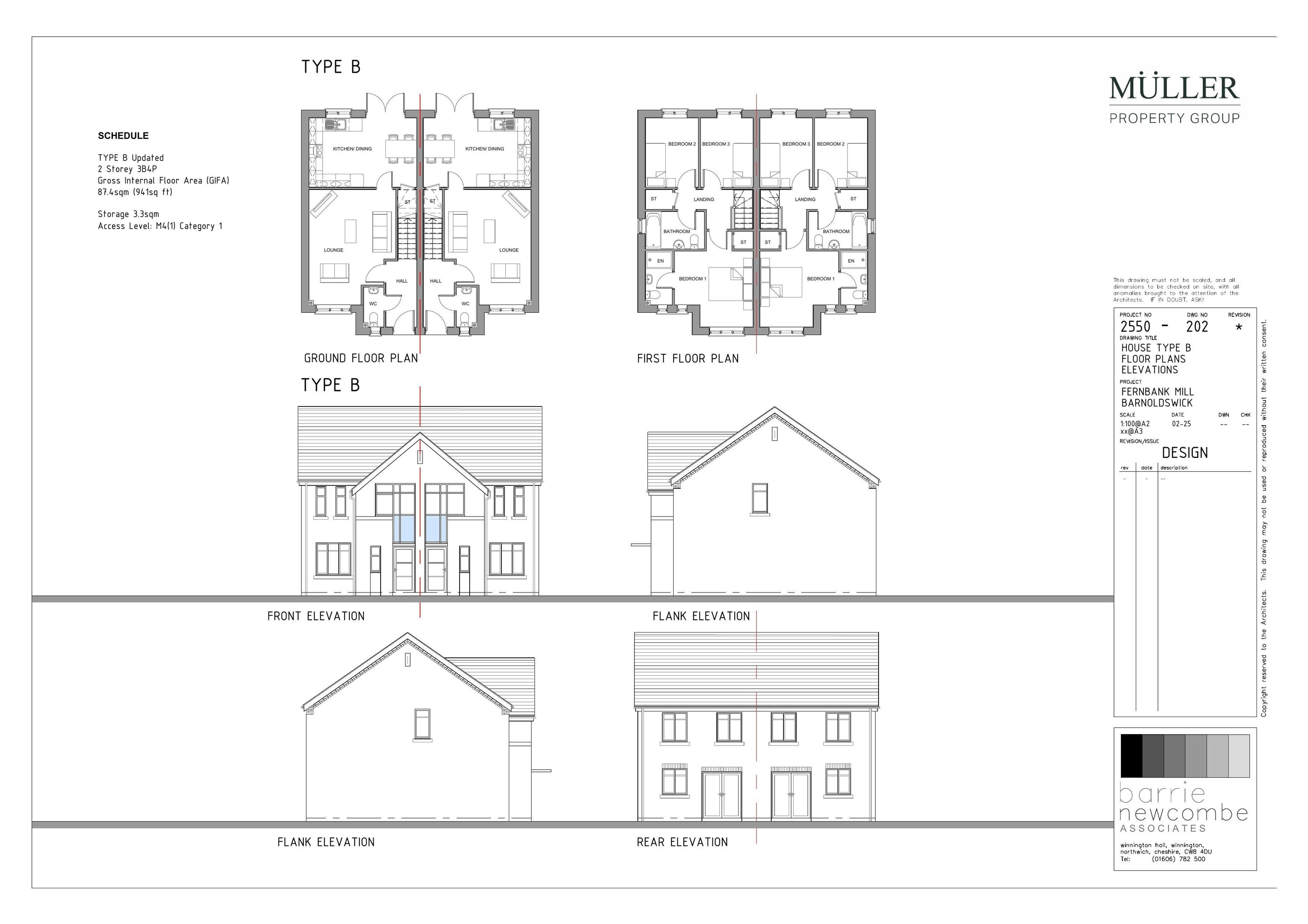
LAYOUT & ELEVATION PLAN - PROPOSED
Plans
LAYOUT & ELEVATION PLAN - PROPOSED
Plans
LAYOUT & ELEVATION PLAN - PROPOSED
Plans
LAYOUT & ELEVATION PLAN - PROPOSED
Plans
LAYOUT & ELEVATION PLAN - PROPOSED
Plans
LAYOUT & ELEVATION PLAN - PROPOSED
Plans
LAYOUT & ELEVATION PLAN - PROPOSED
Plans
LAYOUT & ELEVATION PLAN - PROPOSED
Plans
LAYOUT & ELEVATION PLAN - PROPOSED
Plans
LCC HIGHWAYS
Consultee Comment
LCC HIGHWAYS
Consultee Comment
LCC HIGHWAYS UPDATED COMMENTS
Consultee Comment
LEAD LOCAL FLOOD AUTHORITY
Consultee Comment
LEAD LOCAL FLOOD AUTHORITY
Consultee Comment
LETTER FROM AGENT
Correspondence
LETTER FROM AGENT
Correspondence
LLFA COMMENTS
Consultee Comment
LOCATION PLAN
Location Plan
LOCATION PLAN
Location Plan
NEIGHBOUR NOTIFICATION LETTER
Neighbour Notification Letter
NEIGHBOUR NOTIFICATION LETTER
Neighbour Notification Letter
NOISE IMPACT ASSESSMENT
Environmental Report
NOTICE UNDER ARTICLE 13
Application Form
OFFICIAL TITLE PLAN
Plans
OWNERSHIP CERTIFICATE
Application Form
PARISH CONSULTATION LETTER 21 DAYS
Consultation
PBC ENVIRONMENTAL HEALTH
Consultee Comment
PBC ENVIRONMENTAL HEALTH
Consultee Comment
PHASE 1 HABITAT SURVEY
Plans
PLANNING STATEMENT
Technical Report
PRELIMINARY ECOLOGICAL APPRASIAL AND BIODIVERSITY NET GAIN ASSESSMENT
Environmental Report
PROPOSED DRAINAGE STRATEGY
Amended Plans
PROPOSED DRAINAGE STRATEGY
Plans
PROPOSED LEVELS SHEET 1
Plans
PROPOSED LEVELS SHEET 2
Plans
PROPOSED LEVELS SHEET 3
Plans
PROPOSED LEVELS SHEET 4
Plans
Public Comment
Public Comment
Public Comment
Public Comment
Public Comment
Public Comment
Public Comment
Public Comment
Public Comment
Public Comment
Public Comment
Public Comment
Public Comment
Public Comment
Public Comment
Public Comment
Public Comment
Public Comment
Public Comment
Public Comment
Public Comment
Public Comment
Public Comment
Public Comment
Public Comment
Public Comment
Public Comment
Public Comment
Public Comment
Public Comment
Public Comment
Public Comment
Public Comment
Public Comment
Public Comment
Public Comment
Public Comment
Public Comment
Public Comment
Public Comment
Public Comment
Public Comment
Public Comment
Public Comment
Public Comment
Public Comment
Public Comment
Public Comment
SCHOOL PLANNING COMMENTS
Consultee Comment
SITE LAYOUT PLAN
Amended Plans
SITE LAYOUT PLAN
Amended Plans
SITE NOTICE STANDARD
Notices
STANDARD CONSULTATION 21 DAYS
Consultation
STANDARD CONSULTATION 21 DAYS
Consultation
STANDARD CONSULTATION 21 DAYS
Consultation
STANDARD CONSULTATION 21 DAYS
Consultation
STANDARD CONSULTATION 21 DAYS
Consultation
STANDARD CONSULTATION 21 DAYS
Consultation
STANDARD CONSULTATION 21 DAYS
Consultation
STANDARD CONSULTATION 21 DAYS
Consultation
STANDARD CONSULTATION 21 DAYS
Consultation
STANDARD CONSULTATION 21 DAYS
Consultation
STANDARD CONSULTATION 21 DAYS
Consultation
STANDARD CONSULTATION 21 DAYS
Consultation
STANDARD CONSULTATION 21 DAYS
Consultation
STANDARD CONSULTATION 21 DAYS
Consultation
STANDARD CONSULTATION 21 DAYS
Consultation
STANDARD CONSULTATION 21 DAYS
Consultation
STANDARD CONSULTATION 21 DAYS
Consultation
STANDARD CONSULTATION 21 DAYS
Consultation
STANDARD CONSULTATION 21 DAYS
Consultation
STANDARD CONSULTATION 21 DAYS
Consultation
STANDARD CONSULTATION 21 DAYS
Consultation
STANDARD CONSULTATION 21 DAYS
Consultation
STANDARD CONSULTATION 21 DAYS
Consultation
STANDARD CONSULTATION 21 DAYS
Consultation
STATEMENT OF COMMUNITY INVOLVEMENT
Other
SUDS PRO-FORMA
Technical Report
SURFACE WATER FLOODING PLAN
Plans
TOPOGRAPHICAL SURVEY PLAN
Plans
TRANSPORT ASSESSMENT
Transport
UNITED UTILITIES
Consultee Comment
UNITED UTILITIES RESPONSE
Consultee Comment
UNITED UTILITIES RESPONSE
Consultee Comment
UPDATED HIGHWAY COMMENTS
Consultee Comment
YORKSHIRE WATER
Consultee Comment
Take Action
Make your voice heard. Authorities need to hear from people who support new homes.