← Back to Pendle Borough Council

Status

Registered
Received
12 Jul 2025
New dwellings
n/a

Summary

Full application for erection of 28 dwellings with altered vehicular access and 86 parking spaces.

Full Proposal

Full: (Major) Erection of 28 no. dwellings with altered vehicular access and 86 no. parking spaces.

Documents

3D VIEW 1
Plans
Not archived · Council Link
3D VIEW 10
Plans
Not archived · Council Link
3D VIEW 11
Plans
Not archived · Council Link
3D VIEW 2
Plans
Not archived · Council Link
3D VIEW 3
Plans
Not archived · Council Link
3D VIEW 4
Plans
Not archived · Council Link
3D VIEW 5
Plans
Not archived · Council Link
3D VIEW 6
Plans
Not archived · Council Link
3D VIEW 7
Plans
Not archived · Council Link
3D VIEW 8
Plans
Not archived · Council Link
3D VIEW 9
Plans
Not archived · Council Link
ACK LETTER APP/AGENT
Acknowledgement Letter
Not archived · Council Link
APPLICATION FOR PLANNING PERMISSION
Application Form
Not archived · Council Link
APPLICATION FORM REDACTED
Application Form
Not archived · Council Link
ARBORICULTURAL REPORT
Environmental Report
Not archived · Council Link
BIODIVERSITY IMPACT ASSESSMENT
Environmental Report
Not archived · Council Link
BNG METRICS
Other
Not archived · Council Link
CANAL & RIVER TRUST
Consultee Comment
Not archived · Council Link
CONSTRAINTS AND OPPORTUNITIES PLAN
Plans
Not archived · Council Link
DESIGN AND ACCESS STATEMENT (PART 1)
Design and Access Statement
Not archived · Council Link
DESIGN AND ACCESS STATEMENT (PART 2)
Design and Access Statement
Not archived · Council Link
DRAINAGE PLAN
Plans
Not archived · Council Link
DRAINAGE STRATEGY
Technical Report
Not archived · Council Link
DRAINAGE STRATEGY 1-2
Technical Report
Not archived · Council Link
DRAINAGE STRATEGY 2-2
Environmental Report
Not archived · Council Link
ELEVATION PLAN - EXISTING
Plans
Not archived · Council Link
ELEVATION PLAN - EXISTING
Plans
Not archived · Council Link
EXCEEDANCE ROUTES
Plans
Not archived · Council Link
Plans
Archived · Council Link
FLOOD RISK ASSESSMENT
Technical Report
Not archived · Council Link
GEO-ENVIRONMENTAL DESK STUDY
Technical Report
Not archived · Council Link
HIGHWAYS COMMENTS TRACKER REPORT
Technical Report
Not archived · Council Link
HOUSE TYPE A PROPOSED ELEVATIONS AND PLANS
Plans
Not archived · Council Link
HOUSE TYPE B PROPOSED ELEVATIONS AND PLANS
Plans
Not archived · Council Link
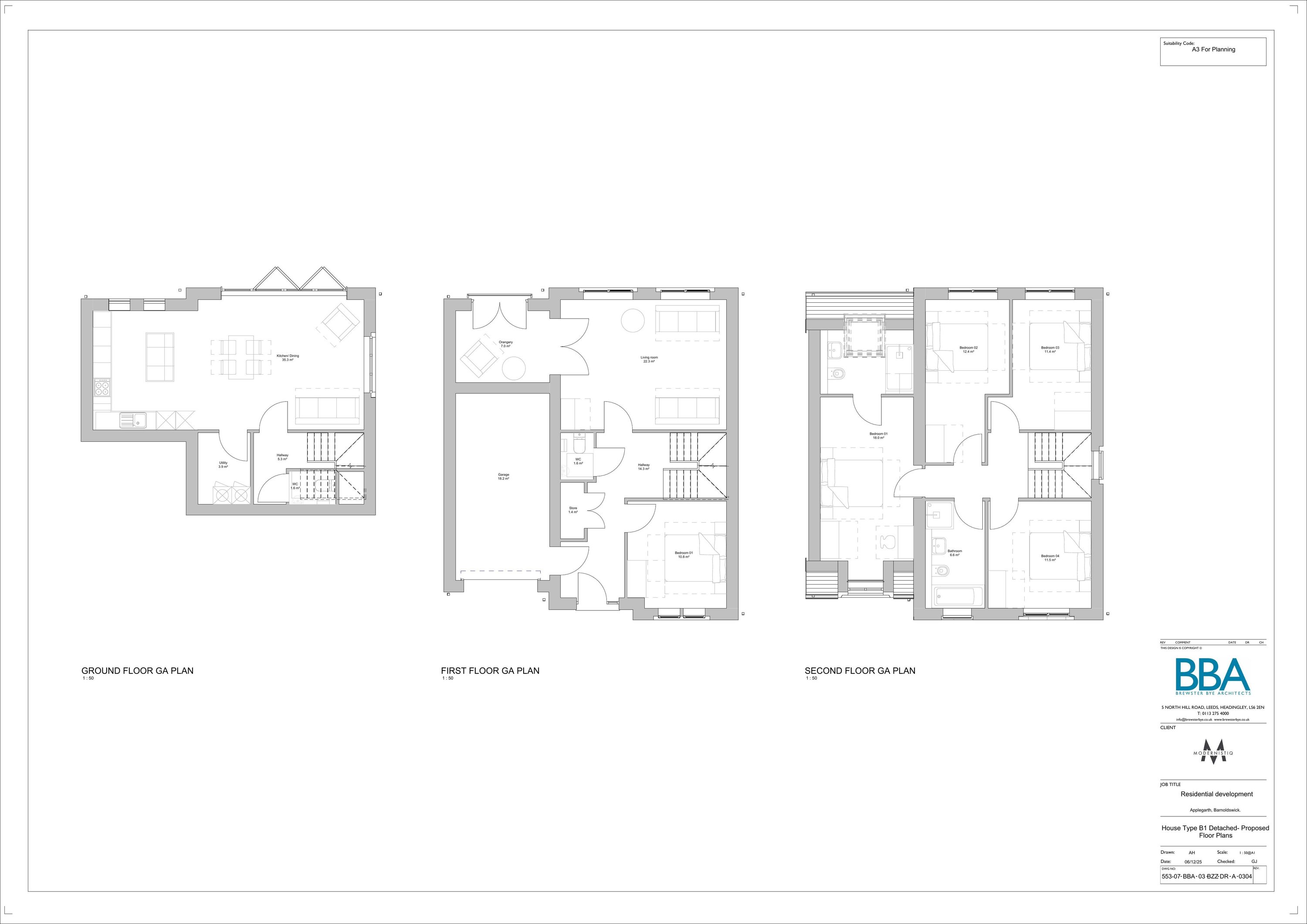
HOUSE TYPE B1 (DETACHED) PROPOSED ELEVATIONS
Plans
Not archived · Council Link
HOUSE TYPE C PROPOSED ELEVATIONS AND PLANS
Plans
Not archived · Council Link
HOUSE TYPE D PROPOSED ELEVATION AND PLANS
Plans
Not archived · Council Link
HOUSE TYPE E PROPOSED ELEVATION AND PLANS
Plans
Not archived · Council Link
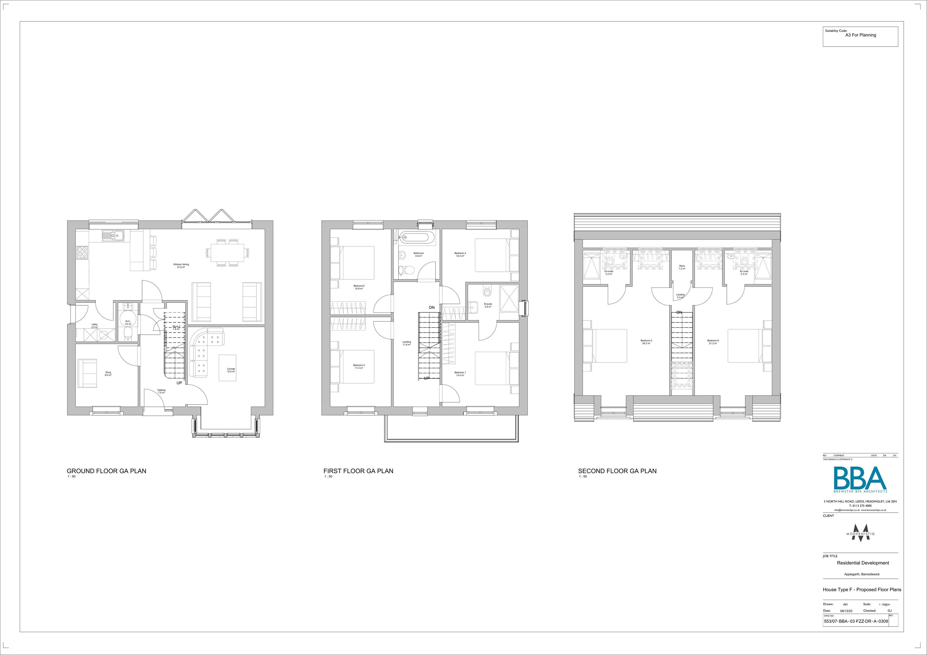
HOUSE TYPE F PROPOSED ELEVATIONS
Plans
Not archived · Council Link
HOUSE TYPE F1 (GARAGE) PROPOSED ELEVATIONS
Plans
Not archived · Council Link
IMPERMEABLE AREAS
Plans
Not archived · Council Link
LANCASHIRE FIRE AND RESCUE COMMENTS
Consultee Comment
Not archived · Council Link
LCC HIGHWAYS (ADDITIONAL COMMENTS)
Consultee Comment
Not archived · Council Link
LCC HIGHWAYS COMMENTS
Consultee Comment
Not archived · Council Link
LCC LEAD LOCAL FLOOD AUTHORITY
Consultee Comment
Not archived · Council Link
LEAD LOCAL FLOOD AUTHORITY
Consultee Comment
Not archived · Council Link
LOCATION PLAN
Location Plan
Not archived · Council Link
LOCATION PLAN
Location Plan
Not archived · Council Link
NEIGHBOUR NOTIFICATION LETTER
Neighbour Notification Letter
Not archived · Council Link
NOISE IMPACT ASSESSMENT
Technical Report
Not archived · Council Link
PARISH CONSULTATION LETTER 21 DAYS
Consultation
Not archived · Council Link
PLANNING STATEMENT INCLUDING AFFORDABLE HOUSING AND STATEMENT OF COMMUNITY INVOL
Technical Report
Not archived · Council Link
PRELIMINARY ECOLOGICAL APPRAISAL REPORT
Environmental Report
Not archived · Council Link
PRESS NOTICE
Notices
Not archived · Council Link
PRIVATE DRAINAGE
Plans
Not archived · Council Link
Amended Plans
Archived · Council Link
Public Comment
Public Comment
Not archived · Council Link
Public Comment
Public Comment
Not archived · Council Link
SCHOOL PLANNING COMMENTS
Consultee Comment
Not archived · Council Link
SECTION 104 DRAINAGE
Plans
Not archived · Council Link
SITE NOTICE STANDARD
Notices
Not archived · Council Link
Plans
Archived · Council Link
Amended Plans
Archived · Council Link
STANDARD CONSULTATION 21 DAYS
Consultation
Not archived · Council Link
STANDARD CONSULTATION 21 DAYS
Consultation
Not archived · Council Link
STANDARD CONSULTATION 21 DAYS
Consultation
Not archived · Council Link
STANDARD CONSULTATION 21 DAYS
Consultation
Not archived · Council Link
STANDARD CONSULTATION 21 DAYS
Consultation
Not archived · Council Link
STANDARD CONSULTATION 21 DAYS
Consultation
Not archived · Council Link
STANDARD CONSULTATION 21 DAYS
Consultation
Not archived · Council Link
STANDARD CONSULTATION 21 DAYS
Consultation
Not archived · Council Link
STANDARD CONSULTATION 21 DAYS
Consultation
Not archived · Council Link
STANDARD CONSULTATION 21 DAYS
Consultation
Not archived · Council Link
STANDARD CONSULTATION 21 DAYS
Consultation
Not archived · Council Link
STANDARD CONSULTATION 21 DAYS
Consultation
Not archived · Council Link
SWEPT PATH ANALYSIS PLAN - PROPOSED
Amended Plans
Not archived · Council Link
TRANSPORT STATEMENT
Transport
Not archived · Council Link
TREE CONSTRAINTS PLAN
Plans
Not archived · Council Link
UNITED UTILITIES
Consultee Comment
Not archived · Council Link
UNITED UTILITIES RESPONSE
Consultee Comment
Not archived · Council Link
YORKSHIRE WATER
Consultee Comment
Not archived · Council Link
YORKSHIRE WATER RESPONSE
Consultee Comment
Not archived · Council Link

Take Action

Make your voice heard. Authorities need to hear from people who support new homes.

✉️ Write Email in Support View on Council Portal