← Back to Pendle Borough Council

Status

Registered
Received
03 Dec 2025
New dwellings
n/a

Full Proposal

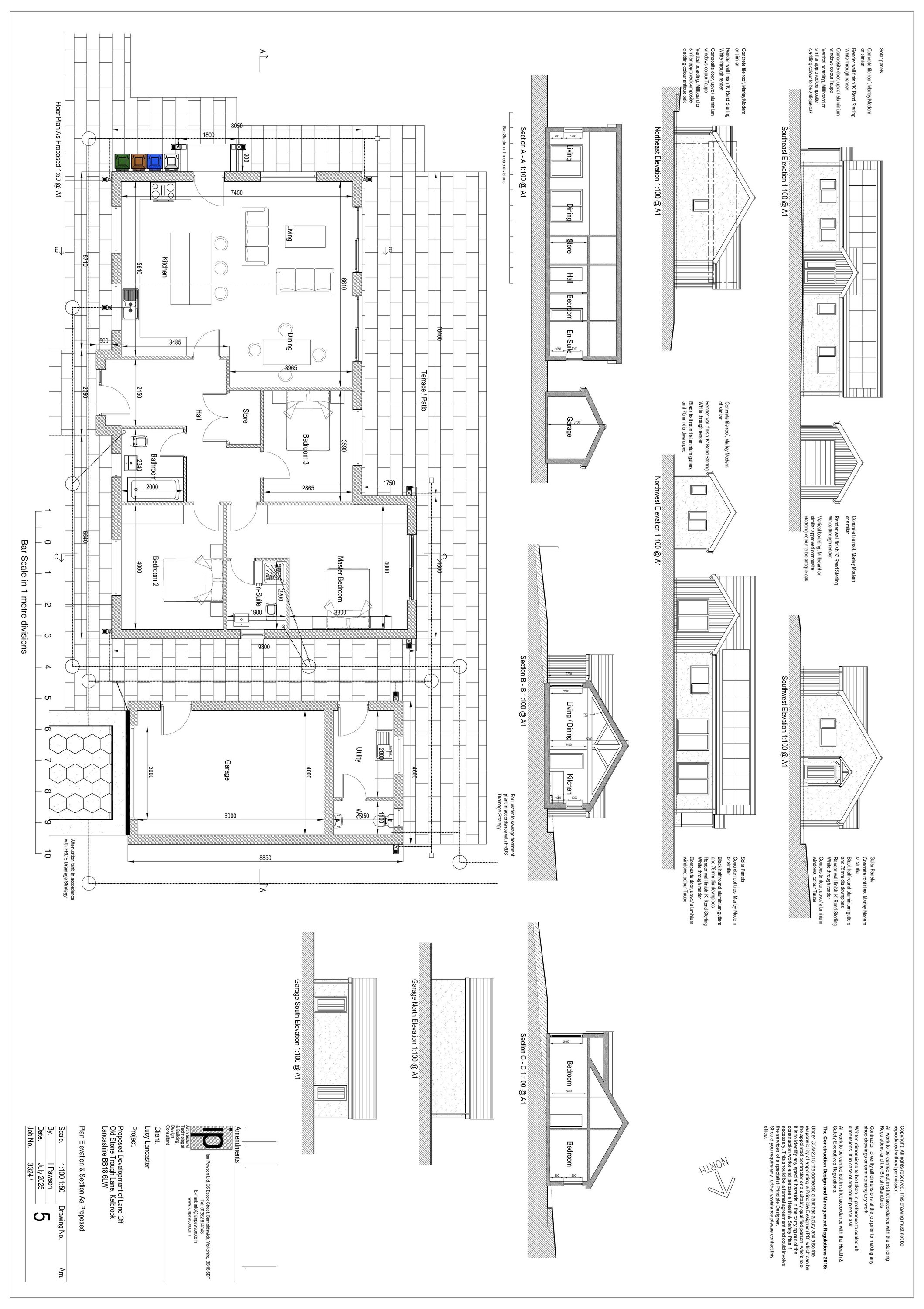
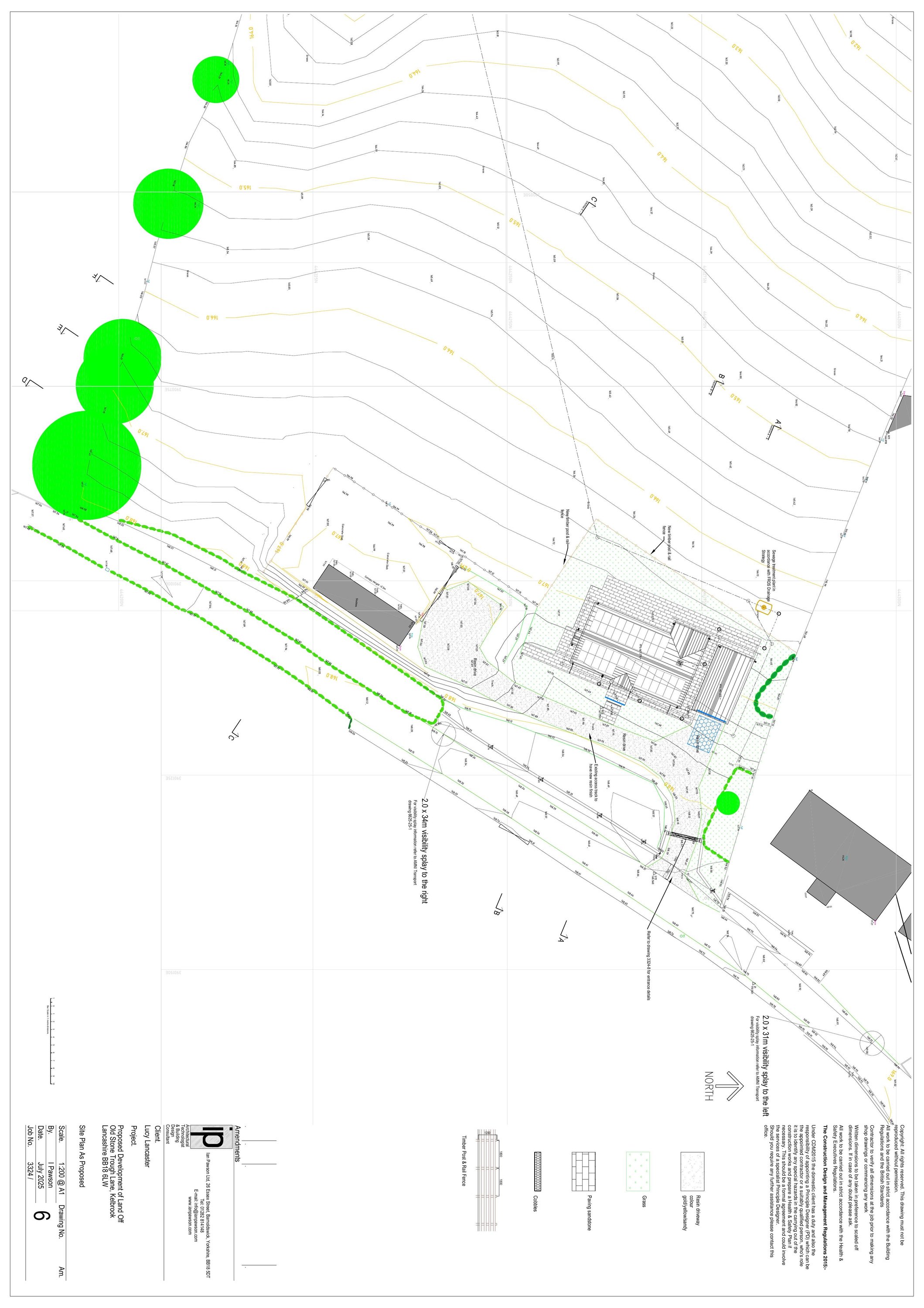
Full: Erection of 1 no. dwelling with associated vehicular access, infrastructure, siting of a temporary caravan, and the provision of 3 no. parking spaces.

Documents

ACK LETTER APP/AGENT
Acknowledgement Letter
Not archived · Council Link
APPLICATION FORM
Application Form
Not archived · Council Link
DESIGN AND ACCESS STATEMENT
Design and Access Statement
Not archived · Council Link
DRAINAGE IMPACT ASSESSMENT
Technical Report
Not archived · Council Link
ENTRANCE DETAILS
Plans
Not archived · Council Link
Plans
Archived · Council Link
EXISTING SITE SECTIONS
Plans
Not archived · Council Link
GLASS SPECIFICATION REPORT
Further Information
Not archived · Council Link
HIGHWAY REPORT
Technical Report
Not archived · Council Link
LANDSCAPE AND MANAGEMENT PLAN
Environmental Report
Not archived · Council Link
LCC HIGHWAYS
Consultee Comment
Not archived · Council Link
LOCATION PLAN
Location Plan
Not archived · Council Link
NEIGHBOUR NOTIFICATION LETTER
Neighbour Notification Letter
Not archived · Council Link
PARISH CONSULTATION LETTER 21 DAYS
Consultation
Not archived · Council Link
PBC ENVIRONMENTAL HEALTH
Consultee Comment
Not archived · Council Link
PLANNING AND HERITAGE STATEMENT
Technical Report
Not archived · Council Link
Plans
Archived · Council Link
PROPOSED SITE SECTIONS
Plans
Not archived · Council Link
Public Comment
Public Comment
Not archived · Council Link
Public Comment
Public Comment
Not archived · Council Link
Public Comment
Public Comment
Not archived · Council Link
Public Comment
Public Comment
Not archived · Council Link
Public Comment
Public Comment
Not archived · Council Link
Public Comment
Public Comment
Not archived · Council Link
Public Comment
Public Comment
Not archived · Council Link
Public Comment
Public Comment
Not archived · Council Link
Public Comment
Public Comment
Not archived · Council Link
Public Comment
Public Comment
Not archived · Council Link
Public Comment
Public Comment
Not archived · Council Link
Public Comment
Public Comment
Not archived · Council Link
Public Comment
Public Comment
Not archived · Council Link
STANDARD CONSULTATION 21 DAYS
Consultation
Not archived · Council Link
STANDARD CONSULTATION 21 DAYS
Consultation
Not archived · Council Link
STANDARD CONSULTATION 21 DAYS
Consultation
Not archived · Council Link
STANDARD CONSULTATION 21 DAYS
Consultation
Not archived · Council Link
YORKSHIRE WATER
Consultee Comment
Not archived · Council Link

Take Action

Make your voice heard. Authorities need to hear from people who support new homes.

✉️ Write Email in Support View on Council Portal