← Back to Pendle Borough Council

Status

Registered
Received
17 days ago
New dwellings
n/a

Full Proposal

Full: Conversion of existing derelict mill to form 1 no. dwelling with associated parking and garden areas.

Documents

3D VISUALS
Plans
Not archived · Council Link
ACK LETTER APP/AGENT
Acknowledgement Letter
Not archived · Council Link
APPLICATION FORM
Application Form
Not archived · Council Link
APPLICATION FORM REDACTED
Application Form
Not archived · Council Link
EXISTING ELEVATIONS (SHEET 1 OF 2)
Plans
Not archived · Council Link
EXISTING ELEVATIONS (SHEET 2 OF 2)
Plans
Not archived · Council Link
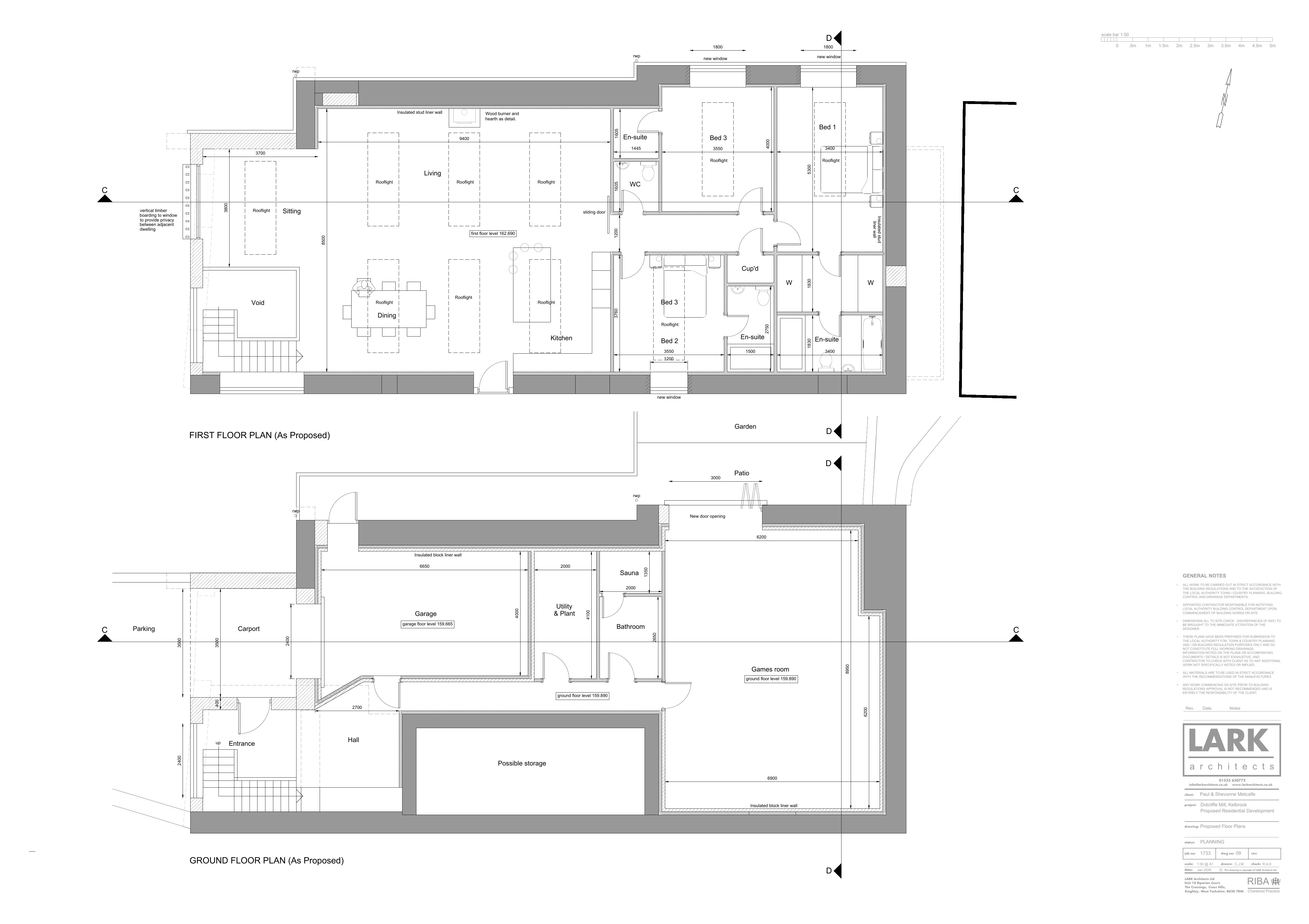
EXISTING FLOOR PLANS
Plans
Not archived · Council Link
EXISTING SECTION PLANS AND ROOF PLAN
Plans
Not archived · Council Link
Plans
Archived · Council Link
FLOOD RISK ASSESSMENT
Technical Report
Not archived · Council Link
LAND REGISTRY PLAN
Plans
Not archived · Council Link
LOCATION PLAN
Location Plan
Not archived · Council Link
PARISH CONSULTATION LETTER 21 DAYS
Consultation
Not archived · Council Link
PLANNING AND HERITAGE STATEMENT
Technical Report
Not archived · Council Link
PRELIMINARY BAT ROOST ASSESSMENT
Environmental Report
Not archived · Council Link
PROPOSED ELEVATIONS (SHEET 1 OF 2)
Plans
Not archived · Council Link
PROPOSED ELEVATIONS (SHEET 2 OF 2)
Plans
Not archived · Council Link
PROPOSED SECTION PLANS AND ROOF PLAN
Plans
Not archived · Council Link
Plans
Archived · Council Link
STANDARD CONSULTATION 21 DAYS
Consultation
Not archived · Council Link
STANDARD CONSULTATION 21 DAYS
Consultation
Not archived · Council Link
STANDARD CONSULTATION 21 DAYS
Consultation
Not archived · Council Link
STANDARD CONSULTATION 21 DAYS
Consultation
Not archived · Council Link
STANDARD CONSULTATION 21 DAYS
Consultation
Not archived · Council Link
STANDARD CONSULTATION 21 DAYS
Consultation
Not archived · Council Link

Take Action

Make your voice heard. Authorities need to hear from people who support new homes.

✉️ Write Email in Support View on Council Portal