← Back to Perth and Kinross Council

Status

Awaiting decision
Received
10 Sep 2025
New dwellings
n/a

Summary

Renewal of permission for erection of a single dwellinghouse and garage.

Full Proposal

Renewal of permission (22/00943/FLL) (Erection of a dwellinghouse and garage)

Documents

APPENDIX 1 - TREE IMPACT ASSESSMENT PLAN
Superseded Drawing/documents
Not archived · Council Link
APPENDIX 2- TREE PROTECTION PLAN
Superseded Drawing/documents
Not archived · Council Link
APPENDIX 3 - TREE SURVEY PLAN
Superseded Drawing/documents
Not archived · Council Link
APPLICATION FOR PLANNING PERMISSION
Application Form
Not archived · Council Link
ARBORICULTURE REPORT
Report
Not archived · Council Link
BIODIVERSITY REPORT
Superseded Drawing/documents
Not archived · Council Link
DESIGN STATEMENT
Report
Not archived · Council Link
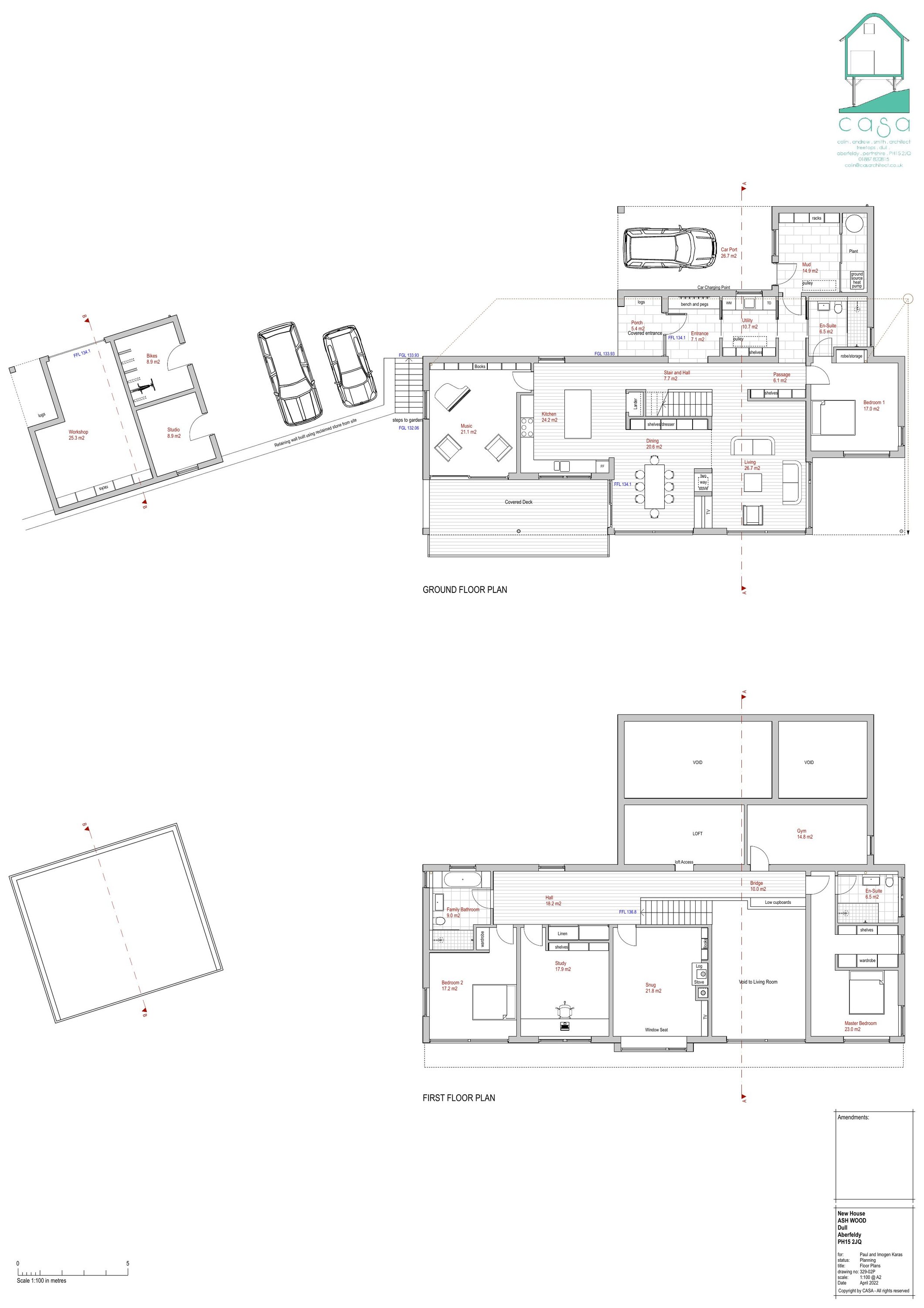
Drawing
Archived · Council Link
EXTERNAL CONSULTEE FROM PERTH AND KINROSS HERITAGE TRUST
External Consultees
Not archived · Council Link
EXTERNAL CONSULTEE FROM SCOTTISH WATER
External Consultees
Not archived · Council Link
GENERAL COMMENT (MEHARG)
General Comment
Not archived · Council Link
LOCATION PLAN - 1:1250
Drawing
Not archived · Council Link
NEIGHBOUR NOTIFICATION LIST
Neighbour Notification List
Not archived · Council Link
NEIGHBOUR NOTIFICATION MAPS
OS Extract
Not archived · Council Link
ONLINE COMMENT (BARNES)
Objection Comment
Not archived · Council Link
Drawing
Archived · Council Link
PROPOSED GARAGE ELEVATIONS WITH GARAGE AND HOUSE SECTIONS
Drawing
Not archived · Council Link
PROPOSED NORTH AND EAST ELEVATION
Drawing
Not archived · Council Link
Drawing
Archived · Council Link
PROPOSED SOUTH AND WEST ELEVATION
Drawing
Not archived · Council Link
TECHNICAL SPEC - LOG STOVE CERTIFICATE (1)
Other
Not archived · Council Link
TECHNICAL SPEC - LOG STOVE CERTIFICATE (2)
Other
Not archived · Council Link
TREE AND BAT REPORT
Superseded Drawing/documents
Not archived · Council Link
TREE PROTECTION PLAN
Drawing
Not archived · Council Link
TREE STATUS AND REMOVAL PROPOSALS
Drawing
Not archived · Council Link
TREE SURVEY PLAN
Drawing
Not archived · Council Link

Take Action

Make your voice heard. Authorities need to hear from people who support new homes.

✉️ Write Email in Support View on Council Portal