← Back to Perth and Kinross Council

Status

Awaiting decision
Received
27 Oct 2025
New dwellings
n/a

Full Proposal

Erection of a dwellinghouse (revised design) (in part retrospect)

Documents

Drawing
Archived · Council Link
APPLICATION FOR PLANNING PERMISSION
Application Form
Not archived · Council Link
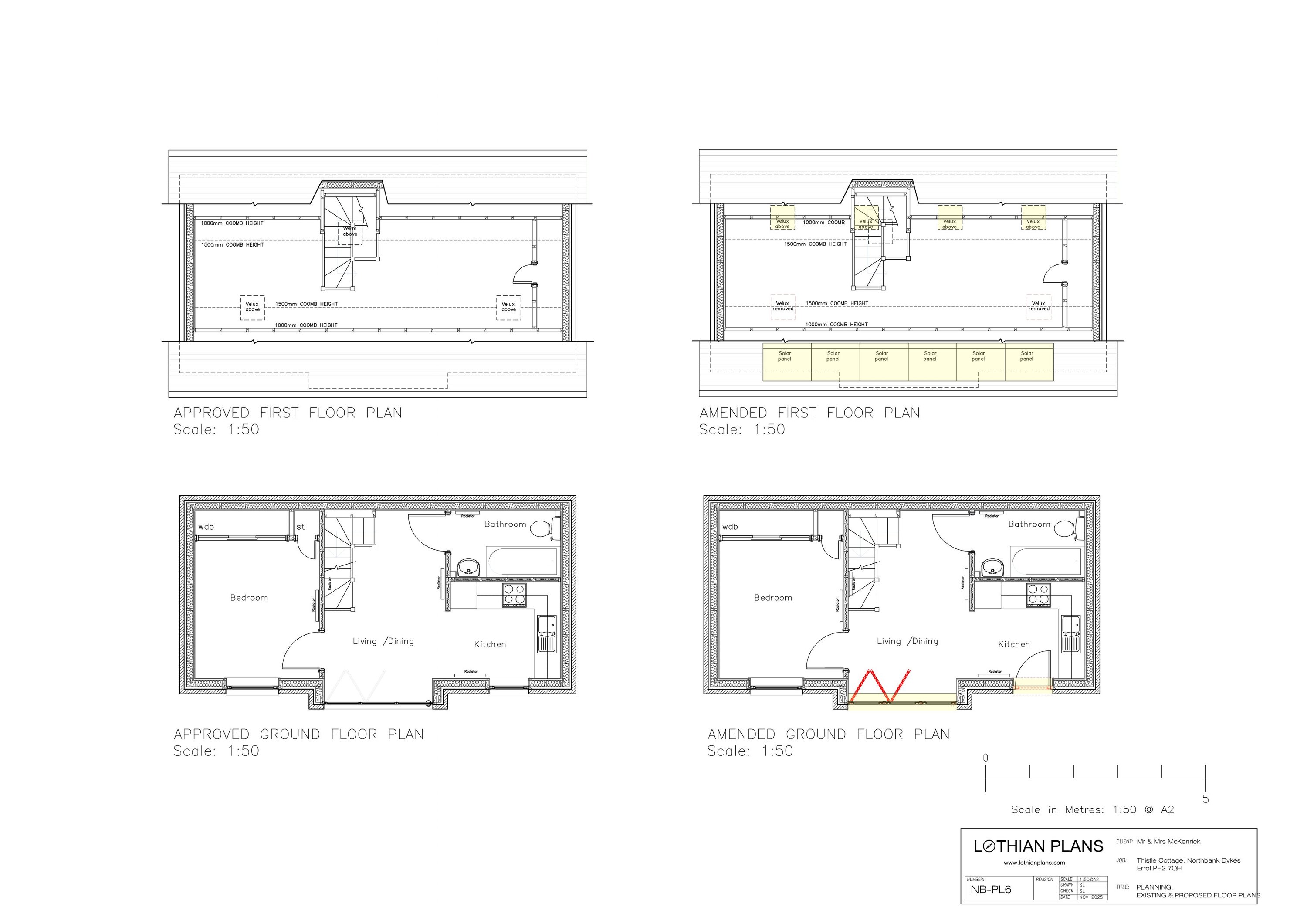
APPROVED ELEVATIONS (17/00908/FLL)
Drawing
Not archived · Council Link
CONSULTEE RESPONSE - CONSERVATION
Internal Consultees
Not archived · Council Link
EXTERNAL CONSULTEE FROM SCOTTISH WATER
External Consultees
Not archived · Council Link
INTERNAL CONSULTEE RESPONSE (TRANSPORTATION & DEVELOPMENT)
Internal Consultees
Not archived · Council Link
LIST OF NEIGHBOURS NOTIFIED
Neighbour Notification List
Not archived · Council Link
LOCATION PLAN
Drawing
Not archived · Council Link
NEIGHBOUR NOTIFICATION MAPS
OS Extract
Not archived · Council Link
PROPOSED DOOR
Drawing
Not archived · Council Link
PROPOSED ELEVATIONS
Drawing
Not archived · Council Link
PROPOSED ELEVATIONS
Drawing
Not archived · Council Link
PROPOSED ELEVATIONS (17/00908/FLL)
Drawing
Not archived · Council Link
PROPOSED WINDOW
Drawing
Not archived · Council Link
SITE NOTICE CA AND LB
Site Notice
Not archived · Council Link
SOLAR PANELS SPECIFICATION
Other
Not archived · Council Link

Take Action

Make your voice heard. Authorities need to hear from people who support new homes.

✉️ Write Email in Support View on Council Portal