← Back to Perth and Kinross Council

Status

Awaiting decision
Received
03 Nov 2025
New dwellings
n/a

Full Proposal

Change of use from church to form 2 flats, 1 short-term let, 1 dwellinghouse, glasswork studio with teaching area and associated works

Documents

APPLICATION FOR PLANNING PERMISSION
Application Form
Not archived · Council Link
DESIGN STATEMENT
Report
Not archived · Council Link
DEVELOPER CONTRIBUTIONS
Internal Consultees
Not archived · Council Link
DRAWING REGISTER
Report
Not archived · Council Link
EXISTING CROSS SECTION
Drawing
Not archived · Council Link
EXISTING ELEVATIONS
Drawing
Not archived · Council Link
EXISTING GROUND FLOOR
Drawing
Not archived · Council Link
EXISTING LONG SECTION
Drawing
Not archived · Council Link
EXISTING ROOF PLAN
Drawing
Not archived · Council Link
Drawing
Archived · Council Link
EXISTING UPPER FLOOR PLAN
Drawing
Not archived · Council Link
EXTERNAL CONSULTEE FROM PERTH AND KINROSS HERITAGE TRUST
External Consultees
Not archived · Council Link
EXTERNAL CONSULTEE SCOTTISH WATER
External Consultees
Not archived · Council Link
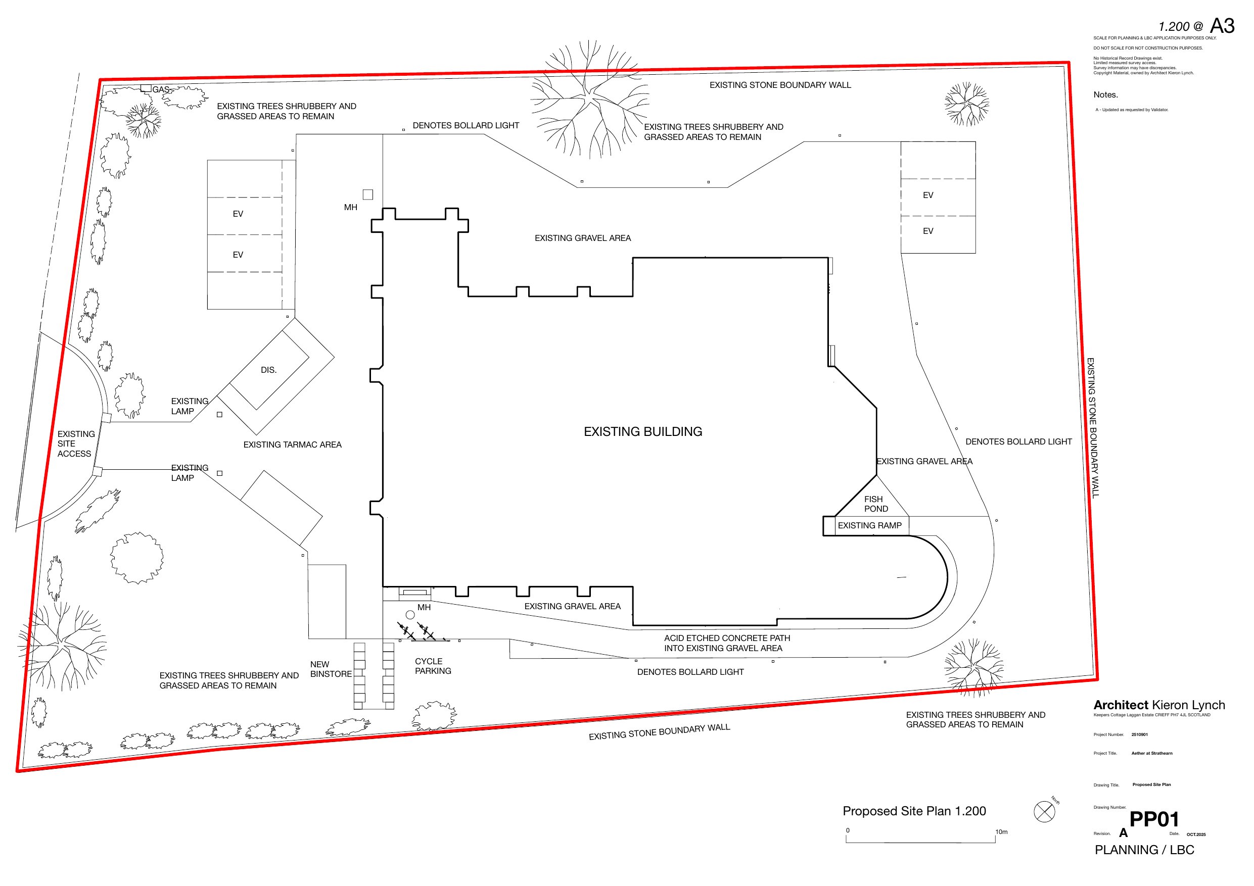
LOCATION AND BLOCK PLAN
Drawing
Not archived · Council Link
NEIGHBOUR NOTIFICATION LIST
Neighbour Notification List
Not archived · Council Link
NEIGHBOUR NOTIFICATION MAPS
OS Extract
Not archived · Council Link
ONLINE COMMENT (BROOKS)
General Comment
Not archived · Council Link
ONLINE COMMENT (MILLAR)
Objection Comment
Not archived · Council Link
PROPOSED ELEVATIONS
Drawing
Not archived · Council Link
PROPOSED GROUND FLOOR PLAN
Drawing
Not archived · Council Link
PROPOSED LOFT LAYOUTS
Drawing
Not archived · Council Link
PROPOSED ROOF PLAN
Drawing
Not archived · Council Link
Drawing
Archived · Council Link
PROPOSED SOUT EAST SECTION
Drawing
Not archived · Council Link
PROPOSED TOWNHOUSE CROSS SECTION
Drawing
Not archived · Council Link
PROPOSED TOWNHOUSE LAYOUT
Drawing
Not archived · Council Link
PROPOSED TRI WINDOW DETAIL
Drawing
Not archived · Council Link
PROPOSED UPPER FLOOR PLAN
Drawing
Not archived · Council Link
PROPOSED WINDOW DETAIL
Drawing
Not archived · Council Link
SITE NOTICE CA AND LB
Site Notice
Not archived · Council Link

Take Action

Make your voice heard. Authorities need to hear from people who support new homes.

✉️ Write Email in Support View on Council Portal