← Back to Perth and Kinross Council

Status

Awaiting decision
Received
16 Dec 2025
New dwellings
n/a

Full Proposal

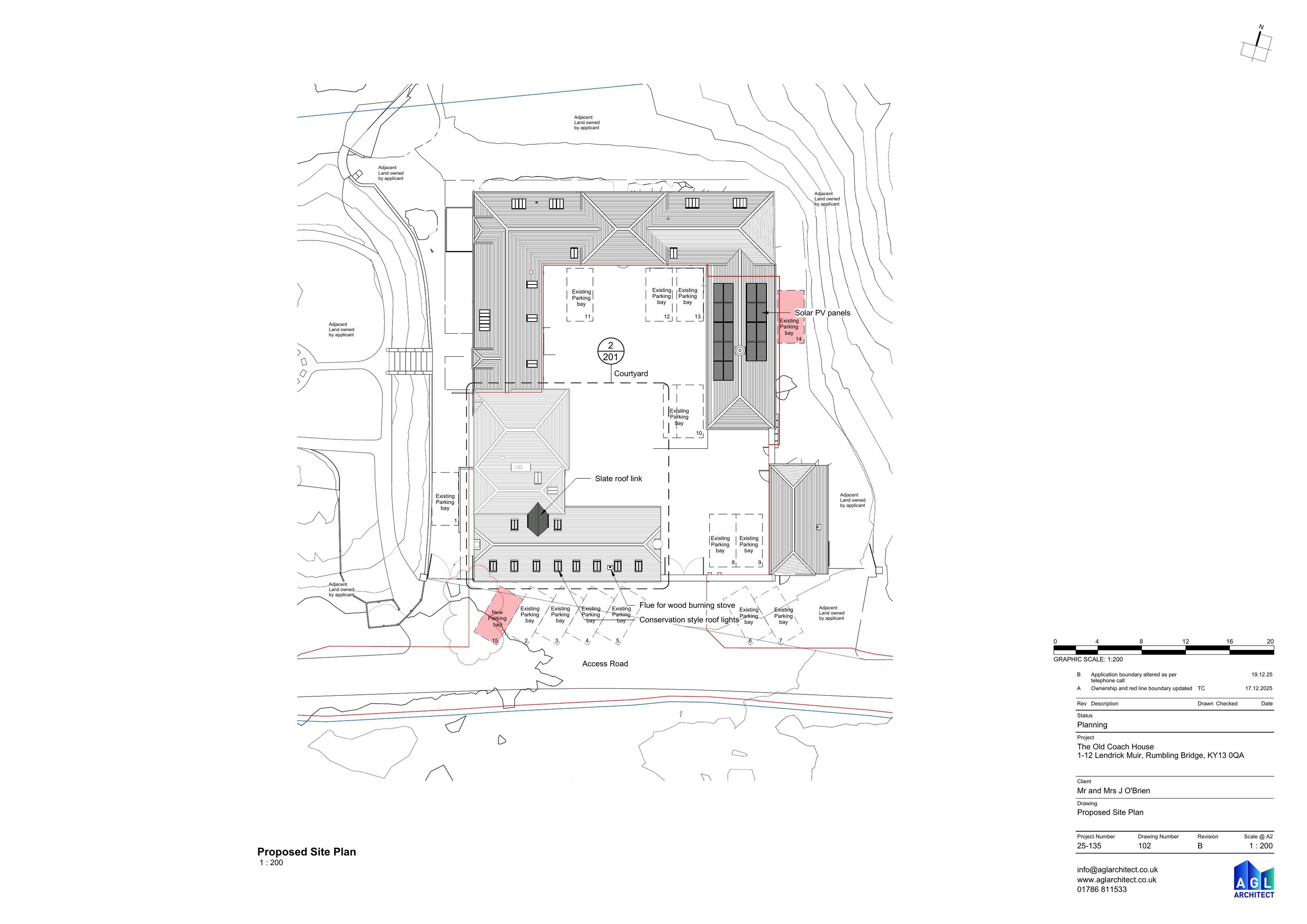
Part change of use and alterations to building to form a dwellinghouse, formation of parking area, installation of solar panels and associated works

Documents

APPLICATION FOR PLANNING PERMISSION
Application Form
Not archived · Council Link
EXISTING ELEVATIONS
Drawing
Not archived · Council Link
EXISTING FLOOR PLANS
Drawing
Not archived · Council Link
Drawing
Archived · Council Link
EXTERNAL CONSULTEE FROM SCOTTISH WATER
External Consultees
Not archived · Council Link
LOCATION PLAN
Drawing
Not archived · Council Link
NEIGHBOUR NOTIFICATION LIST
Neighbour Notification List
Not archived · Council Link
NEIGHBOUR NOTIFICATION MAPS
OS Extract
Not archived · Council Link
PROPOSED ELEVATIONS
Drawing
Not archived · Council Link
PROPOSED FIRST FLOOR PLOT PLAN
Drawing
Not archived · Council Link
Drawing
Archived · Council Link
PROPOSED GROUND FLOOR PLOT PLAN
Drawing
Not archived · Council Link
Drawing
Archived · Council Link
RURAL LOCATION PLAN
Drawing
Not archived · Council Link

Take Action

Make your voice heard. Authorities need to hear from people who support new homes.

✉️ Write Email in Support View on Council Portal