← Back to Plymouth City Council
25/01667/FUL
Plymouth City Council · IDOX
Status
Awaiting decision
Received
19 Dec 2025
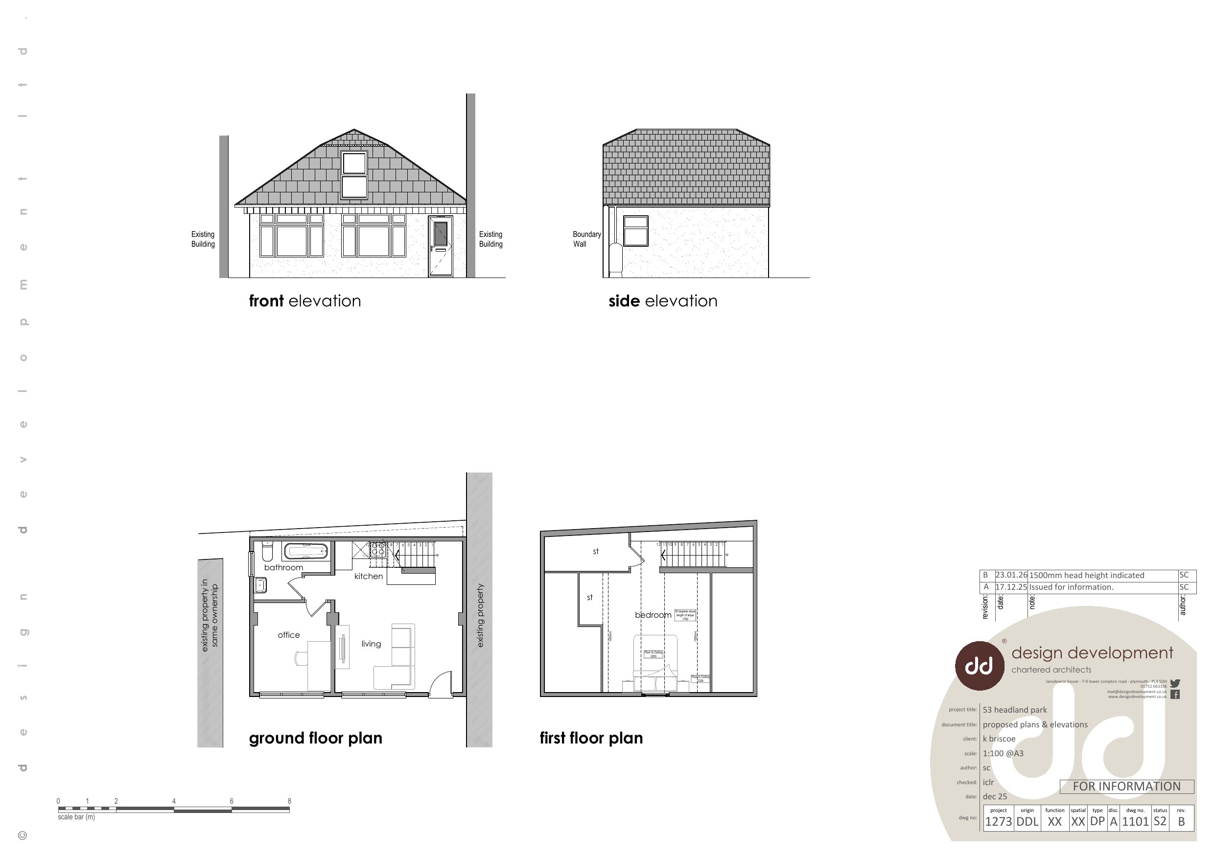
New dwellings
n/a
Full Proposal
Change of use from garage to single dwelling and associated external works (retrospective)
Documents
Take Action
Make your voice heard. Authorities need to hear from people who support new homes.