← Back to Plymouth City Council

Status

Awaiting decision
Received
Last month
New dwellings
n/a

Full Proposal

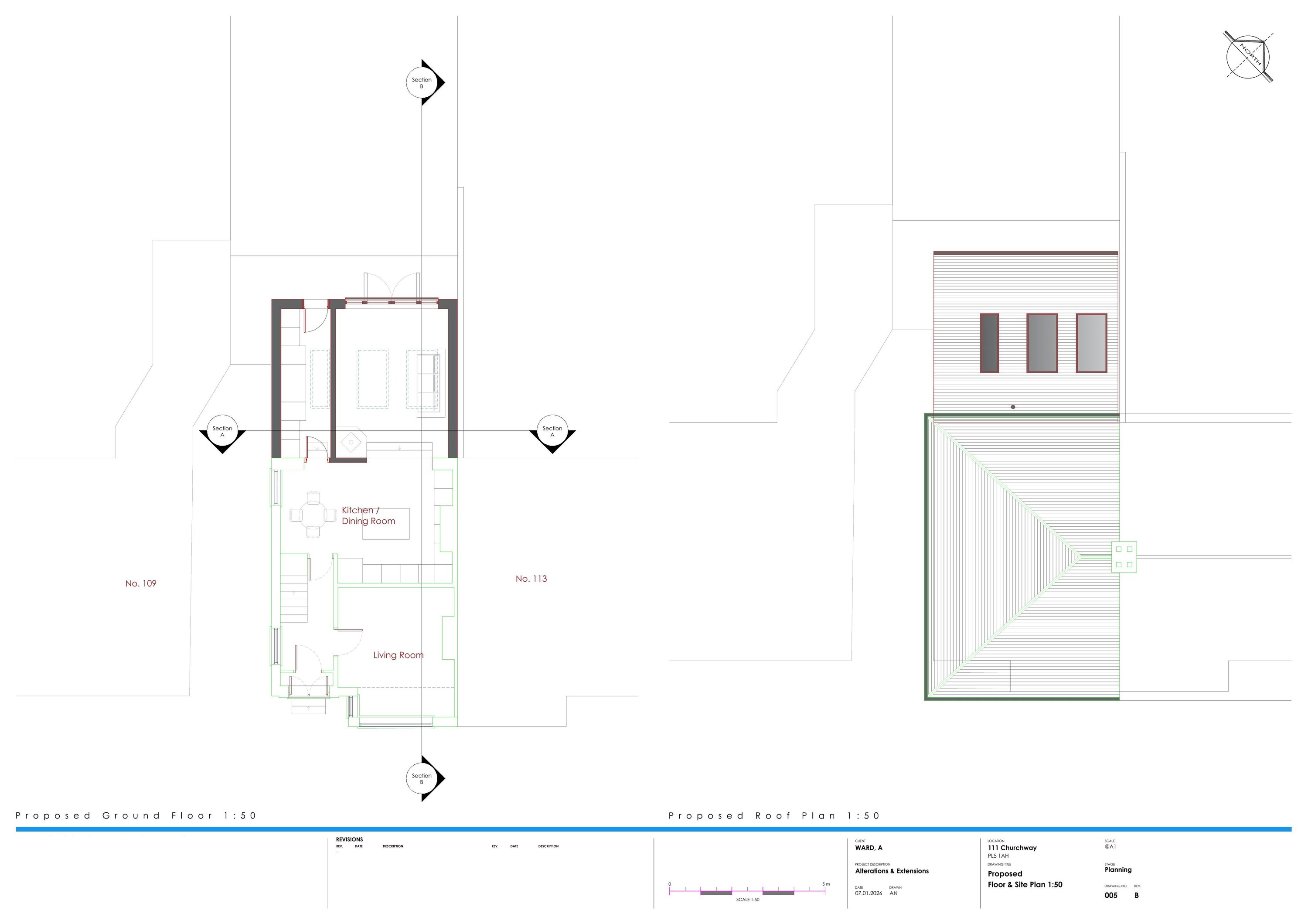
Single-storey rear extension which extends beyond the rear wall of the original dwellinghouse by 5.50m, has a maximum height of 4.00m, and has an eaves height of 2.30m

Documents

APPLICATION FORM
Application
Not archived · Council Link
CORRESPONDENCE
Application
Not archived · Council Link
EXISTING ELEVATIONS
Drawings and Images
Not archived · Council Link
Drawings and Images
Archived · Council Link
PROPOSED ELEVATIONS
Drawings and Images
Not archived · Council Link
Drawings and Images
Archived · Council Link
Drawings and Images
Archived · Council Link
SOUTH WEST WATER
Consultee Comment
Not archived · Council Link

Take Action

Make your voice heard. Authorities need to hear from people who support new homes.

✉️ Write Email in Support View on Council Portal