← Back to Plymouth City Council

Status

Awaiting decision
Received
20 days ago
New dwellings
n/a

Full Proposal

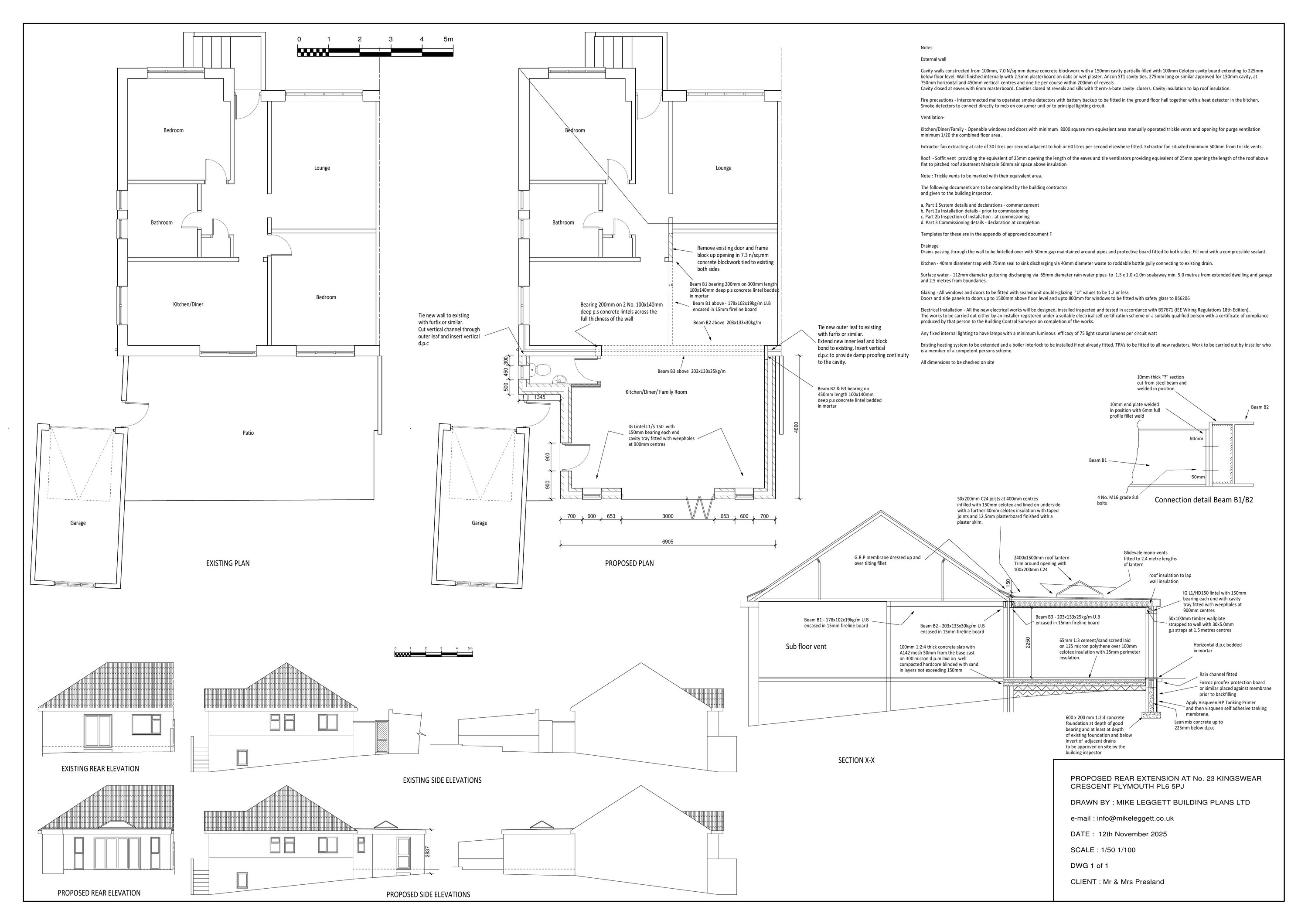
A single storey rear extension which extends beyond the rear wall of the original dwellinghouse by 4.6m, has a maximum height of 3.1m, and has an eaves height of 2.6m

Documents

APPLICATION FORM
Application
Not archived · Council Link
Drawings and Images
Archived · Council Link

Take Action

Make your voice heard. Authorities need to hear from people who support new homes.

✉️ Write Email in Support View on Council Portal