← Back to Portsmouth City Council

Status

Unknown
Received
05 Jun 2024
New dwellings
n/a

Full Proposal

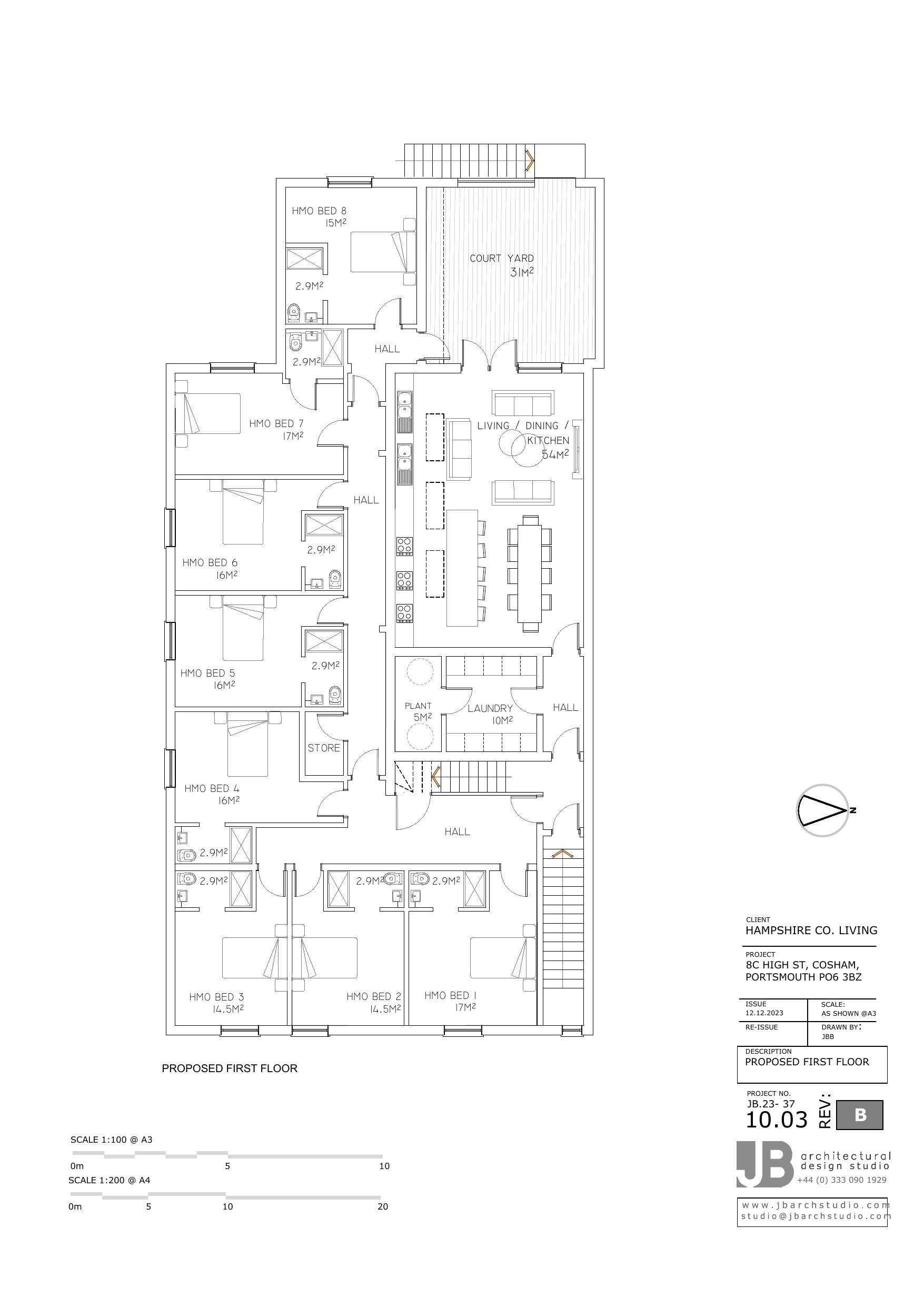
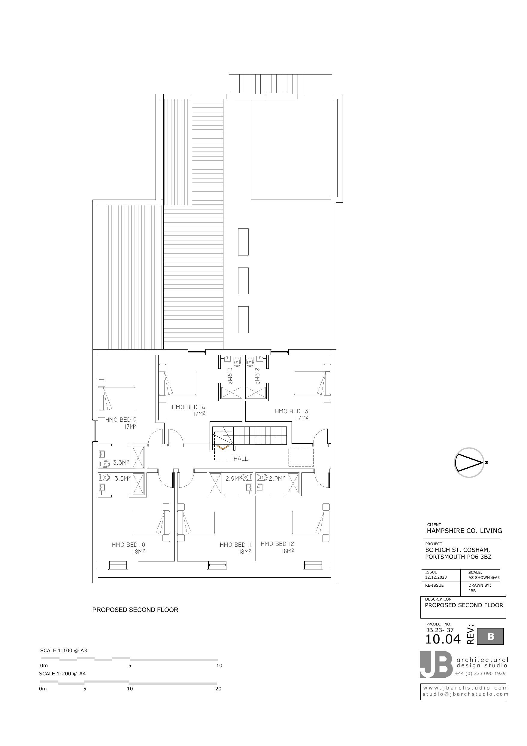
Change of use from Gym (Class Use E) to 14 bed House in Multiple Occupation to include construction of additional 2nd storey and installation of windows

Documents

00.00 A - SIE LOCATION PLAN EXISTING FLOOR PLANS (2)
Drawing
Not archived · Council Link
00.01 A - EXISTING ELEVATIONS EAST WEST
Drawing
Not archived · Council Link
00.02 A - EXISITNG NORTH AND SOUTH ELEVATIONS (2)
Drawing
Not archived · Council Link
10.06 A - KITCHEN PLAN
Detail Drawing
Not archived · Council Link
10.07 A - SECTIONS
Drawing
Not archived · Council Link
APPLICATION FORM REDACTED
Application Form
Not archived · Council Link
CERTIFICATE OF OWNERSHIP B
Application Form
Not archived · Council Link
CIL - ESTIMATE SENT TO CASE OFFICER
Consultee Comment
Not archived · Council Link
COMMITTEE REPORT
Committee Report
Not archived · Council Link
CONTAMINATED LAND
Consultee Comment
Not archived · Council Link
DECISION NOTICE
Decision
Not archived · Council Link
HMO COUNT
Consultees
Not archived · Council Link
HMO COUNT
Consultees
Not archived · Council Link
HMO COUNT
Consultees
Not archived · Council Link
HMO COUNT
Consultees
Not archived · Council Link
LOCATION PLAN
Revised Drawing
Not archived · Council Link
PRIVATE SECTOR HOUSING
Consultee Comment
Not archived · Council Link
PROPOSED ELEVATIONS
Revised Drawing
Not archived · Council Link
Revised Drawing
Archived · Council Link
Revised Drawing
Archived · Council Link
SIDE ELEVATION
Revised Drawing
Not archived · Council Link
Revised Drawing
Archived · Council Link
TRANSPORT PLANNING
Consultee Comment
Not archived · Council Link
UPDATED HIGHWAYS COMMENTS
Consultee Comment
Not archived · Council Link

Take Action

Make your voice heard. Authorities need to hear from people who support new homes.

✉️ Write Email in Support View on Council Portal