← Back to Portsmouth City Council
24/01002/FUL
Portsmouth City Council · IDOX
Status
Unknown
Received
12 Aug 2024
New dwellings
n/a
Full Proposal
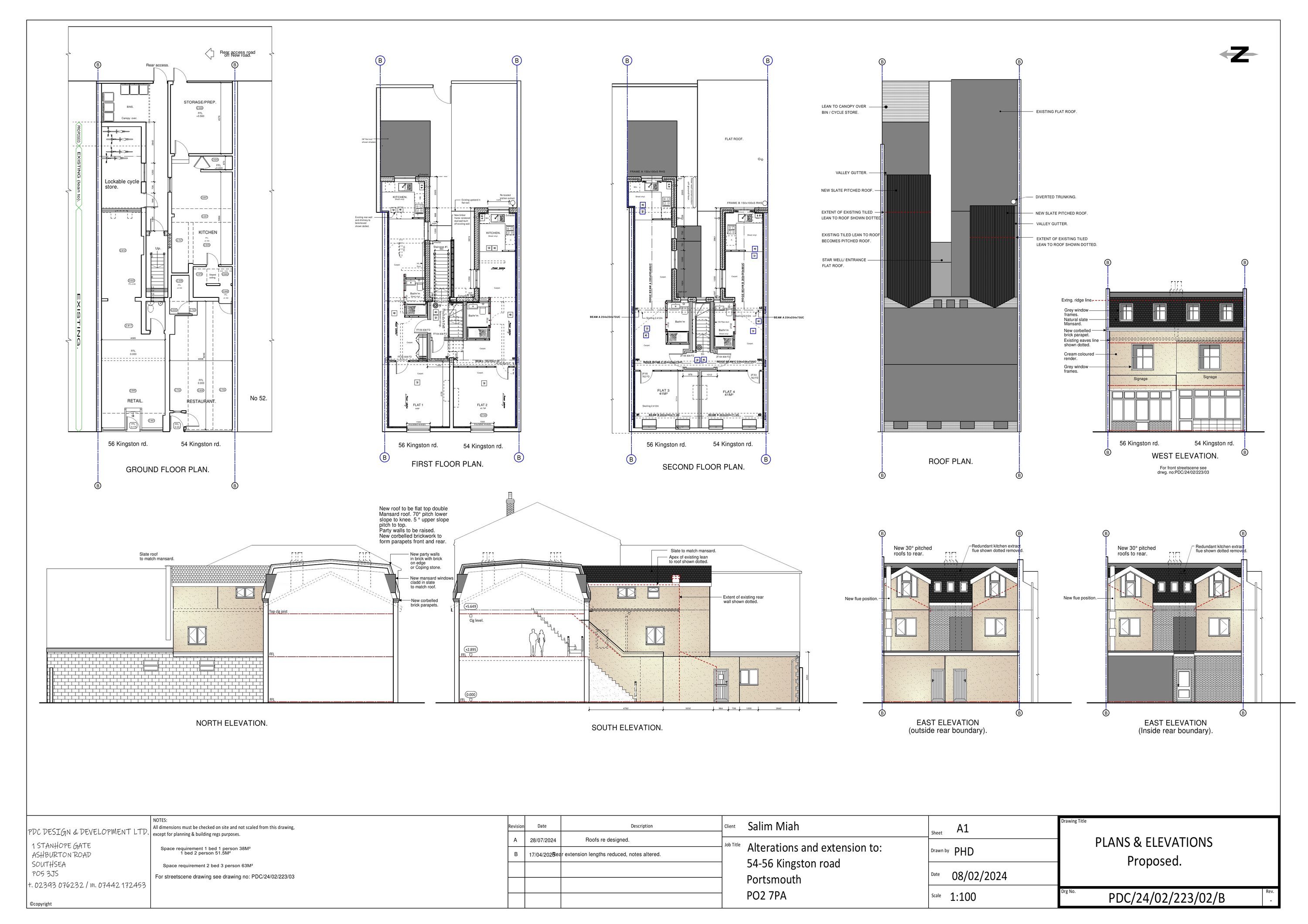
Conversion of roof space to form second floor comprising 2no. 1-bed flats with mansard roof; first floor rear extension; new rear entrance and stair; ground floor rear extension to provide lockable cycle space and associated storage
Documents
Take Action
Make your voice heard. Authorities need to hear from people who support new homes.