← Back to Portsmouth City Council

Status

Unknown
Received
17 Mar 2025
New dwellings
n/a

Summary

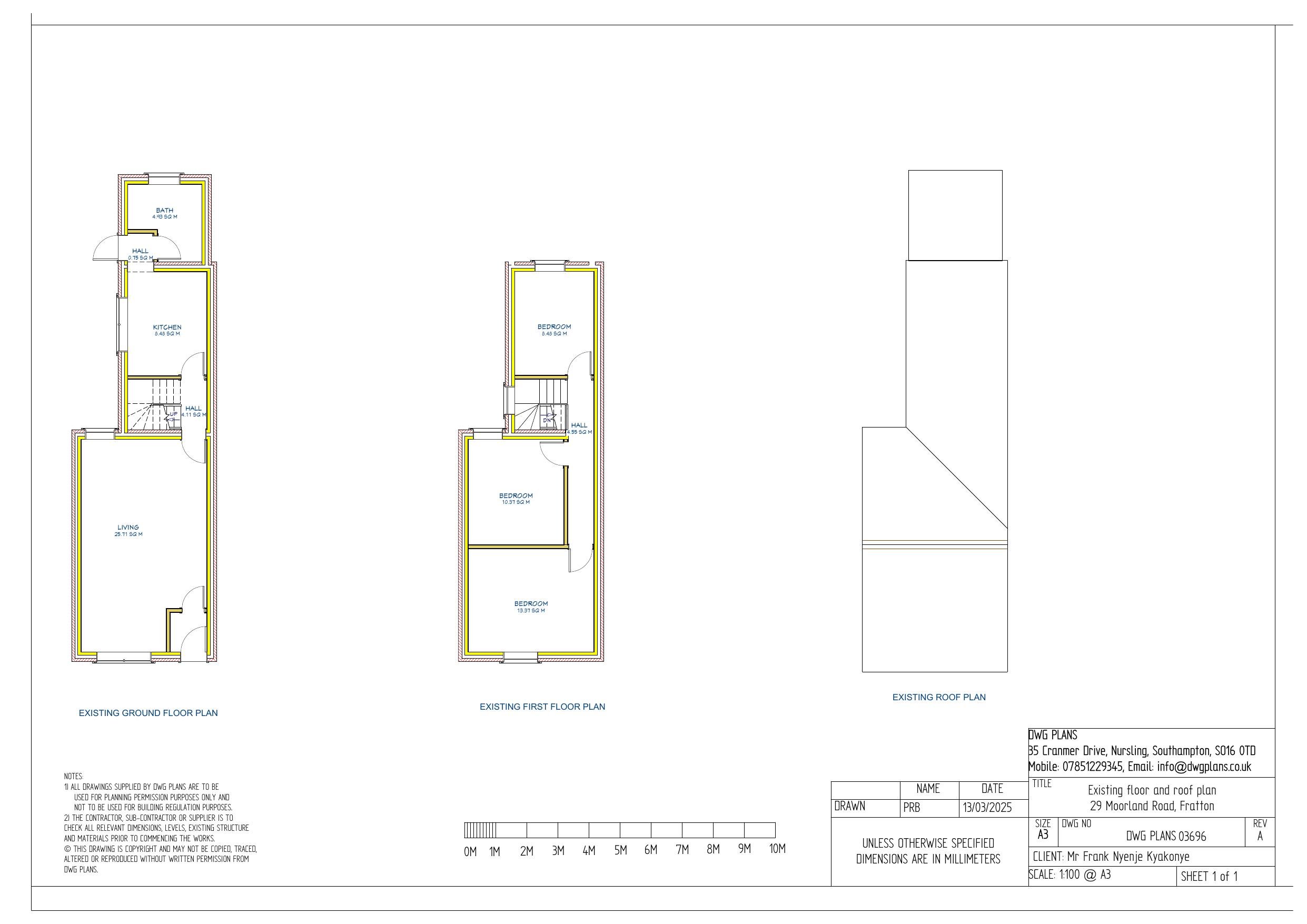
Change of use from dwelling (C3) to House in Multiple Occupation (C4) or remain C3.

Full Proposal

CHANGE OF USE FROM DWELLING HOUSE (CLASS C3) TO PURPOSES FALLING WITHIN HOUSE OF MULTIPLE OCCUPATION (CLASS C4) OR A DWELLINGHOUSE (CLASS C3)

Documents

29-MOORLAND-ROAD-PORTSMOUTH-CITY-OF-PORTSMOUTH-PO1-5JA
OS Extract
Not archived · Council Link
DECISION NOTICE
Decision
Not archived · Council Link
Block Plan
Archived · Council Link

Take Action

Make your voice heard. Authorities need to hear from people who support new homes.

✉️ Write Email in Support View on Council Portal