← Back to Portsmouth City Council
Full Proposal
Change of use from Shop (Class E) to house in multiple occupation (Class C4)
Documents
00.01 A EXISTING FLOOR PLANS
Drawing
10.02 D - EXISTING AND PROPOSED ELEVATIONS
Drawing
200.02 D PROPOSED SECTION
Drawing
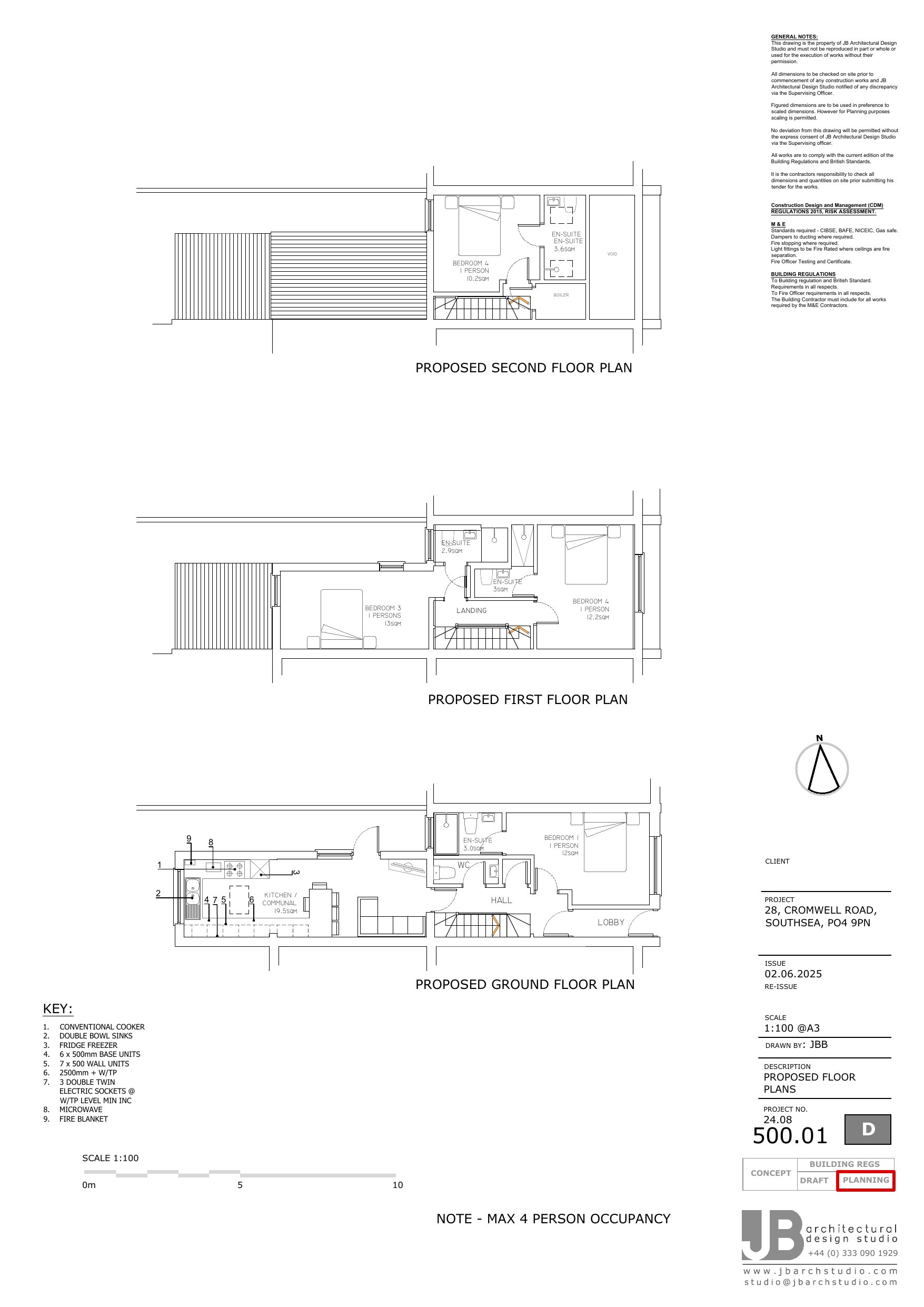
500.01 C 4 BED HMO FLOOR PLANS PROPOSED
Drawing
500.01 C 4 BED HMO FLOOR PLANS PROPOSED
Drawing
APPLICATION FORM REDACTED
Application Form
CIL COMMENTS TO CASE OFFICER
Consultee Comment
COMMITTEE REPORT
Committee Report
HERITAGE STATEMENT
Heritage Statement
HMO LAYOUT MAP
Consultees
PRIVATE SECTOR HOUSING
Consultee Comment
PRIVATE SECTOR HOUSING
Consultee Comment
RESIDENTIAL PROPERTIES
Consultees
SK SN 23.10.25
Site Notice
SK SN 23.10.25
Site Notice
SUPPLEMENTARY MATTERS LIST
Committee Report
TRANSPORT PLANNING
Consultee Comment
Take Action
Make your voice heard. Authorities need to hear from people who support new homes.