← Back to Portsmouth City Council

Status

Awaiting decision
Received
Last month
New dwellings
n/a

Full Proposal

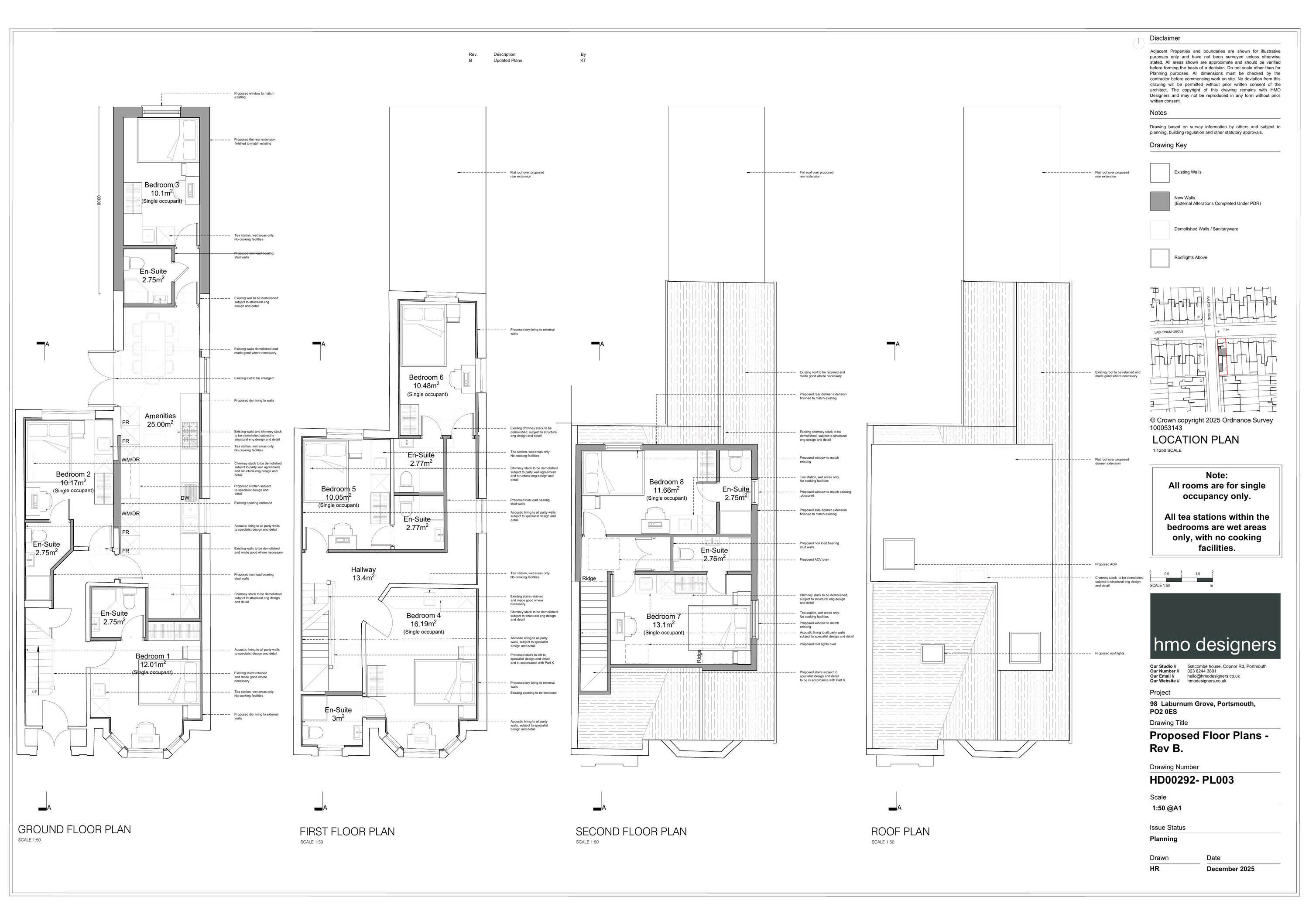
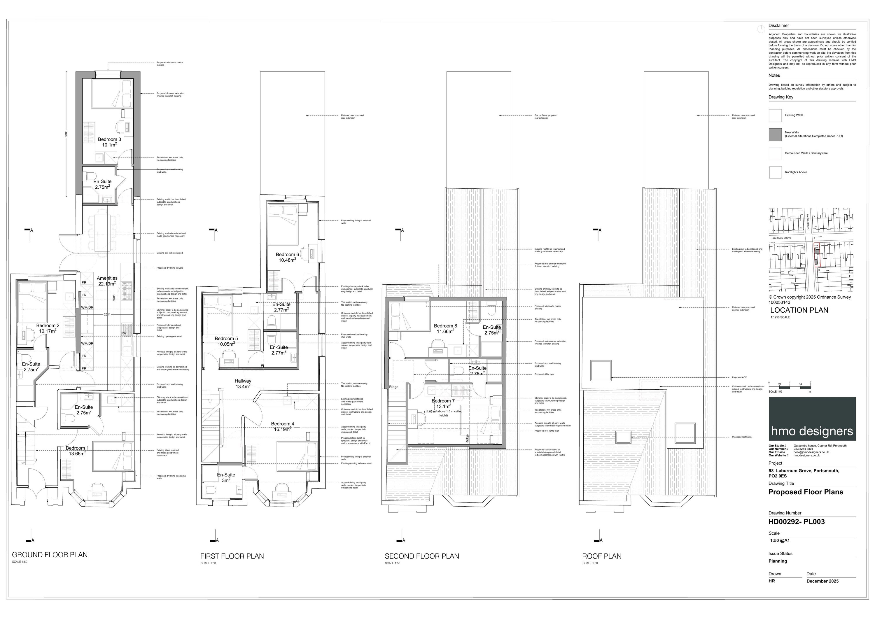
Change of use from dwelling house (Class C3) to 8 bed HMO Sui Generis with roof alterations including side and rear dormers following removal of chimney stack

Documents

APPLICATION FORM REDACTED
Application Form
Not archived · Council Link
DESIGN AND ACCESS STATEMENT
Design & Access Statement
Not archived · Council Link
FIRE STATEMENT
Report
Not archived · Council Link
HMOS
Consultees
Not archived · Council Link
LAYOUT MAP
Consultees
Not archived · Council Link
PL01 EXISITING FLOOR PLANS
Drawing
Not archived · Council Link
PL02 EXISITING ELEVATIONS
Drawing
Not archived · Council Link
Revised Drawing
Archived · Council Link
Revised Drawing
Archived · Council Link
PL04 PROPOSED ELEVATIONS AND SECTION
Drawing
Not archived · Council Link
PL04 PROPOSED ELEVATIONS AND SECTION REV A
Revised Drawing
Not archived · Council Link
PL04 PROPOSED ELEVATIONS AND SECTION REV B
Revised Drawing
Not archived · Council Link
PL05 BLOCK AND LOCATION PLANS
OS Extract
Not archived · Council Link
PL06 PROPOSED STREET STREET
Drawing
Not archived · Council Link
PRIVATE SECTOR HOUSING
Consultee Comment
Not archived · Council Link
RESIDENTIAL PROPERTIES
Consultees
Not archived · Council Link
SK SN 21.1.26
Site Notice
Not archived · Council Link
TRANSPORT PLANNING
Consultee Comment
Not archived · Council Link

Take Action

Make your voice heard. Authorities need to hear from people who support new homes.

✉️ Write Email in Support View on Council Portal