← Back to London Borough of Redbridge

Status

Issue Decision Cert. lawfulness proposed
Received
Last week
New dwellings
n/a

Full Proposal

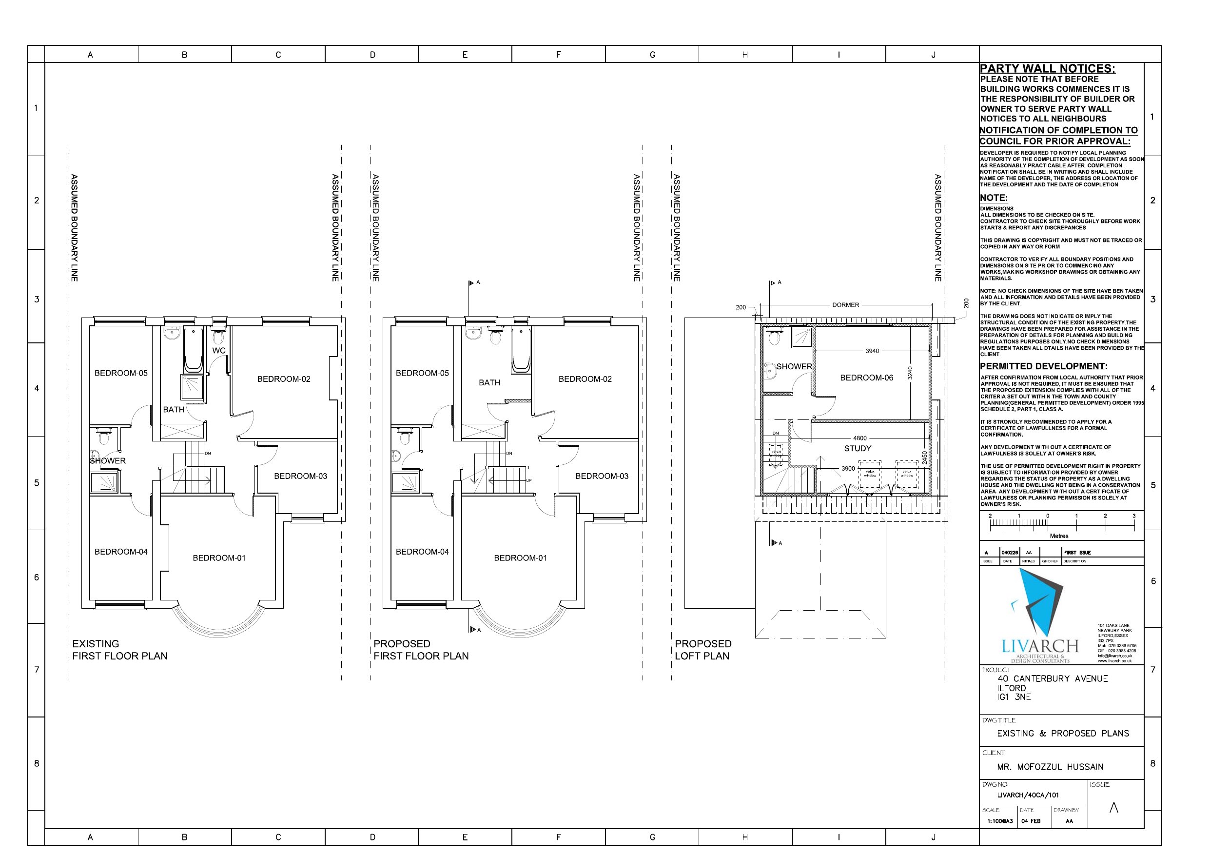
Alterations to roof profile above double storey side extension from pitched to a flat roof. Remove chimney. Loft conversion with rear dormer. Hip to gable roof alterations. Three front rooflights. (Summary).

Documents

Combined plan - floor plan
Archived · Council Link
102-EXISTING ELEVATIONS.pdf
Existing plan - elevation
Not archived · Council Link
103-PROPOSED ELEVATIONS.pdf
Proposed plan - elevation
Not archived · Council Link
104-EXISTING PROPOSED ROOF PLANS.pdf
Combined plan - roof plan
Not archived · Council Link
105-PROPOSED SECTION - CALCULATIONS.pdf
Proposed plan
Not archived · Council Link
Existing plan
Archived · Council Link
Proposed plan
Archived · Council Link
108-LOCATION PLAN.pdf
Site/block plan
Not archived · Council Link
ApplicationFormRedacted.pdf
Application form
Not archived · Council Link
STATEMENT.pdf
Planning statement
Not archived · Council Link

Take Action

Make your voice heard. Authorities need to hear from people who support new homes.

✉️ Write Email in Support View on Council Portal